Beschrijving

Vanwege de grote belangstelling is het niet meer mogelijk deze woning te bezichtigen!

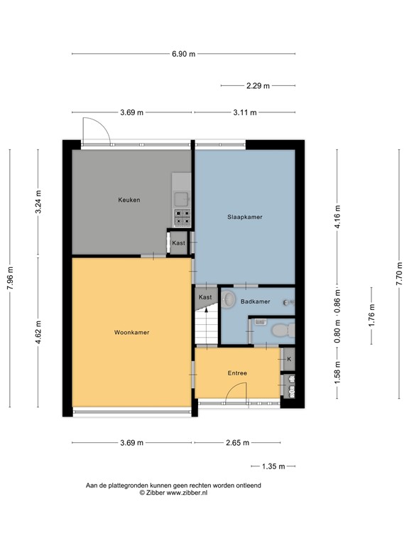
Achter de Arumervaart ligt een leuke senioren-, maar ook starterswoning. Het is een hoekwoning met een vrijstaande houten garage en 10 zonnepanelen. Er is een slaapkamer en badkamer op de begane grond en op de verdieping nog een slaapkamer en heel veel bergruimte, waar nog makkelijk een extra kamer te creëren is.

Via de 5 meter diepe voortuin kom je bij de entree van de woning. Via de hal met toilet en garderobe kom je in de woonkamer. Zowel aan de voor- als achterzijde zijn alle kozijnen vernieuwd in kunststof met dubbel glas++. De plavuizenvloer in de woonkamer heeft vloerverwarming.

De dichte woonkeuken heeft een airco die ook kan verwarmen. Je kunt er ook een halfopen keuken van maken. De slaapkamer op de begane grond heeft een diepe opbergkast en een deur naar de badkamer met een inloopdouche, wastafel en een doorloop naar het toilet.

De 8 meter diepe achtertuin ligt op het noorden, maar door de diepte heb je achterin de hele dag de zon. De vrijstaande houten garage heeft een oprit van 15 meter, waar je dus met gemak twee auto’s kwijt kunt.

Via een vaste trap kom je op de zolderverdieping met heel veel bergruimte en nog een tweede slaapkamer. Je kunt hier met gemak nog een derde slaapkamer realiseren.

Wat een leuke woning hè? Voor jong en wat ouder! In een mooie omgeving en in een prachtig dorp. Arum is ontstaan op een grote terp. Het is een levendig dorp op het gebied van sport, cultuur en onderwijs. Er is een basisschool en een plaatselijke supermarkt.

Krijg je er al zin in? Maak dan snel een afspraak voor het Start Open Huis op vrijdag 27 februari . Leuk, tot dan!

Exoneratiebeding
De informatie is met grote zorgvuldigheid samengesteld. Desondanks aanvaardt de verkoper noch Hilbert Makelaardij enige aansprakelijkheid voor de onjuistheid van gegevens. De koper kan aan de inhoud van de vermelde informatie geen enkel recht ontlenen. Hij dient zelf onderzoek te plegen naar alle aspecten van de woning die voor hem van belang zijn.

Kenmerken