Beschrijving

Wauw! Wat een ruime, strak afgewerkte en instapklare gezinswoning op een fijne locatie in de geliefde Oranjewijk, hier woon je met comfort, luxe én rust!

YESS! DIT WIL JE NIET MISSEN – DE HIGHLIGHTS OP EEN RIJ:

1. Royale gezinswoning met ca. 149 m² woonoppervlakte;
2. Strak afgewerkt en in 2026 zijn de slaapkamers en overloop volledig gestuct;
3. Vloerverwarming op de begane grond en in de badkamer;
4. Luxe keuken met kookeiland en diverse inbouwapparatuur;
5. Ruime en lichte woonkamer met fraaie visgraatvloer;
6. Maar liefst 5 kamers, dus volop ruimte!
7. Moderne badkamer met ligbad, douche en wastafelmeubel;
8. Fijne, verzorgde achtertuin met overkapping en vrijstaande berging, met een prachtig vrij uitzicht op de vijver.;
9. Moderne afwerking, direct instapklaar;
10. Gelegen in de rustige en geliefde Oranjewijk in Barendrecht.

Krijg je ook dat YESS-gevoel bij het lezen van deze punten? Dan nodigen wij je heel graag uit voor een bezichtiging van deze fijne woning!

DE LIGGING:

Je woont hier in de geliefde Oranjewijk in Barendrecht, een rustige en kindvriendelijke woonomgeving met veel groen en een prettige sfeer. In de directe omgeving vind je diverse voorzieningen zoals winkels, scholen, sportverenigingen en openbaar vervoer. Ook de uitvalswegen richting Rotterdam en Dordrecht zijn snel bereikbaar. Een heerlijke plek voor wie rustig wil wonen, maar toch alle dagelijkse voorzieningen binnen handbereik wil hebben.

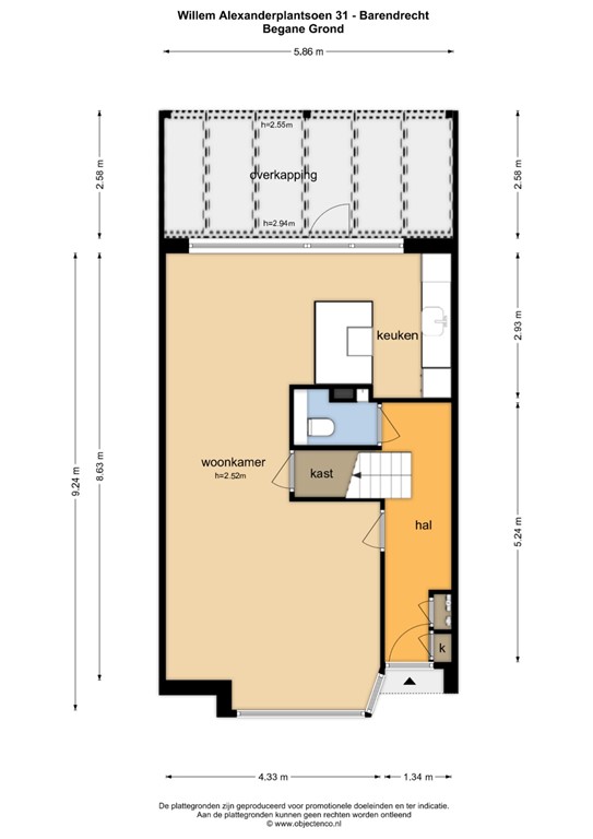
DE INDELING:

Je komt binnen in de hal met toegang tot het toilet, de vernieuwde meterkast en de trapopgang. Vanuit hier loop je door naar de ruime en lichte woonkamer. Wat direct opvalt is de strakke afwerking, de mooie visgraatvloer en het comfortabele gevoel dankzij de vloerverwarming op de begane grond. Door de grote raampartijen aan zowel de voor- als achterzijde geniet je hier van veel natuurlijk lichtinval.

Aan de achterzijde van de woning bevindt zich de luxe keuken met kookeiland, echt een heerlijke plek waar koken en samenzijn centraal staan. De keuken is modern uitgevoerd en van alle gemakken voorzien, waaronder een inductiekookplaat, Quooker, vaatwasser, koelkast, vriezer en combi-oven. Daarnaast is er volop werk- en bergruimte aanwezig.

Op de eerste verdieping bevinden zich drie slaapkamers en de badkamer. De slaapkamers zijn stuk voor stuk van goed formaat en ideaal te gebruiken als slaapkamer, kinderkamer, werkkamer of hobbyruimte. De slaapkamer aan de achterzijde is een fijne, rustige plek en biedt een mooi uitzicht op de vijver, wat zorgt voor een extra vrij en ontspannen gevoel. De badkamer is modern uitgevoerd en voorzien van een ligbad, douche en een stijlvol wastafelmeubel.

De tweede verdieping biedt nog eens extra ruimte. Hier vind je een ruime vierde en vijfde slaapkamer, een praktische overloop en extra bergruimte. Deze verdieping is multifunctioneel in te delen en perfect voor grotere gezinnen of voor wie behoefte heeft aan een aparte werk-, hobby- of logeerkamer.

DE BUITENRUIMTE:

Ook buiten is het hier heerlijk wonen. De achtertuin is verzorgd aangelegd en beschikt over een fijne overkapping, waardoor je al vroeg in het voorjaar en tot laat in het seizoen comfortabel buiten kunt zitten. Verder is er een vrijstaande berging aanwezig, ideaal voor het opbergen van fietsen, gereedschap of tuinspullen.

DE AFMETINGEN:

Voor de exacte afmetingen en indeling, zie de plattegronden.

DE BIJZONDERHEDEN:
- Woonoppervlakte ca. 149 m²;
- Perceeloppervlakte 151 m²;
- Bouwjaar 1975;
- Meterkast in 2026 vernieuwd;
- Energielabel B;
- Verwarming middels CV-ketel (Remeha, 2024);
- 5 slaapkamers;
- Achtertuin met overkapping en veel privacy;
- Voorzien van dakisolatie, gevelisolatie en vloerisolatie;
- Verkoper heeft de woning niet feitelijk zelf bewoond en dit zal worden opgenomen in de koopakte;
- Oplevering kan snel;

De Meetinstructie is gebaseerd op de NEN2580. De Meetinstructie is bedoeld om een meer eenduidige manier van meten toe te passen voor het geven van een indicatie van de gebruiksoppervlakte. De Meetinstructie sluit verschillen in meetuitkomsten niet volledig uit, door bijvoorbeeld interpretatieverschillen, afrondingen of beperkingen bij het uitvoeren van de meting.
Alle verstrekte informatie moet beschouwd worden als een uitnodiging tot het doen van een bod of om in onderhandeling te treden. Er kunnen geen rechten worden ontleend aan deze woninginformatie.

Ben jij net zo enthousiast als wij over deze woning? Bel, mail of app ons gerust voor een afspraak of laat je gegevens achter via deze site!

Kenmerken