Beschrijving
Deze hoekwoning uit 1982 met 4 slaapkamers is uitstekend gesitueerd op een perceel van 207m2.
De keurig onderhouden woning valt op door de hedendaagse afwerking, kleurgebruik en het comfortabele energiezuinige A label. Tel daarbij op de centrale ligging in het land, de aanwezige voorzieningen in de directe omgeving, en je hebt een heerlijke ruime woning waar je werkelijk zo in kunt en alles bij de hand hebt.
Een zeer aantrekkelijk woonhuis met volop mogelijkheden voor bijvoorbeeld gezinnen met (jonge) kinderen.
Maak snel een vrijblijvende afspraak voor een bezichtiging, om zelf te ervaren wat de woning biedt!
De woning is gelegen in een kindvriendelijke en ruim opgezette woonomgeving met voldoende openbare parkeervoorzieningen en slechts bestemmingsverkeer. Het centrum van het dorp voor de dagelijkse boodschappen, basisscholen en kinderopvang zijn op loopafstand van de woning gesitueerd.
Beesd ligt centraal in het Betuwse rivierenlandschap aan de rivier de Linge.
Het vriendelijke dorp beschikt over een gevarieerd aanbod van winkels waaronder een supermarkt en enkele gerenommeerde speciaalzaken. U kunt uitgebreider winkelen in het nabij gelegen Geldermalsen, Culemborg of Leerdam. Beesd kent een actief verenigingsleven, diverse restaurants en heeft goede voorzieningen op het gebied van onderwijs, recreatie en sport, een schitterend dorpscentrum (beschermd dorpsgezicht) en het eeuwenoude familielandgoed Mariënwaerdt met uitgebreide recreatieve mogelijkheden.
Voor forensen is Beesd een uitstekende uitvalsbasis. Beesd is gunstig gesitueerd ten opzichte van belangrijke noord/zuid (A2) en oost/west (A15) verbindingen waardoor steden als Utrecht en ’s-Hertogenbosch in circa 20 autominuten te bereiken zijn. Amsterdam/Eindhoven en Rotterdam/Nijmegen zijn binnen 45 minuten met de auto bereikbaar. Het NS-station van Beesd is op 5 minuten fietsen van de woning gesitueerd.
Indeling
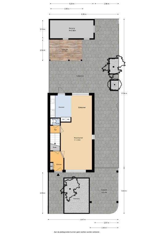
Entree, ruime hal met meterkast en een trapkast met praktische bergruimte.
Via de hal betreedt u de woonkamer met royaal daglicht. Het gedeelte voor in de woning leent zich perfect voor een riante zithoek, waardoor aan de achterzijde een fijne eethoek gecreëerd kan worden, nabij de keuken.
Centraal in de woonkamer treft u het afgesloten trapportaal naar de 1e verdieping. In dit trapportaal is ook de deels betegelde toiletruimte met hangend closet en fonteintje gesitueerd.
De in hoek opgestelde keuken uitgevoerd in wit hoogglans frontafwerking met een in antraciet gelamineerd aanrechtblad is uitgerust met een 4-pits inductiekookplaat, RVS afzuigkap, koelkast en comfortabele vaatwasser. De raampartij geeft u prettig licht in de keuken en uitzicht op de achtertuin. De tuindeur verbindt de keuken met de achtertuin.
De gehele begane grond is afgewerkt met een laminaat vloerafwerking.
De woning is aan de achterzijde voorzien van een elektrisch bediend knikarm zonnescherm. Op het achterste dakvlak van de woning zijn 10 zonnepanelen geïnstalleerd.
Eerste verdieping
Ruime overloop met vaste trapopgang naar de tweede verdieping. De eerste verdieping is vergroot door de plaatsing van een dakkapel aan de achterzijde van de woning. Er zijn 3 slaapkamers waarvan 1 aan de voorzijde en 2 aan de achterzijde. Royale badkamer met venster en volledig betegelde wanden voorzien van een ligbad met douchewand, wastafel, badkamermeubel met spiegelkast, hangend toilet en designradiator.
De eerste verdieping is afgewerkt met laminaat vloerafwerking. De slaapkamers aan de achterzijde zijn voorzien van een rolluik.
Tweede verdieping
Praktische voorzolder met cv opstelling en wasmachine aansluiting. Slaapkamer voorzien van een Velux dakvenster en bergruimte achter de knieschotten. De tweede verdieping heeft een laminaat vloerafwerking.
Overige verdiepingen
Vanaf de overloop middels toegangsluik bereikbare vliering.
Tuin
De voortuin is deels voorzien van sierbestrating en een border met siergrind en een centraal geplaatste boom. De praktische carport is voorzien van een laadpaal en verlichting.
De zonnige achtertuin op het zuidwesten is volledig bestraat met sierbestrating en voorzien van borders met gevarieerde beplanting. De gezellige overkapping met de verhoogde houten vlonder biedt het hele jaar door de mogelijkheid om te genieten van het buitenleven.
Er is voldoende plaats voor een ruime eettafel met stoelen, een heerlijke loungeset én speelruimte voor kinderen.
De gemetselde berging is vergroot en voorzien van een zadeldak met pannen. De achtertuin wordt rondom begrensd door een schutting van hout elementen en een afsluitbare poort.
Bijzonderheden
- Heerlijke hoekwoning met 4 slaapkamers
- ca. 102 m2 woonoppervlak
- Zonnige achtertuin op het zuidwesten
- Hedendaagse afwerking, instapklaar
- Praktische carport met laadpaal
- Ideaal voor starters én gezinnen
- Comfortabel, energiezuinig A label
- 10 zonnepanelen a 410 Wp
- Gelegen in kindvriendelijke wijk op gewilde locatie in Beesd
- Voldoende parkeerruimte bij de woning
Plattegronden
Koningin Julianastraat 101 - Begane grond - 2D.jpg
Koningin Julianastraat 101 - Begane grond - 3D.jpg
Koningin Julianastraat 101 - 1e verdieping - 2D.jpg
Koningin Julianastraat 101 - 1e verdieping - 3D.jpg
Koningin Julianastraat 101 - 2e verdieping - 2D.jpg
Koningin Julianastraat 101 - 2e verdieping - 3D.jpg
Koningin Julianastraat 101 - Situatie - 2D.jpg
Koningin Julianastraat 101 - Situatie - 3D.jpg