Beschrijving

Gelijkvloers wonen op een royaal perceel in Beesd!

Ben je op zoek naar een comfortabele woning met alle voorzieningen op de begane grond én een fijne tuin? Dan voel je je hier direct thuis. Deze goed onderhouden hoekwoning is gebouwd in 1991, staat op een perceel van maar liefst 357 m² en beschikt over een slaapkamer en badkamer op de begane grond. Op de 1e verdieping is een extra slaapkamer beschikbaar. Ideaal voor wie graag levensloopbestendig wil wonen, maar ook ruimte zoekt voor logees of hobby’s op de verdieping.

Wij adviseren je de brochure van deze woning te downloaden van onze website. 
Hierin tref je uitgebreide informatie met extra foto's evenals plattegronden en kadastrale gegevens.

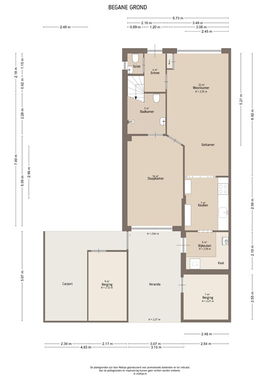
Indeling

De woning ligt in een rustige straat in een geliefde woonwijk van Beesd. De brede oprit en onderhoudsvriendelijke voortuin geven meteen een verzorgde indruk. Je stapt binnen in de hal met toegang tot het toilet, de trapopgang en de woonkamer.
Aan de voorzijde ligt de gezellige woonkamer. Het grote raam zorgt voor een fijne lichtinval en een vrij uitzicht op de straat. Er is ruimte genoeg voor een eethoek tussen de zithoek en de keuken. 
De keuken is in 2020 vernieuwd en uitgevoerd in een moderne, houtkleurige opstelling met donker werkblad. Er is inbouwapparatuur aanwezig, waaronder een keramische kookplaat, afzuigkap, combi-oven/magnetron en koelkast. Extra bergruimte is er in de beide wandkasten.

Aansluitend vind je de praktische bijkeuken met witgoedaansluitingen, bergruimte en toegang tot het overdekte terras.
Aan de achterzijde van de woning bevindt zich een ruime slaapkamer op de begane grond. Deze kamer is rustig gelegen en kijkt uit op de tuin. 

De ruime badkamer is volledig betegeld en uitgerust met een inloopdouche en een wastafelmeubel. Comfortabel en praktisch, zeker voor wie alle voorzieningen op één woonlaag wil.

Eerste verdieping

Via de vaste trap kom je op de eerste verdieping. De overloop is ruim en achter de schotten is veel bergruimte.
De tweede slaapkamer is ook ruim en heeft door het dakraam aan de achterzijde fijne lichtinval.

Tuin

De voortuin bestaat uit een vak met grind met daarnaast een ruime oprit met plaats voor zeker 3 auto’s. Ook onder de carport is plaats voor het parkeren van een auto. Naast de carport ligt een houten berging.
Via een houten poort kom je in de achtertuin. Onder de overkapping zit je beschut en heerlijk privé. Aansluitend aan de woning is nog een berging beschikbaar.
Daarachter strekt de achtertuin zich uit. De tuin is breed, diep en verzorgd aangelegd met grote tegels, verhoogde bloembakken en borders. Dankzij de ligging op het noordwesten is er in de middag en avond zon.

Bijzonderheden

Voor technische kenmerken en bijzonderheden verwijzen wij je naar de brochure. 

Beesd is een levendig dorp met zo'n 3400 inwoners, gelegen aan de Linge. Het dorp beschikt over uitgebreide voorzieningen, waaronder supermarkten, een bakker, slager, groenteboer en diverse andere winkels. Daarnaast is er een groot en actief verenigingsleven, met onder andere een voetbalclub, een oranjevereniging en verschillende andere sociale clubs die zorgen voor een hechte dorpsgemeenschap.
Een van de trekpleisters van Beesd is het nabijgelegen Landgoed Mariënwaerdt, een prachtig natuurgebied waar je heerlijk kunt wandelen, fietsen en genieten van lokale producten in de landgoedwinkel. Jaarlijks worden er grote evenementen georganiseerd, zoals fairs en markten, wat zorgt voor een levendige sfeer in de regio.
Beesd heeft goede verbindingen naar grotere steden dankzij de nabijheid van de A2 en het eigen treinstation. Hierdoor zijn steden als Utrecht en Den Bosch binnen 30 minuten te bereiken. Voor gezinnen is het een ideale plek, met meerdere basisscholen en voldoende speel- en sportmogelijkheden. Beesd biedt het beste van twee werelden: een rustig dorpsleven gecombineerd met de gemakken van uitstekende bereikbaarheid en voorzieningen.

Interesse gewekt? Schakel meteen je eigen aankoopmakelaar in.
Jouw aankoopmakelaar komt op voor jouw belang en bespaart je tijd, geld en zorgen.

Kenmerken