Beschrijving
ULTIEME GEZINSWONING MET RUIME TUIN
Deze 2-onder-1 kapwoning ligt op een doorgaande, doch rustige weg in Berg en Terblijt.
Zeer gunstig gelegen ten opzichte van Maastricht en Heerlen, maar ook vlak bij een bosrijke omgeving en het fraaie Limburgs heuvellandschap. Het perceel is maar liefst 583 m2 groot, met een terras van meer dan 100 m2 gelegen op het zuiden.
INDELING
Souterrain
Onder de hal bevindt zich een handige kelderruimte toegankelijk via een betegelde trap.
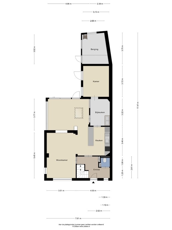
begane grond
Via de voortuin bereik je de hal met toiletruimte, meterkast en toegang tot de woonkamer, kelder en eerste verdieping
Het toilet is voorzien van een hangend closet met fonteintje.
De keuken, woonkamer en aanbouw staan met elkaar in een open verbinding.
Aan de achterkant bevindt zich een schuifpui en en ruim betegeld terras.
Verder een diepe tuin die vele mogelijkheden biedt, zoals plaatsen van tuinhuis, zorgwoning, maar ook is het mogelijk het woonhuis verder uit te bouwen zonder verlies van tuin.
De tuin is tevens bereikbaar via de oprit middels een stalen toegangspoort.
Verder nog een bijkeuken en achter de bijkeuken een extra (slaap) kamer, die natuurlijk ook geschikt is als kantoorruimte of speelkamer voor de kinderen.
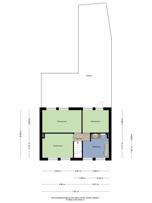
1e verdieping
Via de overloop zijn de 3 slaapkamers bereikbaar.
Verder hier een ruime badkamer met ligbad badkamermeubel en tweede toilet
2e verdieping
Via een vlizotrap is de bergzolder bereikbaar met aan de zijkant 2 kleine raampjes met daglicht.
Hier bevindt zich de Cv-installatie (eigendom bj 2018).
BIJZONDERHEDEN
Soort woning: twee-onder-een-kap woning
Tuin: op het zuiden.
Zonnepanelen: 8 stuks
Energielabel: D geldig tot 24-10-2035
Buitenberging: aangebouwd van steen met vliering
Kozijnen: kunststof met HR++ glas
Schriftelijkheidsvereiste: Ter bescherming van de belangen van zowel koper als verkoper, wordt uitdrukkelijk gesteld dat een koopovereenkomst met betrekking tot een onroerende zaak eerst dan tot stand komt nadat koper en verkoper de koopovereenkomst hebben getekend.
Huurtoestellen: Indien er in de woning huurtoestellen aanwezig zijn (CV-installatie, boiler of zonnepanelen), dan dienen deze door de koper te worden overgenomen.
Ontbinding: De termijn die wordt opgenomen voor eventuele ontbindende voorwaarden is in de regel 4 tot 6 weken na het sluiten van de koopovereenkomst
Waarborgsom of bankgarantie: De waarborgsom bedraagt 10% van de koopsom. De koper dient deze 7 dagen ná het vervallen van de ontbindende voorwaarden bij de desbetreffende notaris te deponeren.
Bouwkundige keuring: Koper is te allen tijde gerechtigd voor eigen rekening een bouwkundige keuring te laten verrichten dan wel andere adviseurs te raadplegen teneinde een goed inzicht te verkrijgen over de staat van onderhoud.
Plattegronden
178666750_1588474_lange_begane_grond_tu_first_design_20251029_b404b8.jpg
178666750_1588474_lange_begane_grond_first_design_20251029_09cf3a.jpg
178666750_1588474_lange_eerste_verdiepi_first_design_20251029_c61503.jpg
178666750_1588474_lange_kelder_first_design_20251029_fb859f.jpg
178666750_1588474_lange_tweede_verdiepi_first_design_20251029_b8afb1.jpg