Beschrijving

Beleggingspand met verhuurde status in hartje Bergen op Zoom
In het levendige stadscentrum van Bergen op Zoom bieden wij dit karakteristieke en veelzijdige beleggingspand aan, momenteel volledig verhuurd en daarmee direct interessant voor investeerders die op zoek zijn naar een stabiel rendement.

Het pand is functioneel ingedeeld over drie verdiepingen en bestaat uit:
• Begane grond: Ruime opslagruimte met goede toegankelijkheid, ideaal voor logistiek, opslagdoeleinden of bedrijfs-/winkelruimte.
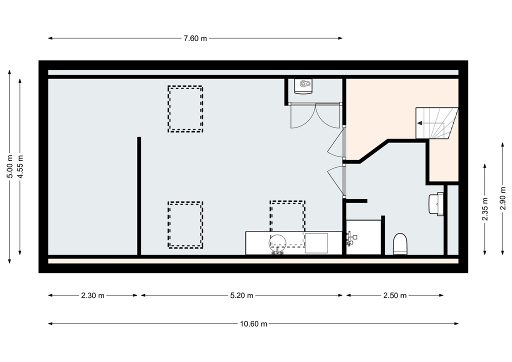
• Eerste verdieping: In gebruik als atelier, met veel daglicht en een open indeling die zich uitstekend leent voor creatieve of ambachtelijke activiteiten. 
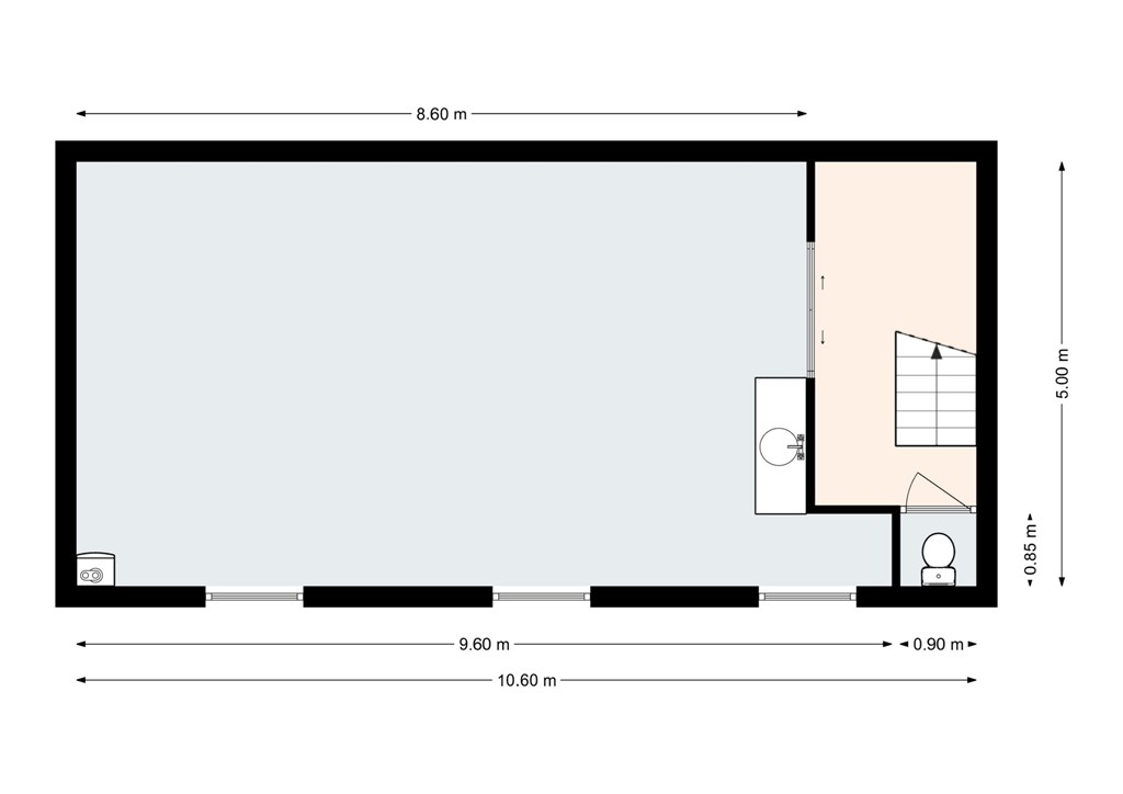
• Tweede verdieping: Ingericht als studio, geschikt voor bewoning of kleinschalig werken.

Het is het ideale pand om werk en privé te combineren. Op de begane grond een winkel-/bedrijfsruimte en de verdiepingsvloeren een leuke bovenwoning van ruim 100 m2. Maak jij je dromen hier helemaal waar?

De centrale ligging in het historische stadscentrum zorgt voor uitstekende bereikbaarheid, nabij winkels, horeca en openbaar vervoer. Deze locatie maakt het pand aantrekkelijk voor zowel huidige huurders als toekomstige exploitatiemogelijkheden.

Pluspunten:
✓ Volledig verhuurd object –direct rendement
✓ Praktische en veelzijdige indeling
✓ Gelegen op een gewilde centrum locatie

Geschikt als lange termijn belegging of herontwikkelingsobject (onder voorbehoud van vergunningen)

Bijzonderheden:
• Op deze locatie is maximaal 1 woonruimte toegestaan.
• De woning heeft als bestemming: Centrum 5
Er zijn twee combiketels aanwezig en tussenmeters om het gebruik per eenheid te kunnen bepalen.

Kenmerken