| Prijs | € 649.000,- k.k. |
| Type object | Woonhuis, eengezinswoning, twee onder een kap woning |
| Perceeloppervlakte | 327 m² |
| Woonoppervlakte | 144,2 m² |
| Aanvaarding | In overleg |
| Status | Verkocht |
Nieuwsgierig? Welkom thuis aan de Koningin Emmastraat 21 in Berkel Enschot! Deze instapklare 2 onder 1 kap woning met garage combineert duurzaamheid, ruimte en gezelligheid op een manier die je niet vaak tegenkomt. Gebouwd in 1970, maar volledig aangepast aan de eisen van deze tijd met onder andere een energielabel A+++, 17 zonnepanelen (2023), een warmtepomp en vloer- en muurisolatie. Ook aan comfort is gedacht: kunststof kozijnen, 4 slaapkamers, vloerverwarming een moderne keuken en badkamer maken dit huis helemaal af. Met een royaal woonoppervlak van ruim 144 m² een inhoud van ruim 510 m³ én een perceel van 327 m² is er plek voor het hele gezin. De woning ademt sfeer door de gezellige indeling, de warme afwerking en de prachtige tuin met royale overkapping waar je ieder seizoen van kunt genieten. Ook de ruime voortuin met eigen oprit draagt bij aan het gevoel van vrijheid en gemak – altijd plek om je auto voor de deur te parkeren. De ligging is minstens zo aantrekkelijk: in het bruisende dorpshart van Berkel-Enschot, met alle dagelijkse voorzieningen om de hoek en Tilburg én de omliggende natuurgebieden binnen handbereik. Of je nu houdt van het gemak van winkels dichtbij, de gezelligheid van het dorp of het groen van de omgeving – hier vind je het allemaal. Wil je wonen waar karakter en comfort elkaar ontmoeten? Dan is Koningin Emmastraat 21 echt iets voor jou. Neem snel contact op voor het inplannen van een bezichtiging. Wij zijn bereikbaar via WhatsApp, telefonisch of via onze website.
Welkom! Stap binnen en ervaar direct de sfeer van thuiskomen. In de nette hal met vernieuwde meterkast word je verwelkomd met een verzorgde vloer, nette wandafwerking en voldoende ruimte voor jassen, schoenen of een stijlvolle garderobekast. Hier vind je ook het gastentoilet en de trapopgang naar boven. De ruime trapkast biedt verrassend veel opbergruimte en huisvest tevens de unit van de vloerverwarming. Dit voelt als thuiskomen! De woonkamer is erg ruim en is sfeervol afgewerkt met glad gestucte wanden en een mooie antracietkleurige tegelvloer met vloerverwarming. Dankzij de moderne glazen schuifdeur kun je de ruimte praktisch opdelen. Voor extra gezelligheid is er een gaskachel aanwezig. Of je nu kiest voor een grote eettafel, een extra zithoek of een knus leeshoekje: de indeling biedt veel mogelijkheden. Keukenprins of prinses? In de aanbouw (2016) aan de achterzijde vind je de moderne keuken (2016). Voorzien van alle gemakken, zoals een inductiekookplaat (2022), geïntegreerde plafondafzuiging, vaatwasser (2024), oven, royale koelkast en grote vriezer. Het schiereiland met spoelbak (elektrische boiler) vormt het hart van de keuken en biedt volop werk- en kastruimte. Via de openslaande deuren stap je direct de tuin in – ideaal voor lange zomeravonden.
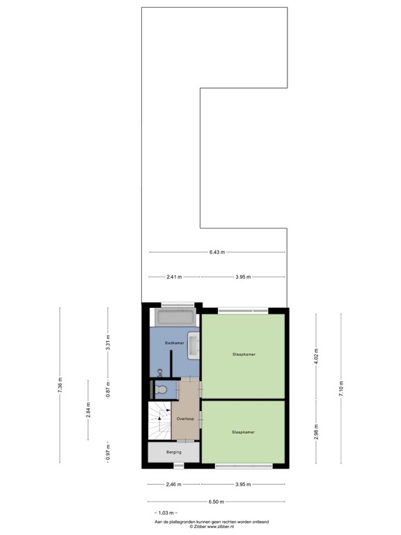
Kom tot rust! Op de eerste verdieping vind je alles wat een gezin of stel nodig heeft: 2 volwaardige slaapkamers, een nette badkamer en een was- bergruimte, logisch ingedeeld en overzichtelijk. Geen verspilde ruimte, gewoon functioneel én comfortabel. De slaapkamer zijn allemaal voorzien van rechte muren, dus makkelijk in te richten en praktisch in gebruik. Geen schuine daken of onhandige hoeken Even ontspannen! De moderne badkamer is een heerlijke plek om te ontspannen. Je vindt er een ruime inloopdouche met regendouche, een ligbad, dubbele wastafel met stijlvol houtlook meubels (2021) en een designradiator. De combinatie van witte wandtegels en antracietkleurige vloertegels geeft een luxe uitstraling. Nog een extra ruimte! De voormalige badkamer is omgetoverd tot een handige bergruimte, met aansluitingen voor wasmachine en droger. Daarnaast is er een aparte toilet aanwezig op deze verdieping.
Kers op de taart! De vaste trap leidt je naar de tweede verdieping, een verrassend ruime zolderverdieping die méér biedt dan alleen opslag. De zolderverdieping is in 2012 vergroot met twee dakkapellen waardoor er nog twee volwaardige slaapkamers met verwarming zijn ontstaan. Ook hier veel opbergruimte achter de knieschotten. Op de voorzolder bevinden zich de CV ketel (Intergas, 2023), de omvormer van de zonnepanelen en een extra wasmachine- en drogeraansluiting.
Buitenlucht doet je goed! De achtertuin is een waar pareltje: royaal, fraai aangelegd en praktisch ingedeeld met een mix van groen, sierlijke borders en strak gelegde bestrating. Door de royale afmetingen van de tuin is er zelfs ruimte om je caravan of boot op eigen terrein te stallen – een groot pluspunt voor wie graag op reis gaat. Een absolute eyecatcher is de riante overkapping, die in 2021 is voorzien van glazen schuifdeuren. Hierdoor kun je er het hele jaar door comfortabel genieten, ongeacht het weer. Het is een plek waar je in de vroege ochtendzon rustig je kop koffie drinkt, maar waar je ook met gemak een grote eettafel kwijt kunt voor gezellige avonden met vrienden of familie. Aan de achterzijde van de tuin vind je bovendien een praktische garage met handmatige roldeur. Kortom: een tuin die niet alleen mooi is om te zien, maar ook heel functioneel en veelzijdig in gebruik: gewoon een plek waar je het hele jaar door volop plezier van hebt.
* Energielabel A+++ met warmtepomp en 17 zonnepanelen * instapklare 2 onder 1 kapwoning * ruime, sfeervolle woonkamer met vloerverwarming * 4 slaapkamers (waarvan 2 op zolder) * grote zonnige tuin met prachtige overkapping/serre * voortuin met eigen oprit * moderne badkamer en keuken * garage Sinds 1 september 2010 is het verplicht om aan de eisen te voldoen van de meetinstructie voor gebruiksoppervlakte woningen en bruto inhoud. Deze is verplicht gesteld door de NVM, VastgoedPRO en VBO om de kwaliteit van inmetingen te waarborgen. Deze meetinstructie is gebaseerd op de NEN2580: de norm voor het bepalen van oppervlakten en de inhoud van woningen. Voor de gevallen waarin de meetinstructie geen uitsluitsel geeft over het bepalen van de gebruiksoppervlakte, moet namelijk de NEN2580 worden gebruikt. Meetinstructies die wel nauwkeurig uitsluitsel kunnen geven over oppervlakte bepaling, mogen dus afwijken van de NEN2580. Brabantstad Makelaardij laat haar woningen inmeten door een erkend bedrijf. Mocht je het meetrapport willen inzien, dan horen wij dit graag!
| Referentienummer | 160 |
| Vraagprijs | € 649.000,- k.k. |
| Verwarming | € 80,- |
| Water | € 51,- |
| Inrichting | Niet gestoffeerd |
| Inrichting | Niet gemeubileerd |
| Status | Verkocht |
| Aanvaarding | In overleg |
| Laatste wijziging | Donderdag 18 december 2025 |
| Type object | Woonhuis, eengezinswoning, twee onder een kap woning |
| Soort bouw | Bestaande bouw |
| Bouwperiode | 1970 |
| Dakbedekking | Bitumen Dakpannen |
| Type dak | Zadeldak |
| Keurmerken | Energie prestatie advies |
| Isolatievormen | Dubbel glas Vloerisolatie Volledig geïsoleerd |
| Perceeloppervlakte | 327 m² |
| Woonoppervlakte | 144,2 m² |
| Inhoud | 511 m³ |
| Oppervlakte externe bergruimte | 21 m² |
| Oppervlakte gebouwgebonden buitenruimte | 16,3 m² |
| Aantal bouwlagen | 3 |
| Aantal kamers | 5 (waarvan 4 slaapkamers) |
| Aantal badkamers | 1 (en 2 aparte toiletten) |
| Ligging | In woonwijk |
| Type | Achtertuin |
| Hoofdtuin | Ja |
| Oriëntering | Zuidoost |
| Heeft een achterom | Ja |
| Staat | Prachtig aangelegd |
| Energielabel | A+++ |
| CV ketel | Intergas |
| Warmtebron | Gas |
| Bouwjaar | 2023 |
| Combiketel | Ja |
| Eigendom | Eigendom |
| Warm water | CV-ketel Elektrische boiler |
| Verwarmingssysteem | Centrale verwarming Gaskachels Vloerverwarming (gedeeltelijk) Warmtepomp |
| Ventilatie methode | Natuurlijke ventilatie |
| Keukenvoorzieningen | Inbouwapparatuur Spoeleiland |
| Badkamervoorzieningen | Dubbele wastafel Inloopdouche Ligbad Wastafel Wastafelmeubel |
| Parkeergelegenheid | Vrijstaande stenen garage |
| Heeft kabel-tv | Ja |
| Glasvezelaansluiting aanwezig | Ja |
| Tuin aanwezig | Ja |
| Heeft een garage | Ja |
| Beschikt over een internetverbinding | Ja |
| Heeft zonnepanelen | Ja |
| Kadastrale aanduiding | Berkel B 2474 |
| Perceeloppervlakte | 327 m² |
| Omvang | Geheel perceel |
| Eigendomsituatie | Eigen grond |