Beschrijving
Zoekt u een van de grootste huizen van Beverwijk?
Dit buitengewoon grote huis, in 1928 onder architectuur ontworpen door H.J.W. Meyran (gevelsteen), staat te koop. Aan vierkante meters heeft u immers nooit genoeg? Kom dan snel kijken. Wij mogen u een fantastisch ruime woning laten zien met maar liefst 349 m2 woonoppervlak. De mogelijkheden zijn legio! Wilt u veel woonoppervlak met een heerlijke tuin of wellicht: een grote woning met een praktijk of kantoor aan huis? Misschien gaat u hier wel met meerdere gezinnen wonen? Ook ideaal voor ouders met hun kinderen en zelfs kleinkinderen- met allemaal een eigen opgang en etage. We nemen u mee door de woning en vertellen u graag meer over de mogelijkheden. Bij een concreet plan van splitsen kan er een indicatieverzoek ingediend worden bij de gemeente Beverwijk om de haalbaarheid hiervan te testen.
De woning is gelegen aan de Scheijbeecklaan, maar heeft ook een in ingang aan de dr. Schuitstraat (om de hoek). De woning is keurig onderhouden, heeft een energielabel C, 4 parkeerplaatsen op eigen terrein, een heerlijke tuin en is gelegen in de zeer gewilde en groene wijk, in 1924 opgezet als villapark “Oud-Akerendam”, op enkele minuten loopafstand van het centrum en trein- en busstation van Beverwijk. Er is een goede verbinding naar Haarlem, Amsterdam en Alkmaar.
Beverwijk heeft al 750 jaar stadsrechten en heeft veel moderne faciliteiten. Denk aan de bekende (winkel) Breestraat, grote bioscoop, theater, de Beverwijkse Bazaar en diverse restaurantjes op loopafstand van deze woning. Rij 10 minuten met de auto of pak lekker de fiets en 15 minuten later bent u aan het strand van Wijk aan Zee.
U komt toch ook kijken? Dit kan bij Noort Makelaars ook op zaterdag!
Loopt u alvast mee door de woning?
Zowel aan de Scheijbeecklaan als aan de Dr. Schuitstraat vindt u een oprit met ruimte voor meerdere auto’s. Via de voordeur komt u in de hal die toegang geeft naar het eerste toilet van de drie op deze etage. Linksaf komt u in de grote ruimte die nu als wellness is ingericht met een bar, open haard, stoomcabine en sauna. Een heerlijke relax- of hobbyruimte of eventueel geschikt voor praktijk of kantoor aan huis. Hier is een opgang naar het dakterras. Vanuit de hal is het rechtsaf naar de woonkamer. Een heerlijke ruimte met veel licht door de grote raampartijen en ook hier is een open haard. De woonkamer heeft grote schuifdeuren naar de zonnige tuin. Via de woonkamer komen we in de keuken met aangebouwde serre. Midden in de woning is een kantoor met aangrenzend het tweede toilet, eveneens met fonteintje. Aan de achterzijde van de woning vinden we de grote slaapkamer met aangrenzend een ruime kleedkamer en een badkamer met douche, toilet en dubbele wasbak. Via het kantoor lopen we door naar de entree aan de dr. Schuitstraat. Voor deze entree is er parkeerruimte voor nog twee auto's, waarvan een met een carport en er is een inpandige berging te vinden voor de fietsen en eventueel een scooter. De entree heeft een trap naar de eerste etage.
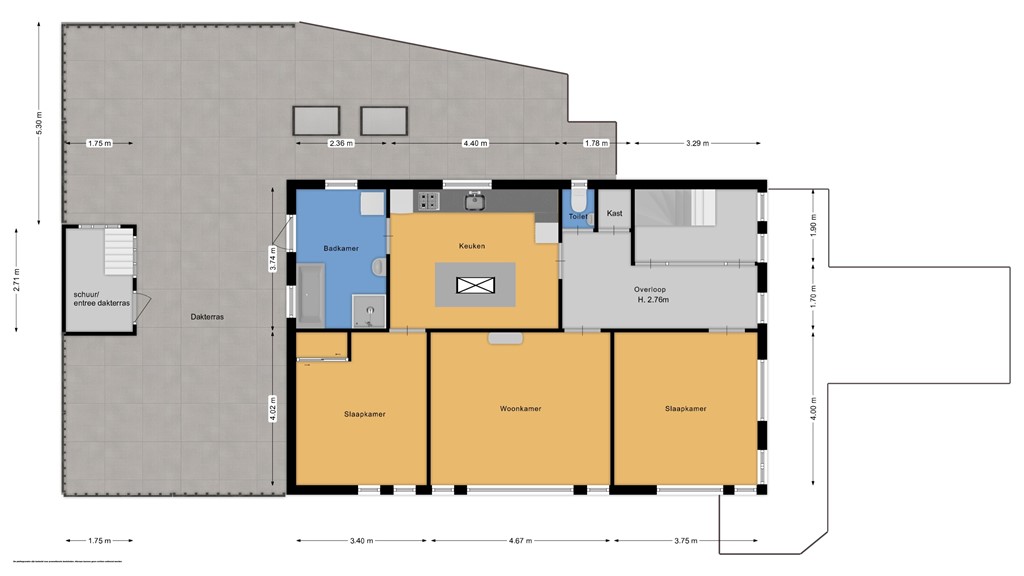
Op de eerste etage vinden we de overloop met opgang naar de tweede etage, maar ook de afsluitbare toegang naar de ruimtes op deze verdieping. Deze etage is dus prima als afzonderlijke woonruimte te gebruiken of weer bij de gehele woning te betrekken. Op de eerste verdieping vindt u maar liefst drie ruime kamers, een keuken, een badkamer met douche en ligbad en nog een separaat toilet. Tevens is er een zeer groot dakterras met een berging te vinden waar je de hele dag van de zon kunt genieten.
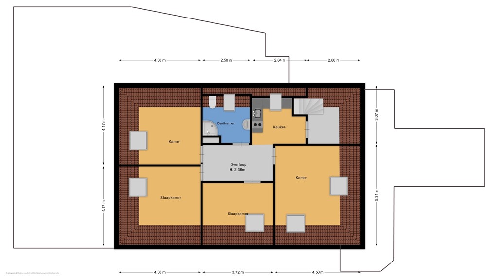
De tweede etage is apart af te sluiten zodat er een zelfstandige woonunit ontstaat. Ook deze etage is weer eenvoudig bij de gehele woning te betrekken. Op deze etage vindt u maar liefst 4 ruime kamers, een keuken en een badkamer met douche, toilet en een wastafel.
De woning is te groot om in woorden te beschrijven! Wij nemen u graag mee door de woning om alle ruimtes te laten zien en de mogelijkheden te bespreken.
De belangrijkste punten nog even op een rij:
• Hoekwoning in een gewilde en groene buurt
• Woonoppervlakte van maar liefst 349m2
• Veel mogelijkheden met de ruimte (meerdere gezinnen / praktijk aan huis)
• Heerlijke ruime en zonnige tuin omringd door bomen
• Groot perceel van 408m2
• Inhoud ca 1286m3
• Groot dakterras
• Op enkele minuten loopafstand van het centrum en van bus- en treinstation Beverwijk
• Strand van Wijk aan Zee op ca. 4 km. afstand
• Eigen grond
• 4 parkeerplaatsen op eigen terrein
• Energielabel C
• Zonnepanelen
• CV-ketel Intergas 2023
• Krachtstroomaansluiting
• Glasvezelaansluiting
• Ook op zaterdag te bezichtigen
Plattegronden
157971540_scheijbeecklaan_perceel_first_design_20240529_cc836e.jpg
157971540_scheijbeecklaan_begane_grond_first_design_20240529_117bf5.jpg
157971540_scheijbeecklaan_eerste_verdiepi_first_design_20240529_c24420.jpg
157971540_scheijbeecklaan_tweede_verdiepi_first_design_20240529_68225a.jpg