| Prijs | € 595.000,- k.k. |
| Type object | Woonhuis, eengezinswoning, twee onder een kap woning |
| Perceeloppervlakte | 361 m² |
| Woonoppervlakte | 135 m² |
| Aanvaarding | In overleg |
| Status | Verkocht |
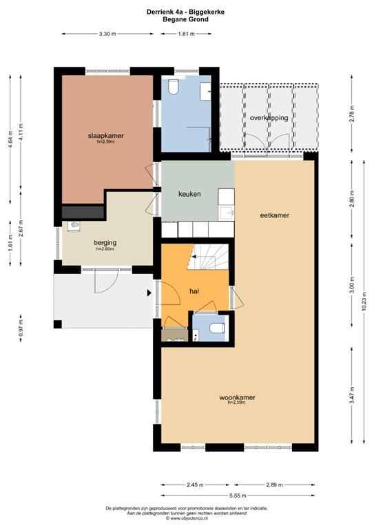
Prachtig gelegen, ruime en energiezuinige 2/1 kapwoning Grijp uw kans! Op een van de mooiste locaties van Biggekerke. Ruime in 2020 nieuw gebouwde 2/1 kapwoning met vrijstaande houten schuur op een mooi perceel. Woning is ook nog eens levensloopbestendig door de aanwezigheid van een volledig woonprogramma op de begane grond. De woning is goed geïsoleerd en heeft 12 zonnepanelen met warmtepomp. Laag energieverbruik en maanlasten. De woning is aan de achterzijde zeer vrij gelegen. Vrij uitzicht over de achtergelegen landerijen. Heerlijke zonnige tuin met veel privacy. Uniek object en direct instap klaar. Zien is kopen. Indeling woning: Begane grond, hal met trap, meterkast en toilet. Deur naar woonkamer met aan de achterzijde de eetkamer en de open keuken. Aan de achterzijde tuindeuren naar buiten. Boven de tuindeuren een overkapping. Vanuit de keuken toegang tot de bijkeuken met hier vaste kast, warmtepomp opstelling en aansluiting voor wasmachine en droger. Vanuit de keuken tevens deur naar de slaapkamer op de begane grond met aangrenzend een badkamer met toilet, badmeubel en douchehoek. Eerste etage: Overloop met vlizo naar zeer ruime zolder. De mogelijkheid bestaat om nog vaste trap naar zolder te maken en hier nog extra slaapkamers te realiseren. Verder drie slaapkamers en een badkamer met toilet, badmeubel en een douchehoek. Kortom een prachtige en veelzijdige woning met een groot wooncomfort. Maak snel een afspraak voor een geheel vrijblijvende bezichtiging.
| Referentienummer | 06232 |
| Vraagprijs | € 595.000,- k.k. |
| Inrichting | Niet gestoffeerd |
| Inrichting | Niet gemeubileerd |
| Status | Verkocht |
| Aanvaarding | In overleg |
| Laatste wijziging | Vrijdag 17 oktober 2025 |
| Type object | Woonhuis, eengezinswoning, twee onder een kap woning |
| Soort bouw | Bestaande bouw |
| Toegankelijkheid | Senioren |
| Bouwperiode | 2022 |
| Dakbedekking | Dakpannen |
| Type dak | Zadeldak |
| Isolatievormen | Volledig geïsoleerd |
| Perceeloppervlakte | 361 m² |
| Woonoppervlakte | 135 m² |
| Inhoud | 550 m³ |
| Oppervlakte overige inpandige ruimten | 12 m² |
| Oppervlakte externe bergruimte | 16 m² |
| Oppervlakte gebouwgebonden buitenruimte | 9 m² |
| Aantal bouwlagen | 2 |
| Aantal kamers | 5 (waarvan 4 slaapkamers) |
| Aantal badkamers | 2 (en 1 apart toilet) |
| Type | Achtertuin |
| Hoofdtuin | Ja |
| Oriëntering | Noord west |
| Heeft een achterom | Ja |
| Staat | Normaal |
| Aantal parkeerplaatsen | 1 |
| Warm water | Elektrische boiler |
| Verwarmingssysteem | Vloerverwarming (gedeeltelijk) Warmtepomp |
| Badkamervoorzieningen Badkamer 1 | Douche Toilet Vloerverwarming Wastafelmeubel |
| Badkamervoorzieningen Badkamer 2 | Douche Toilet Wastafelmeubel |
| Tuin aanwezig | Ja |
| Heeft schuur/berging | Ja |
| Heeft zonnepanelen | Ja |
| Kadastrale aanduiding | Valkenisse E 2221 |
| Perceeloppervlakte | 12 m² |
| Omvang | Geheel perceel |
| Eigendomsituatie | Eigen grond |
| Kadastrale aanduiding | Valkenisse E 2171 |
| Perceeloppervlakte | 26 m² |
| Omvang | Geheel perceel |
| Eigendomsituatie | Eigen grond |
| Kadastrale aanduiding | Valkenisse E 2149 |
| Perceeloppervlakte | 323 m² |
| Omvang | Geheel perceel |
| Eigendomsituatie | Eigen grond |