Beschrijving

Wonen met ruimte om te groeien – welkom in de Dronenwijk!

Droom je van een huis waar ruimte en licht centraal staan? Deze fijne tussenwoning uit 1970 geeft je het allemaal: vijf ruime slaapkamers, een lichte woonkamer met knusse houtkachel en een moderne open keuken om samen te genieten. Van de royale overloop op zolder tot de diepe zonnige tuin op het zuidoosten – overal voel je de vrijheid en warmte. Met een riante voortuin, scholen, winkels, station én een groene parkzone met speeltuin vlakbij, is dit de perfecte plek voor gezinnen waar je vanaf het eerste moment het gevoel hebt dat je écht thuis bent. 

Highlights van de woning:
•	Gebouwd in 1970: een solide basis 
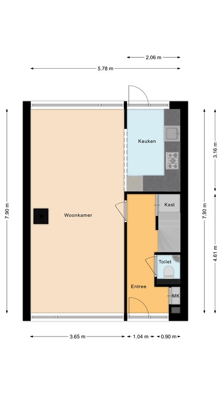
•	Comfortabel wonen op 126 m², gelegen op een praktisch perceel van 142 m²
•	Sfeervolle, lichte woonkamer met een gezellige houtkachel voor de koude dagen
•	Moderne open keuken met alle gewenste inbouwapparatuur
•	Maar liefst vijf fijne slaapkamers – volop ruimte voor gezin, werk en hobby
•	Badkamer met een heerlijk ruim ligbad om volledig te ontspannen
•	Zolderverdieping met twee grote kunststof dakkapellen ( achter HR++ glas), extra dakraam en een royale, lichte overloop met wastafel
•	Voorzien van energielabel C 
•	Diepe, zonnige achtertuin op het zuidoosten met vrijstaande stenen berging en achterom
•	Riante en fraai aangelegde voortuin (nieuw aangelegd in zomer 2025) – een heerlijke plek om in de zon te zitten
•	Op korte loopafstand van scholen en het station, en vlakbij een groene parkzone met speeltuin

Omgeving.
De woning ligt in de Dronenwijk en deze is goed bereikbaar via de Goudseweg. Via deze straat zijn de A12 en de N11 binnen enkele autominuten bereikbaar. Het station van Bodegraven is binnen enkele fietsminuten bereikbaar. Vanuit hier ben je met de trein in ca. 20 minuten in Leiden of in Utrecht. 
De Dronenwijk is een kindvriendelijke wijk. Voorzieningen als scholen en sportverenigingen bevinden zich op wandelafstand. Het centrum van Bodegraven, met gezellige winkeltjes en restaurantjes is gemakkelijk bereikbaar met de fiets.

www.heemraadslaan18.nl

Maak een afspraak om deze mooie woning in het echt te bewonderen. Dit kan door te reageren via de woning op Funda, we nemen dan contact met je op om een afspraak in te plannen. We sturen je dan ook meer informatie over deze woning toe, zodat jij je goed kan voorbereiden op de bezichtiging en gerichte vragen kunt stellen.

Deze informatie is door ons met de nodige zorgvuldigheid samengesteld. Er wordt echter geen enkele aansprakelijkheid aanvaard voor enige onvolledigheid, onjuistheid of anderszins, dan wel de gevolgen daarvan. Alle opgegeven maten en oppervlakten zijn indicatief.

Kenmerken