Beschrijving

Zon, ruimte en gezelligheid in je eigen tuin!

Deze charmante woning uit 1923 biedt een sfeervolle woonkamer en een moderne keuken met eethoek in de lichte aanbouw, waar je geniet van heerlijk daglicht. De diepe achtertuin op het zuidoosten met overkapping en nieuwe grasmat is perfect voor zon, privacy en gezellig samenzijn. Drie slaapkamers, een nette badkamer, berging, houten schuur en houthok maken het plaatje compleet. Gelegen in een charmante straat, dichtbij station, winkels en scholen – hier combineer je licht, ruimte en tuinplezier!

Highlights van de woning:
-	Energielabel: C
-	Bouwjaar: 1923
-	Perceeloppervlakte: 156 m²
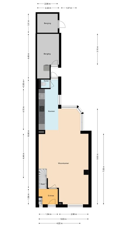
-	Woonoppervlakte: 86 m²
-	Ruime, sfeervolle woonkamer met aanbouw, veel lichtinval en gezellige houtkachel (ter overname) – de perfecte plek om te ontspannen.
-	Lichte, smaakvolle woonkeuken met grote raampartij voor een zonnige start van je dag.
-	Moderne keuken (2019) voorzien van diverse inbouwapparatuur, klaar voor culinaire avonturen.
-	Drie comfortabele slaapkamers, waaronder:
•	Masterbedroom achterzijde met handige inbouwkast
•	Slaapkamer achterzijde met toegang tot het platte dak
•	Slaapkamer voorzijde met inbouwkast en rolluik
-	Nette badkamer met douche, wastafelmeubel en rolluik 
-	Ruime vliering bereikbaar via vlizotrap, ideaal voor extra opslag
-	Vernieuwde meterkast (2019) voor een moderne elektriciteitsvoorziening
-   Vernieuwd dak (2023): nieuwe dakpannen, goten, latten en zinkwerk – zorgeloos wonen!
-	Platte dak perfect geschikt voor zonnepanelen.
-	Zeer diepe achtertuin op het zuidoosten met fantastische overkapping, strak aangelegd en nieuwe grasmat – volop zon en privacy!
-	Ruime, aangebouwde stenen berging (semi-geïsoleerd) met wasmachine- en droger aansluiting, overdekt bereikbaar.
-	Nieuwe houten schuur (2025) voor al je opslagbehoeften.
-	Handig houthok met pannendak voor het netjes opbergen van kliko’s en tuingerei
-	Toplocatie: charmante straat met karakteristieke woningen, vlakbij station, winkels, scholen en sportvoorzieningen

De omgeving. 
De woning ligt in het gezellige centrum van Bodegraven en is goed bereikbaar met de auto én met openbaar vervoer. De N11 en de A12 zijn binnen enkele autominuten bereikbaar. Het station van Bodegraven is om de hoek. Vanuit hier ben je met de trein in ca. 20 minuten in Leiden of in Utrecht. Voorzieningen als scholen en sportverenigingen bevinden zich allen in de directe omgeving.

Kijken?
Maak een afspraak om deze mooie woning in het echt te bewonderen. Dit kan door te reageren via de woning op Funda, we nemen dan contact met je op om een afspraak in te plannen. We sturen je dan ook meer informatie over deze woning toe, zodat jij je goed kan voorbereiden op de bezichtiging en gerichte vragen kunt stellen.

Deze informatie is door ons met de nodige zorgvuldigheid samengesteld. Er wordt echter geen enkele aansprakelijkheid aanvaard voor enige onvolledigheid, onjuistheid of anderszins, dan wel de gevolgen daarvan. Alle opgegeven maten en oppervlakten zijn indicatief.

Kenmerken