Beschrijving

Wonen met uitzicht, een zeldzaam mooie kans

Aan de rand van Spakenburg ligt dit ruime appartement op de eerste etage, waar rust en ruimte de hoofdrol spelen. Hier geniet je elke dag vanuit de woonkamer en de serre van een weids vergezicht over de weilanden – een uitzicht dat nooit verveelt.

Binnen stap je een royale living met open keuken binnen. De serre vormt een prachtig verlengstuk van de woonkamer en is een plek waar je het hele jaar door kunt genieten, van een kop koffie in de ochtend tot lange avonden in goed gezelschap of juist in alle rust met een boek. Buiten heb je nauwelijks onderhoud, maar wel volop mogelijkheden om het buitenleven naar binnen te halen.

Het appartement beschikt over een ruime slaapkamer, met de mogelijkheid om eenvoudig een tweede kamer te creëren. In de originele indeling lag deze direct achter de serre, een optie die nog altijd openstaat voor wie extra ruimte nodig heeft.

Praktisch gemak is hier vanzelfsprekend. Het gebouw heeft een lift en achter het complex beschik je over je eigen parkeerplaats. Daarmee is dit appartement ook perfect voor wie gelijkvloers en comfortabel wil wonen.

Een object als dit, met zoveel ruimte en zo’n uitzicht, komt maar zelden voorbij. Zie jij jezelf hier al wonen?

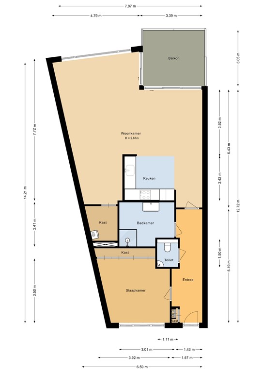
Indeling

Via de centrale entree bereik je de trap naar de eerste verdieping, waar zich dit ruime en goed ingedeelde appartement bevindt.

Je komt binnen in een ruime hal/entree met toegang tot een separaat toilet en een praktische bergkast. Vanuit de hal stap je direct de lichte woonkamer in, die zich over de volle breedte van het appartement uitstrekt. Dankzij de grote raampartijen geniet je hier van veel daglicht en een prettig uitzicht. De woonkamer biedt voldoende ruimte voor een comfortabele zithoek en een eethoek.

Aansluitend aan de woonkamer bevindt zich de open keuken, uitgevoerd in een rechte opstelling en voorzien van de gebruikelijke aansluitingen voor apparatuur. Vanuit de woonkamer is tevens toegang tot het balkon, waar je heerlijk buiten kunt zitten.

Aan de achterzijde van het appartement ligt de slaapkamer, die ruim genoeg is voor een tweepersoonsbed en is voorzien van een grote ingebouwde kast. Grenzend aan de slaapkamer vind je de badkamer, uitgerust met een wastafel en douche.

Daarnaast beschikt het appartement over extra bergruimte dankzij meerdere ingebouwde kasten elders in de woning.

Balkon

Het appartement beschikt over een royaal balkon van ca. 3,05 m x 3,39 m, dat direct grenst aan de woonkamer. Dankzij het ruime formaat is er voldoende plek voor zowel een gezellige zit- als eethoek. Een bijzonder pluspunt is dat het balkon volledig kan worden afgesloten met glazen wanden. Hierdoor kun je er het hele jaar door van genieten — open in de zomer voor een frisse bries, of dicht in de koelere maanden om beschut te zitten terwijl je toch het buitengevoel behoudt. De glazen wanden zorgen bovendien voor veel lichtinval en geven het balkon een moderne, luxe uitstraling.

Kenmerken