Beschrijving

Wonen met ruimte, stijl én een tuin om van te dromen

Deze tussenwoning aan De Bolder 6 is er een van het zeldzame soort: recent gebouwd, uitstekend afgewerkt én verrassend ruim, met maar liefst 150 m² woonoppervlak. Een ideale plek voor wie op zoek is naar comfortabel gezinsleven met net dat beetje extra.

De woonkamer is een heerlijke plek om te zijn. De sfeervolle haard vormt het warme middelpunt, terwijl de visgraatvloer met vloerverwarming zorgt voor comfort en stijl in één. Dankzij de dubbele openslaande deuren aan beide zijden stroomt het licht rijkelijk naar binnen én loopt het leven naadloos over in de tuin. En die tuin? Die is royaal, fraai aangelegd en voorzien van een XL stenen schuur én een overdekte veranda om het hele jaar door van buiten te genieten.

Ook boven is de ruimte volop aanwezig. De ouderslaapkamer is opvallend royaal, daarnaast zijn er nog twee fijne slaapkamers, een separaat toilet en een complete badkamer die van alle gemakken is voorzien. De zolderverdieping biedt een ruime wasruimte en een grote vierde slaapkamer, met bovendien de mogelijkheid om hier eenvoudig een extra kamer te creëren.

Dankzij het recente bouwjaar is alles goed geïsoleerd en helemaal van deze tijd. De zonnepanelen maken het geheel compleet.
Je woont hier in een rustige, kindvriendelijke buurt, op korte fietsafstand van het dorpscentrum. Alles wat je nodig hebt – van winkels tot scholen – ligt binnen handbereik.

Is dit jouw nieuwe ruime gezinswoning? Bel ons gerust voor een bezichtiging.

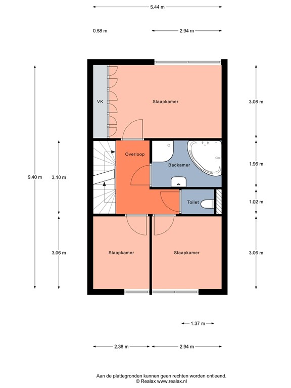
Indeling

Entree aan de voorzijde. Hal met toegang tot toilet en de trap naar de eerste verdieping. Vanuit de hal toegang tot de woonkamer met een open verbinding tot de keuken.  In zowel de keuken als de woonkamer ligt een visgraad vloer.

Eerste verdieping

Overloop met toegang tot 3 slaapkamers een badkamer en een apart toilet. Eén royale ouderslaapkamer met vaste kastenwand. Een tweede royale slaapkamer en een kinderkamer.
De badkamer is voorzien van een inloopdouche en een ruim ligbad, wastafelmeubel met treklades, spiegel en radiator. 
Trapopgang naar de tweede verdieping.

Tweede verdieping

Op de zolder zijn 2 slaapkamers gesitueerd, waarvan 1 met dakkapel. Tevens is er een CV ketel opstellingen de aansluiting voor wasmachine en droger.

Tuin

Tuin op het noorden met veranda en berging.

Bijzonderheden

8 zonnepanelen
rolluiken eerste etage
airco op ouderslaapkamer en op zolder

Kenmerken