Beschrijving

Da Costastraat 1 ruimte, rust en mogelijkheden
Op de hoek van de Da Costastraat staat deze verrassend ruime woning, gelegen op een royaal perceel van maar liefst 223 m². Al bij aankomst valt de brede opzet op: een fijne oprit, een eigen garage en een huis dat direct uitnodigt.

Binnen voelt het meteen goed aan. Met een breedte van 6,2 meter geniet je hier van opvallend veel leefruimte. De woning is uitstekend onderhouden en biedt een solide basis met kunststof kozijnen en een energielabel B, mede dankzij diverse verduurzamingsmaatregelen. Wie wil, vindt hier bovendien alle ruimte voor verdere modernisering of uitbreiding.

Ook buiten is het genieten. De achtertuin is sfeervol aangelegd en biedt dankzij de ligging op eigen grond veel privacy en vrijheid. Onder de veranda is het heerlijk vertoeven, een plek waar zomeravonden vanzelf wat langer duren. De garage vormt daarnaast een waardevolle extra, die eenvoudig kan worden betrokken bij de woning voor nóg meer wooncomfort of hobbyruimte.

Da Costastraat 1 is zo’n woning waar ruimte, rust en potentie samenkomen. Een solide basis met karakter, klaar voor de volgende stap in woongeluk.

Indeling

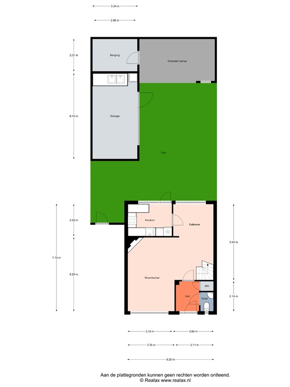
Via de voordeur kom je in de hal met meterkast, toilet en trapopgang naar de eerste verdieping. Vanuit de hal stap je de ruime woonkamer binnen, waar de grote raampartijen zorgen voor veel lichtinval en een prettige sfeer. De woonkamer biedt volop ruimte voor een comfortabele zithoek en staat in open verbinding met de eetkamer. Dankzij de hoekligging geniet je hier van extra licht en privacy.

Aan de achterzijde bevindt zich de moderne keuken, uitgevoerd in een strakke opstelling met veel werk- en kastruimte. De keuken is voorzien van diverse inbouwapparatuur, waaronder een kookplaat, afzuigkap, oven en vaatwasser. Vanuit de keuken is er direct toegang tot de tuin – ideaal tijdens het koken of bij zomerse etentjes buiten.

Eerste verdieping

De eerste verdieping telt vier slaapkamers, een badkamer en een lichte overloop die toegang biedt tot alle vertrekken.

Aan de voorzijde bevinden zich twee slaapkamers, waaronder een royale kamer met een praktische kastrij voorzien van vaste inbouwkasten – ideaal voor kleding of linnengoed. De tweede slaapkamer aan de voorzijde is eveneens goed van formaat en geschikt als kinderkamer, werkkamer of logeerkamer.

Aan de achterzijde liggen nog twee slaapkamers, beide met een prettige lichtinval en een nette afwerking. Dankzij de rechte gevels en goede indeling bieden alle kamers volop gebruiksmogelijkheden.

De badkamer, centraal op de verdieping gelegen, is voorzien van een douche, wastafelmeubel en een tweede toilet. 

Deze verdieping combineert ruimte, functionaliteit en comfort

Tweede verdieping

De zolderverdieping is via een vlizotrap bereikbaar en biedt een verrassend ruime en multifunctionele ruimte. Dankzij de goede hoogte en breedte is deze verdieping ideaal als bergzolder, maar ook geschikt om bijvoorbeeld seizoensspullen of sportuitrusting netjes op te bergen.

Tevens bevindt zicht hier de cv-installatie.

Tuin

De achtertuin ligt op het oosten en is met zorg en oog voor detail aangelegd – een plek waar groen, comfort en gezelligheid samenkomen. Dankzij de royale oppervlakte en de gunstige ligging geniet je hier al vroeg van de ochtendzon, terwijl de beschutte opzet zorgt voor privacy en rust.

De tuin is grotendeels voorzien van grote terrastegels die een strak en onderhoudsvriendelijk geheel vormen, afgewisseld met borders vol weelderige beplanting. Bloeiende planten, heesters en een sierlijk boompje zorgen voor een sfeervol en levendig geheel door alle seizoenen heen.

Achterin de tuin bevindt zich een ruime veranda met berging, uitgevoerd in een landelijke stijl met houten balken en overkapping – een heerlijke plek om het hele jaar door buiten te zitten. Deze veranda biedt ruimte voor een loungeset of eethoek en is ideaal voor lange zomeravonden of gezellige borrels.

Daarnaast is er nog een vrijstaande stenen garage aanwezig, perfect voor het opbergen van fietsen, tuingereedschap of hobbyspullen. De combinatie van verharding, beplanting en overdekte zitruimte maakt deze tuin tot een veelzijdige buitenruimte waar je volop kunt genieten van het buitenleven.

Bijzonderheden

- 5 zonnepanelen op de garage

Kenmerken