Beschrijving

Drie volwaardige woonlagen, een indrukwekkend gevoel van ruimte en een uitzicht dat nooit verveelt. Batterijen 12 laat zien hoe comfortabel en luxe een moderne drive in woning kan zijn!

Al bij aankomst valt de extra brede voorstraat op, waardoor je altijd meerdere auto's kwijt kunt op eigen terrein. Binnen opent zich een woning die verrassend veel mogelijkheden biedt. De begane grond is royaal opgezet met een ruime hal, een praktische wasruimte en een volwaardige tweede leefruimte. Of je hier kiest voor een extra woonkamer, een stijlvolle bar of een hobbyruimte, alles voelt logisch en doordacht. De aanwezigheid van een tweede badkamer maakt deze verdieping compleet en bijzonder comfortabel.

Op de eerste etage ontvouwt zich het hart van de woning. De woonkamer en keuken vormen samen een sfeervolle leefverdieping waar afwerking en luxe samenkomen. Stalen deuren en strak afgewerkte wanden zorgen voor een moderne, rustige uitstraling die direct prettig aanvoelt. Vanuit de woonkamer stap je het dakterras op, een heerlijk verlengstuk van de leefruimte waar het uitzicht over het Eemmeer elke dag weer indruk maakt. Dankzij de afsluitbare opzet is dit een plek waar binnen en buiten moeiteloos in elkaar overlopen.

De bovenste verdieping biedt drie ruime slaapkamers en een complete badkamer. Ook hier is alles verzorgd en in balans, waardoor iedere ruimte prettig en volwaardig aanvoelt.

Batterijen 12 ligt op een fantastische plek, op korte afstand van het centrum van Spakenburg. Hier woon je modern en royaal, met het water, de levendigheid en alle voorzieningen binnen handbereik.

Indeling

Entree via de hal met trapopgang naar de verdieping. Vanuit de hal zijn het separate toilet, de badkamer en diverse vertrekken bereikbaar. Aan de achterzijde bevindt zich een royale hobbyruimte met meerdere ramen, waardoor deze ruimte prettig licht is en geschikt voor uiteenlopende gebruiksdoeleinden.

Verder beschikt deze woonlaag over twee bergingen, ideaal voor opslag of hobby’s. Aan de voorzijde is een praktische wasruimte met aansluitingen voor wasapparatuur en de meterkast gesitueerd. De grootste berging heeft dubbele deuren naar buiten en is ook direct vanuit de hal toegankelijk.

Eerste verdieping

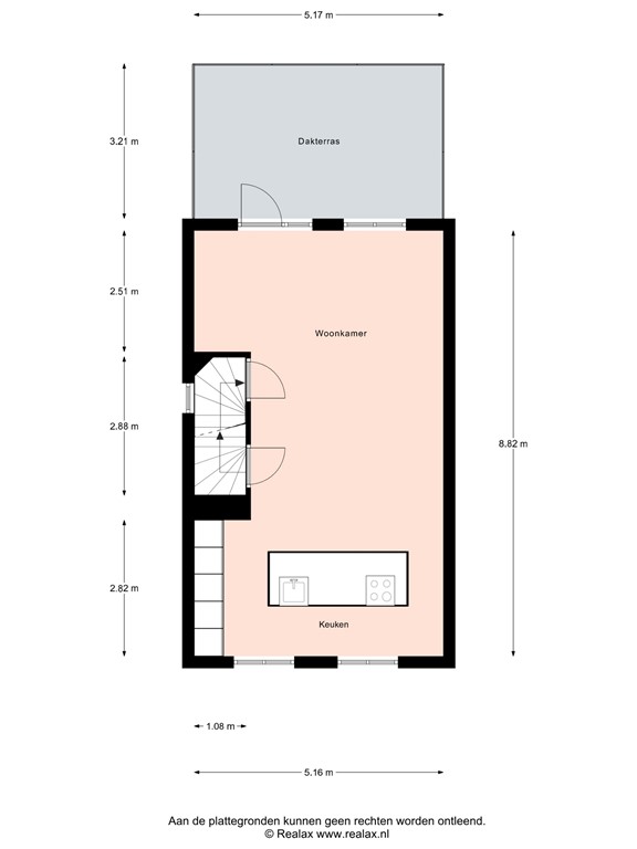
Via de trapopgang komt u uit op de woonverdieping met een open en lichte indeling. Aan de voorzijde bevindt zich de keuken, voorzien van een kookeiland en met voldoende ruimte voor een eethoek. De woonkamer is centraal en aan de achterzijde gesitueerd en biedt een prettige leefruimte met veel lichtinval.

Via de woonkamer is het royale dakterras bereikbaar, een fijne buitenruimte met volop mogelijkheden om buiten te zitten en te ontspannen. De verdieping kenmerkt zich door een open karakter en een goede verbinding tussen binnen en buiten.

Tweede verdieping

Via de vaste trap komt u uit op de overloop, die toegang biedt tot alle vertrekken. Op deze verdieping bevinden zich in totaal drie slaapkamers, variërend in formaat en daardoor flexibel in te richten als slaap-, werk- of hobbykamer.

Daarnaast is er een complete badkamer aanwezig, voorzien van een ligbad, douche, wastafelmeubel en toilet. Dankzij de efficiënte indeling is deze verdieping praktisch en comfortabel ingericht, ideaal voor gezinnen of voor het creëren van extra werk- en logeerruimte.

Balkon

Vanuit de woonkamer is het ruime dakterras bereikbaar. Dit dakterras is gelegen op het noordoosten en heeft een afmeting van circa 5,17 x 3,21 meter. Dankzij de royale maatvoering is er voldoende ruimte voor een comfortabele lounge- of eethoek. Het terras is beschut uitgevoerd en biedt een prettige buitenruimte met vrij uitzicht over het eemmeer, ideaal om in alle rust van het buitenleven te genieten.

Bijzonderheden

- Warmtepomp
- 15 zonnecollectoren
- 2 airco's
- vloerverwarming en koeling op elke etage
- volledig voorzien van rolluiken
- alle ramen zijn voorzien van horren

Kenmerken