Beschrijving
Heerlijk ruim wonen in de Rengerswetering
Dwarskamp 7 laat zien hoe fijn het wonen kan zijn in een jonge, kindvriendelijke wijk. Voor de deur ligt een groen park met speeltuin, waardoor kinderen veilig kunnen spelen en jij zelf kunt genieten van het vrije uitzicht.
Binnen word je verrast door de ruimte. Dankzij de uitbouw is de woonkamer royaal en licht, met vloerverwarming die zorgt voor een aangenaam comfort. Alles is netjes afgewerkt en heeft een moderne uitstraling, zodat je zonder klussen kunt verhuizen.
De tuin op het westen is een plek om van te houden: zonnig, overzichtelijk en met veel privacy door de parkeerhaven achter de woning. Bovendien heb je altijd de luxe van een eigen parkeerplek direct bij huis.
De wijk Rengerswetering staat bekend om zijn rustige, vriendelijke sfeer, terwijl alle voorzieningen zoals scholen, supermarkt en het centrum van Spakenburg snel te bereiken zijn.
Zie jij jezelf hier al genieten van ruimte, comfort en het buitenleven?
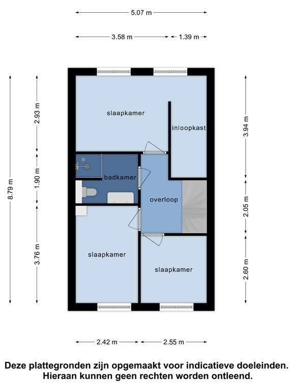
Indeling
Entree met hal, toilet en trapopgang. Aan de voorzijde bevindt zich de keuken, terwijl de ruime woonkamer aan de achterzijde toegang geeft tot de tuin met berging.
Eerste verdieping
Overloop met toegang tot drie slaapkamers, een inloopkast en de badkamer.
Tweede verdieping
Ruime zolder met knieschotten en volop mogelijkheden voor extra slaap- of werkruimte.
Tuin
De achtertuin is onderhoudsvriendelijk aangelegd met voldoende ruimte voor een lounge- en eethoek. Achterin staat een praktische berging en er is een achterom. aanwezig.
Plattegronden
150365499_dwarskamp_7_begane_grond_first_design_20231208_8627be.jpg
150365499_dwarskamp_7_1e_verdieping_first_design_20231208_750a96.jpg
150365499_dwarskamp_7_2e_verdieping_first_design_20231208_b314fc.jpg
150365499_dwarskamp_7_berging_first_design_20231208_1417d2.jpg