Beschrijving

Deze eengezinswoning ligt aan een rustige straat in een prettige, kindvriendelijke buurt en voelt vanaf het eerste moment vertrouwd aan. Een plek waar het dagelijks leven soepel verloopt en waar je zonder moeite je draai vindt.

Binnen is de woning praktisch en comfortabel opgezet. De indeling is logisch, met voldoende ruimte voor het hele gezin en een prettige sfeer die uitnodigt om hier écht te wonen. Een fijne basis die klopt en makkelijk naar eigen smaak is in te richten.

De achtertuin ligt op het zuiden en vormt een heerlijke plek om van de zon te genieten. Of je nu rustig wilt zitten met een kop koffie of juist buiten wilt leven op lange zomerdagen, hier kan het. Een extra pluspunt is het parkeren op eigen terrein in de tuin — een luxe die je in deze omgeving niet vaak tegenkomt.

Ook de ligging maakt het geheel compleet. Basisschool, speeltuinen en supermarkt liggen op loopafstand, wat zorgt voor een overzichtelijke en prettige woonomgeving. Een buurt waar je kinderen veilig opgroeien en waar je zelf elke dag met plezier thuiskomt.

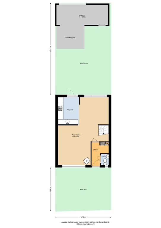
Indeling

Via de entree met meterkast en toiletruimte betreedt u de woning. Vanuit de hal is er toegang tot de ruime en lichte woonkamer met een plafondhoogte van ca. 2,59 m. De woonkamer biedt volop mogelijkheden voor een comfortabele zithoek en eethoek en staat in open verbinding met de keuken. De keuken is praktisch ingericht en voorzien van diverse inbouwapparatuur. Vanuit de woonkamer is tevens de trapopgang naar de verdieping bereikbaar.

Eerste verdieping

Via de vaste trap komt u op de overloop, die toegang biedt tot drie slaapkamers en de badkamer. De slaapkamers zijn praktisch van formaat en deels voorzien van vaste kasten, wat zorgt voor extra bergruimte. De badkamer is compleet ingericht met een douche, wastafel en toilet.

Tweede verdieping

Via de vaste trap bereikt u de overloop op de zolderverdieping. Vanaf hier is er toegang tot een ruime zolderkamer met een prettige plafondhoogte van ca. 2,59 m. De kamer is voorzien van vaste kasten en biedt volop mogelijkheden als extra slaapkamer, werkruimte of hobbykamer. Daarnaast is er extra bergruimte aanwezig achter de knieschotten.

Tuin

De zonnige achtertuin is gelegen op het zuidwesten, waardoor u hier tot in de avond van de zon kunt genieten. De tuin is grotendeels bestraat en daarmee onderhoudsvriendelijk ingericht, met volop ruimte voor meerdere zitplekken. Aan de achterzijde beschikt de tuin over een overkapping en een schuur, wat zorgt voor extra bergruimte en beschutting. Via de achterom is de tuin goed bereikbaar en bestaat de mogelijkheid om de auto op eigen terrein te parkeren.

Kenmerken