Beschrijving

Deze verrassend ruime eengezinswoning is er zo één waar alles al klopt. Met een eigen oprit en carport, uitbouwen aan zowel de voor- als achterzijde en maar liefst vijf slaapkamers is dit een ideale woning voor wie ruimte en comfort zoekt, zonder nog te hoeven verbouwen.

Bij aankomst valt direct de praktische opzet op. Parkeren doe je hier gewoon op eigen terrein en dankzij de uitbouw aan de voorzijde is er binnen direct extra leefruimte ontstaan. Eenmaal binnen ervaar je hoe prettig deze woning is ingedeeld. De uitgebouwde woonkamer ,met vloerverwarming, aan de achterzijde zorgt voor een heerlijke, lichte leefruimte waar je moeiteloos een royale zithoek en eethoek creëert. Aan de voorzijde is de keuken juist extra ruim opgezet, wat het geheel een fijne balans geeft tussen koken en wonen.

De woning is met zorg onderhouden en voorzien van diverse extra’s, waardoor je hier zonder zorgen kunt intrekken. Met vijf volwaardige slaapkamers is er bovendien meer dan genoeg ruimte voor een gezin, thuiswerken of hobby’s. Iedere verdieping voelt praktisch en ruim, waardoor het huis zich moeiteloos aanpast aan verschillende woonwensen.

Ook buiten is het genieten. De tuin biedt een fijne plek om te ontspannen, te zitten in de zon of gezellig samen te komen. Een verlengstuk van de woonkamer waar je in alle rust kunt genieten van het buitenleven.

De woning is gelegen in een prettige woonomgeving met voorzieningen, scholen en uitvalswegen op korte afstand. Een fijne plek waar je rustig woont, maar alles binnen handbereik hebt.

Kortom, een instapklare gezinswoning met verrassend veel ruimte en comfort — klaar voor de volgende stap.

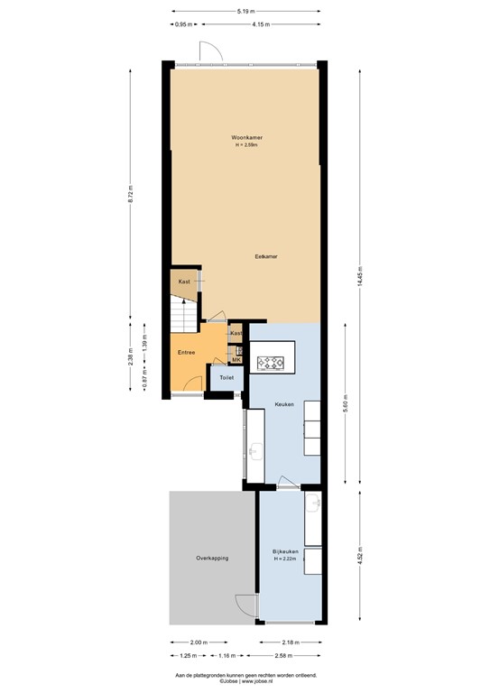
Indeling

Via de entree betreedt u de hal met meterkast, trapopgang en toegang tot het toilet. Vanuit de hal loopt u door naar de lichte en ruime woon-/eetkamer (met vloerverwaming), die zich uitstrekt over de volledige diepte van de woning. 

De keuken is gesitueerd aan de voorzijde en voorzien van diverse inbouwapparatuur. Aansluitend bevindt zich de praktische bijkeuken met extra bergruimte.

Eerste verdieping

Overloop met toegang tot drie slaapkamers en de badkamer. Twee ruime slaapkamers bevinden zich aan de achterzijde, waarvan één is voorzien van een praktische vaste kast. De derde slaapkamer ligt aan de voorzijde en is eveneens goed van formaat.

De badkamer is compleet uitgevoerd met een inloopdouche, wastafel, toilet en vloerverwarming.

Tweede verdieping

Via de overloop bereikt u de zolderverdieping, waar zich twee slaapkamers bevinden. Beide kamers zijn voorzien van bergruimte achter de knieschotten, wat zorgt voor praktische opbergmogelijkheden.

Op de overloop is tevens de opstelling voor de wasapparatuur gesitueerd en is er extra bergruimte aanwezig. Dankzij de dakramen genieten de ruimtes van prettig daglicht.

Tuin

De onderhoudsvriendelijke achtertuin is gelegen op het oosten. De tuin is grotendeels bestraat en biedt voldoende ruimte voor meerdere zitplekken, ideaal om zowel te loungen als buiten te dineren.

Achterin de tuin bevindt zich een vrijstaande berging. Daarnaast is de tuin volledig omheind en beschikt over een achterom.

Bijzonderheden

- 12 zonnepanelen
- badkamer is van januari 2025
- airco
- rolluiken eerste verdieping

Kenmerken