Beschrijving

Rietgans 41, Bunschoten-Spakenburg

Dit is nou een echte kluswoning mét ruimte. Heel veel ruimte. Met maar liefst 133 m² woonoppervlakte, een brede opzet van bijna zes meter en een keukenuitbouw is dit huis de perfecte basis voor wie groot wil wonen én zijn eigen stempel wil drukken.

De woning komt uit 1979 – degelijk gebouwd en klaar voor een flinke update. Hier ligt alles open voor wie potentie ziet: een nieuwe indeling, een frisse uitstraling, een plek die helemaal bij jou past. De huidige opzet is al logisch, maar ook flexibel. Door de keuken en woonkamer te wisselen, creëer je bijvoorbeeld een royale woonkeuken aan de achterzijde en een sfeervolle woonkamer aan de voorzijde.

Nog meer ruimte nodig? Op de verdieping kun je met een kleine aanpassing de zolder boven de uitbouw bij de leefruimte betrekken. En met vijf slaapkamers is dit huis nu al verrassend ruim.

Buiten wacht een fijne tuin op het zuiden – volop zon, privacy en ruimte voor het hele gezin. De ligging is bovendien ideaal: in een rustige, kindvriendelijke buurt waar kinderen nog buiten spelen en je alles bij de hand hebt.

Je merkt het al: dit is zo’n woning waar je doorheen moet kunnen kijken. Wie de potentie ziet, maakt hier iets bijzonders van. En doordat het huis degelijk gebouwd is, kun je de verbouwing stap voor stap aanpakken en zo helemaal naar je hand zetten.

Zelf zien of meer weten? Bel ons voor een bezichtiging – dan laten we je graag de mogelijkheden zien.

Indeling

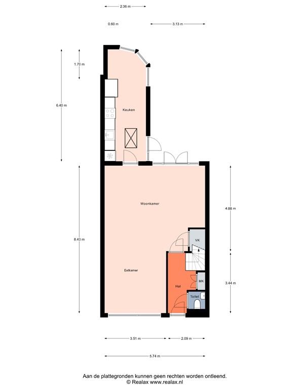
Via de voordeur kom je binnen in de hal, waar zich de meterkast (MK) en het toilet met fonteintje bevinden. Vanuit de hal is er toegang tot zowel de trapopgang naar de verdieping als tot de royale woonkamer.

De woonkamer strekt zich over de volledige breedte van de woning uit en biedt volop ruimte voor een comfortabele zithoek en een aparte eethoek aan de achterzijde. 

Aan de achterzijde in de uitbouw bevindt zich de keuken. De keuken is voorzien van een ruime werkbladopstelling en voldoende kastruimte. Vanuit de keuken is er direct toegang tot de achterzijde van de woning, waar zich bijvoorbeeld de tuin of buitenruimte kan bevinden.

Aangrenzend aan de woonkamer bevindt zich een ruime trapkast, ideaal voor extra opslagruimte.

Eerste verdieping

Via de trap bereik je de overloop, die toegang biedt tot drie ruime slaapkamers, de badkamer en de trapopgang naar de zolder.

Aan de voorzijde van de woning bevindt zich de grootste slaapkamer, die royaal van formaat is en voldoende ruimte biedt voor een tweepersoonsbed, kledingkast en eventueel een werkhoek. Aan de achterzijde zijn nog twee slaapkamers gelegen, ideaal als kinderkamer, logeerkamer of werkkamer. Dankzij de grote ramen genieten alle vertrekken van veel daglicht.

De badkamer bevindt zich aan de voorzijde t met een douche, wastafel en tweede toilet.

Tweede verdieping

Via een vaste trap kom je op de zolderverdieping, die verrassend veel ruimte en mogelijkheden biedt. De overloop geeft toegang tot twee ruime slaapkamers en handige bergruimtes (VK) aan beide zijden, weggewerkt onder de schuine dakdelen.

Beide slaapkamers zijn prettig van formaat en beschikken over dakramen, waardoor er voldoende daglicht binnenvalt. De kamers kunnen uitstekend dienen als extra slaapkamers, werkkamers of hobbyruimtes.

Op de overloop is bovendien de aansluiting voor de wasmachine en droger aanwezig, evenals de opstelling van de cv-installatie.

Tuin

De woning beschikt over een achtertuin die volledig is bestraat, waardoor deze onderhoudsvriendelijk is. De tuin biedt volop ruimte voor een gezellige zithoek en een eettafelset, ideaal om in alle rust te genieten van het buitenleven.

Dankzij de gunstige ligging is er gedurende de dag veel zon aanwezig, terwijl de hoge schutting zorgt voor optimale privacy. Langs de erfafscheiding is een deel voorzien van decoratieve begroeiing.

Kenmerken