| Prijs | € 420.000,- k.k. |
| Type object | Appartement, maisonnette |
| Perceeloppervlakte | 7 m² |
| Woonoppervlakte | 73,6 m² |
| Aanvaarding | In overleg |
Midden in het centrum van Spakenburg ligt dit moderne en goed onderhouden 3-kamer appartement, verdeeld over de eerste en tweede verdieping. Een fijne combinatie van comfortabel wonen én alles letterlijk om de hoek. Binnen valt meteen op hoe verzorgd en eigentijds het geheel aanvoelt. De woonkamer is een heerlijke plek om thuis te komen, met vanuit hier een vrij uitzicht over het winkelgebied rond het Zeilmakersplein. Dat geeft net dat beetje levendigheid, terwijl je binnen gewoon rustig je eigen ruimte hebt. Aansluitend vind je de complete keuken: praktisch ingericht en helemaal klaar voor dagelijks gebruik. Ook de rest van het appartement is keurig onderhouden. De moderne badkamer zorgt voor een frisse start van de dag en de indeling met drie kamers biedt volop mogelijkheden: comfortabel slapen, een fijne werk- of hobbykamer, of gewoon extra ruimte voor logees of spullen die je graag binnen handbereik houdt. Een extra pluspunt is de patio op het zuiden: een omheinde binnenplaats waar je beschut buiten zit en toch midden in het centrum woont. Een plek voor een kop koffie in de zon, of juist om ’s avonds nog even buiten te zitten. De ligging maakt het plaatje compleet. Winkels, horeca en voorzieningen liggen op loopafstand — je stapt de deur uit en je staat meteen in het hart van Spakenburg. Daarmee is dit een ideaal appartement voor zowel jonge kopers als voor wie graag centraal en onderhoudsvriendelijk wil wonen, met nét wat extra comfort. Zin om dit zelf te ervaren? Plan dan een bezichtiging en kijk of dit jouw plek in het centrum wordt.
Begane grond: Berging maakt onderdeel uit van gebouw met meerdere bergingen. Centrale hal met postbussen en trapopgang met traplift.
| Referentienummer | 07482 |
| Vraagprijs | € 420.000,- k.k. |
| Servicekosten | € 147,- |
| Inrichting | Niet gestoffeerd |
| Inrichting | Niet gemeubileerd |
| Aanvaarding | In overleg |
| Laatste wijziging | Woensdag 18 maart 2026 |
| Type object | Appartement, maisonnette |
| Woonlaag | 2e woonlaag |
| Soort bouw | Bestaande bouw |
| Bouwperiode | 1982 |
| Dakbedekking | Dakpannen |
| Type dak | Zadeldak |
| Isolatievormen | Dakisolatie Dubbel glas Spouwmuren Vloerisolatie |
| Perceeloppervlakte | 7 m² |
| Woonoppervlakte | 73,6 m² |
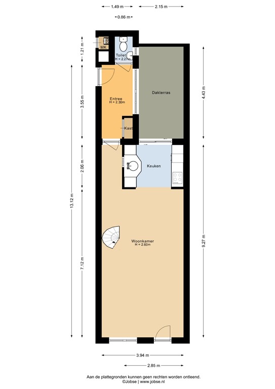
| Woonkameroppervlakte | 28,05 m² |
| Keukenoppervlakte | 5,87 m² |
| Inhoud | 264 m³ |
| Oppervlakte overige inpandige ruimten | 0,3 m² |
| Oppervlakte externe bergruimte | 7 m² |
| Oppervlakte gebouwgebonden buitenruimte | 10,3 m² |
| Balkonoppervlakte | 9,52 m² |
| Aantal bouwlagen | 2 |
| Aantal kamers | 3 (waarvan 2 slaapkamers) |
| Aantal badkamers | 1 (en 1 apart toilet) |
| Type | Patio |
| Oriëntering | Zuiden |
| Staat | Prachtig aangelegd |
| Energielabel | C |
| CV ketel | Nefit |
| Warmtebron | Gas |
| Bouwjaar | 2020 |
| Combiketel | Ja |
| Eigendom | Eigendom |
| Aantal parkeerplaatsen | 1 |
| Warm water | CV-ketel |
| Verwarmingssysteem | Centrale verwarming |
| Badkamervoorzieningen | Douche Toilet Wasmachineaansluiting Wastafel |
| Heeft airco | Ja |
| Heeft een balkon | Ja |
| Tuin aanwezig | Ja |
| Heeft schuur/berging | Ja |
| Heeft een schuifpui | Ja |
| Heeft zonwering | Ja |
| Ingeschreven bij de KvK | Ja |
| Jaarlijkse vergadering | Ja |
| Periodieke bijdrage | Ja |
| Reservefonds | Ja |
| Meer jaren onderhoudsplan | Ja |
| Onderhoudsverwachting | Ja |
| Opstal verzekering | Ja |
| Kadastrale aanduiding | Bunschoten K 3305 |
| Omvang | Appartementsrecht of complex |
| Indexnummer | A13 |
| Kadastrale aanduiding | Bunschoten K 3422 |
| Perceeloppervlakte | 7 m² |
| Kadastrale aanduiding | Bunschoten K 3164 |
| Omvang | Appartementsrecht of complex |
| Eigendomsituatie | Eigen grond |
| Indexnummer | A13 |