Beschrijving

Wie op zoek is naar een volwaardig huis voor een verrassend aantrekkelijke prijs, zit aan de Zuidwenk 26 helemaal goed. Deze woning combineert een leuke uitstraling met een compacte, maar complete opzet. Op de begane grond vormt de betonnen vloer met elektrische vloerverwarming een comfortabele basis, aangevuld met een nette keuken en een recent vernieuwd toilet. De fijne lichtinval zorgt ervoor dat de woning prettig en huiselijk aanvoelt, waardoor het hier al snel vertrouwd is.

Op de verdieping bevinden zich twee slaapkamers en de badkamer, wat zorgt voor een praktische en overzichtelijke indeling. Het huis heeft een solide basis en biedt ruimte om het verder naar eigen smaak in te richten. Met een slimme aanpak is dit een woning die je nog verder kunt verduurzamen en waar je echt iets moois van kunt maken.

De locatie maakt het plaatje compleet. Gelegen op loopafstand van het centrum van Spakenburg woon je hier centraal, met winkels, horeca en alle dagelijkse voorzieningen binnen handbereik. Een ideale kans voor wie slim wil kopen en graag dichtbij het hart van het dorp woont.

Indeling

Via de entree komt u binnen in de keuken, die praktisch is ingedeeld met een rechte opstelling. Vanuit de keuken is er toegang tot het toilet en een deur naar de woonkamer. In de woonkamer bevindt zich de trapopgang naar de eerste verdieping. De woonkamer is gelegen aan de voorzijde van de woning en beschikt over grote raampartijen, wat zorgt voor een prettige lichtinval en een ruimtelijk gevoel.

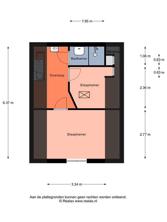
Eerste verdieping

De overloop biedt toegang tot twee slaapkamers, de badkamer en een berging. De grootste slaapkamer is gelegen aan de voorzijde en beschikt over een prettig formaat en goede lichtinval. De tweede slaapkamer is ideaal te gebruiken als kinder-, werk- of logeerkamer. De badkamer is praktisch ingericht en voorzien van een wastafel en douche.

Bijzonderheden

Energielabel uit 2016 aangevraagd o.b.v. bouwjaar.
Woning heeft dubbel glas, voorzetwanden en een betonnen vloer met vloerverwarming. energielasten G/W/L ca 100 euro per maand.

Kenmerken