Beschrijving

** english text below **
Ben je op zoek naar een woning die perfect past bij jouw levensstijl maar niet bang voor een leuke verbouwing? 

Zoek niet verder! Dit dubbele bovenhuis biedt het beste van twee werelden: de rust en ruimte van een comfortabel thuis en de levendigheid van de stad binnen handbereik.

Highlights van de woning:
•	Dubbel bovenhuis met 2 balkons: Geniet van de frisse lucht en het uitzicht vanaf je eigen balkon, zowel aan de voor- als achterzijde van de woning.
•	Moderniseringsslag nodig: Hier is jouw kans om je eigen stempel te drukken op deze unieke ruimte.
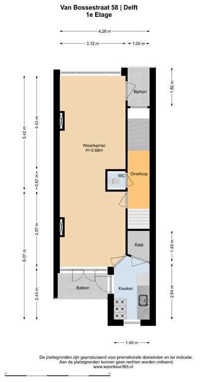
•	Ruime woonkamer met balkons: De woonkamer op de eerste verdieping biedt een gezellige plek om te ontspannen, compleet met een minibalkon aan de voorzijde en een groter balkon aan de achterzijde.
•	Keuken met veelal losse apparatuur: Ontdek de mogelijkheden van deze keuken, die klaar staat om getransformeerd te worden tot jouw droomkeuken.
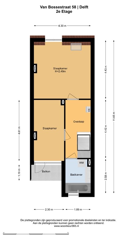
•	Apart toilet en ruime overloop: Praktisch en comfortabel wonen, met alle voorzieningen binnen handbereik.
•	Twee slaapkamers en ruime badkamer: Geniet van de ruimte en privacy die deze woning te bieden heeft, met twee comfortabele slaapkamers en een ruime badkamer die wacht op jouw persoonlijke touch.
•	Prachtige draagbalken in zicht: Voeg karakter toe aan de ruimte met de mooie draagbalken die zichtbaar zijn in de grote slaapkamer aan de voorzijde.
•	VVE bijdrage van slechts 100 euro per maand: Profiteer van de voordelen van een goed onderhouden gebouw, zonder dat het je veel kost.
•	Duurzaamheid: Met 12 zonnepanelen en een energielabel E, draag je bij aan een groenere toekomst.

Stel je voor: je wordt wakker met het zachte ochtendlicht dat door de openslaande deuren van je slaapkamer valt. Je begint je dag met een kop koffie op het balkon, terwijl je de geluiden van de stad om je heen hoort. In de avond ontspan je in de gezellige woonkamer, terwijl je geniet van het uitzicht op de levendige straten beneden. Deze woning biedt niet alleen een comfortabel thuis, maar ook een unieke kans om jouw eigen stempel te drukken op een karakteristieke ruimte in het hart van de stad.

Ben jij klaar om de volgende stap te zetten en jouw ideale thuis te vinden? Neem vandaag nog contact met ons op voor meer informatie of om een bezichtiging in te plannen. Deze kans mag je niet missen!
Maak van deze woning jouw thuis en ontdek de mogelijkheden die het te bieden heeft. Wacht niet langer en neem contact met ons op. Jouw droomwoning wacht op je!

** english text **

Are you looking for a home that perfectly suits your lifestyle but not afraid of a nice renovation? 

Search no further! This double upper house offers the best of both worlds: the peace and space of a comfortable home and the liveliness of the city within easy reach.

Highlights of the house:
• Double upper house with 2 balconies: Enjoy the fresh air and the view from your own balcony, both at the front and rear of the house.
• Modernization needed: Here is your chance to put your own stamp on this unique space.
• Spacious living room with balconies: The living room on the first floor offers a cozy place to relax, complete with a mini balcony at the front and a larger balcony at the rear.
• Kitchen with mostly separate equipment: Discover the possibilities of this kitchen, which is ready to be transformed into your dream kitchen.
• Separate toilet and spacious landing: Practical and comfortable living, with all amenities within easy reach.
• Two bedrooms and spacious bathroom: Enjoy the space and privacy this home has to offer, with two comfortable bedrooms and a spacious bathroom waiting for your personal touch.
• Beautiful beams in view: Add character to the room with the beautiful beams visible in the master bedroom at the front.
• VVE contribution of only 80 euros per month: Benefit from the benefits of a well-maintained building, without it costing you much.
• Sustainability: With 12 solar panels and an energy label E, you contribute to a greener future.

Imagine: you wake up to the soft morning light coming through the French doors of your bedroom. You start your day with a cup of coffee on the balcony, while hearing the sounds of the city around you. In the evening you can relax in the cozy living room, while enjoying the view of the lively streets below. This house not only offers a comfortable home, but also a unique opportunity to put your own stamp on a characteristic space in the heart of the city.

Are you ready to take the next step and find your ideal home? Contact us today for more information or to schedule a viewing. You shouldn't miss this opportunity!
Make this house your home and discover the possibilities it has to offer. Don't wait any longer and contact us. Your dream home is waiting for you!

Kenmerken