Beschrijving

WONEN AAN ZEE MET EEN VERRASSING IN DE TUIN
Stel je voor: wakker worden met het geluid van meeuwen, een frisse ochtendwandeling naar het strand, en thuiskomen in een unieke, dubbele woning vol karakter. In een van de leukste straten van Oud-Scheveningen vind je deze bijzondere combinatie van een royaal parterre appartement én een vrijstaande visserswoning in de tuin. Perfect voor creatieve levensgenieters, (thuis)werkers of starters die nét dat beetje extra zoeken.

DIT MAAKT DEZE WONING ZO BIJZONDER
•	 Unieke dubbele woning: parterre appartement + vrijstaande visserswoning
•	 Riante tuin met volop privacy — midden in Scheveningen!
•	 Toplocatie: op loopafstand van de Badhuisstraat, Keizerstraat, Westbroekpark én het strand
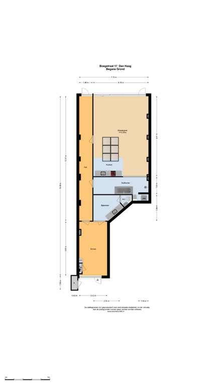
•	✨ Woonoppervlak van maar liefst  ca 168m² — ruimte genoeg voor wonen, werken en logees
•	 Sfeervolle extra woning met open haard, vide en volledig geïsoleerd
•	 3 slaapkamers, veel lichtinval en charmante indeling
•	 VvE aanwezig	

EEN WONING MET TWEE VERHALEN
Achter een charmante gevel in Oud-Scheveningen begint jouw volgende hoofdstuk. Je stapt binnen in een royale ruimte die nu dienstdoet als opslag, maar ooit een inspirerende werkruimte was — en dat kan het zó weer zijn. Een tweede werkruimte, uitgerust met pantry en toilet, biedt volop opties: van atelier tot praktijk aan huis. Via een gang bereik je de achterzijde van het huis waar het echte woongedeelte begint.
De badkamer is royaal opgezet, met een comfortabel ligbad, een aparte inloopdouche, aansluitingen voor de wasmachine en slimme bergruimte. Door de lichte wandconstructie voelt deze plek luchtig en fris aan. Vanuit hier kom je in de gigantische woonkeuken — een ruimte waar geleefd mag worden. Denk aan lange ontbijten onder de lichtstraat, koken met zicht op de tuin, en op warme dagen de tuindeuren open om het buitengevoel naar binnen te halen. De keuken is functioneel en praktisch, met oven, gaskookplaat en voldoende kastruimte.
En dan... de tuin. Wat een verrassing! Geen standaard stadstuintje, maar een groene oase met volledige privacy, een ruime berging én... een tweede huis. Jazeker, in de tuin staat een vrijstaande, volledig geïsoleerde visserswoning die zó uit een boekje lijkt te komen.
Beneden vind je een charmante woonkamer met open haard, ramen rondom en een knusse hoekkeuken met alles wat je nodig hebt — inclusief vaatwasser. Bovenop de vide ligt nu de slaapkamer, sfeervol en rustgevend, met een wastafel en ruimte voor een badkamer. Misschien een gastenverblijf? Kantoor? Of gewoon je eigen creatieve bubbel? Alles kan hier.

LEEF HET STRANDLEVEN — ÉCHT
De ligging is simpelweg top. Je wandelt zo naar de gezellige Keizerstraat voor je boodschappen, haalt een koffie op de hoek of duikt het zand op voor een spontane zonsondergang. Zin in groen? Het Westbroekpark ligt letterlijk om de hoek. Toch liever even de stad in? Je fietst in no-time naar het centrum van Den Haag. Dit is wonen in Scheveningen zoals het bedoeld is — levendig, ontspannen en met eindeloze mogelijkheden binnen handbereik.

VOEL, RUIK, HÓÓR DE ZEE — EN MAAK DIT JOUW THUIS
Hoor je de wind al door de tuin waaien? Voel je de zon al op je gezicht in die lichte woonkeuken? Zie je jezelf al met een glas wijn in de tuin, terwijl je vrienden logeren in het huisje achterin? Dít is zo'n woning waar je verliefd op wordt. Een plek die voelt als vakantie, maar dan elke dag. Dus waar wacht je nog op?
 Bel snel voor een bezichtiging en ontdek met eigen ogen hoe bijzonder wonen in Oud-Scheveningen kan zijn. Je volgende hoofdstuk begint hier.


De VVE is ingeschreven bij de KVK

 BIJZONDERHEDEN: 
- Bouwjaar 1934 
- Eigen grond  
- Beschermd Stadsgezicht Scheveningen- Dorp 
- Houten kozijnen met dubbel glas 
- CV combiketel 

*** english text ***

LIVING BY THE SEA WITH A SURPRISE IN THE GARDEN
Imagine: waking up to the sound of seagulls, a brisk morning walk to the beach, and coming home to a unique, double home full of character. In one of the nicest streets in Oud-Scheveningen you will find this special combination of a spacious ground floor apartment and a detached fisherman's house in the garden. Perfect for creative bon vivants, (home) workers or starters who are looking for that little bit extra.

THIS MAKES THIS HOME SO SPECIAL
•  Unique double home: ground floor apartment + detached fisherman's house
•  Spacious garden with plenty of privacy — in the middle of Scheveningen!

•  Prime location: within walking distance of Badhuisstraat, Keizerstraat, Westbroekpark and the beach
• ✨ Living area of ​​no less than approx. 168m² - plenty of space for living, working and guests
•  Charming extra home with fireplace, vide and fully insulated
•  3 bedrooms, lots of natural light and charming layout
•  VvE present

A HOME WITH TWO STORIES
Behind a charming facade in Oud-Scheveningen, your next chapter begins. You enter a spacious space that now serves as storage, but was once an inspiring workspace - and it can be again in no time. A second workspace, equipped with a pantry and toilet, offers plenty of options: from studio to home practice. Via a hallway you reach the rear of the house where the real living area begins.
The bathroom is spacious, with a comfortable bath, a separate walk-in shower, connections for the washing machine and smart storage space. The light wall construction makes this place feel airy and fresh. From here you enter the gigantic kitchen-diner — a space where you can live. Think of long breakfasts under the skylight, cooking with a view of the garden, and on warm days the garden doors open to bring the outdoor feeling inside. The kitchen is functional and practical, with an oven, gas hob and sufficient cupboard space.
And then... the garden. What a surprise! Not a standard city garden, but a green oasis with complete privacy, a spacious storage room and... a second home. Yes, in the garden there is a detached, fully insulated fisherman's house that seems to come straight out of a book.
Downstairs you will find a charming living room with a fireplace, windows all around and a cozy corner kitchen with everything you need — including a dishwasher. On top of the mezzanine is now the bedroom, cozy and relaxing, with a sink and space for a bathroom. Maybe a guest house? Office? Or just your own creative bubble? Everything is possible here.

LIVE THE BEACH LIFE — FOR REAL
The location is simply top. You can walk to the cozy Keizerstraat for your groceries, get a coffee on the corner or dive into the sand for a spontaneous sunset. Fancy some greenery? The Westbroekpark is literally around the corner. Would you rather go into the city? You can cycle to the center of The Hague in no time. This is living in Scheveningen as it was meant to be — lively, relaxed and with endless possibilities within reach.

FEEL, SMELL, HEAR THE SEA — AND MAKE THIS YOUR HOME
Can you hear the wind blowing through the garden? Can you feel the sun on your face in that bright kitchen? Can you see yourself with a glass of wine in the garden, while your friends are staying in the house at the back? This is the kind of home you fall in love with. A place that feels like a vacation, but every day. So what are you waiting for?
 Call quickly for a viewing and discover with your own eyes how special living in Oud-Scheveningen can be. Your next chapter starts here.

The VVE is registered with the KVK

DETAILS:
- Year of construction 1934
- Own land
- Protected cityscape Scheveningen-Dorp
- Wooden frames with double glazing
- CV combi boiler

Kenmerken