Beschrijving

SFEERVOL WONEN IN HET LAAKKWARTIER
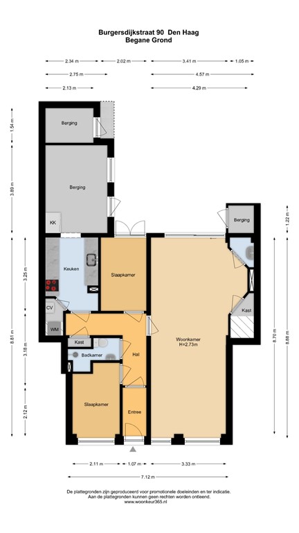
Zoek je een fijne plek waar stadse levendigheid en rust samenkomen? Dit charmante 3-kamer parterre-appartement (ca. 70 m²) met maar liefst twee tuinen ligt in een brede, rustige straat in het geliefde Laakkwartier. Ideaal voor starters of jonge gezinnen die comfortabel willen wonen met alles binnen handbereik: winkels, openbaar vervoer, scholen en het centrum van Den Haag op een steenworp afstand.

DE HIGHLIGHTS OP EEN RIJ
•	 Gelegen in een rustige, brede straat met bomen en beschermd stadsgezicht
•	 Twee tuinen: een ruime voortuin én een zonnige achtertuin met berging
•	✨ Ruime en lichte woonkamer met schuifpui naar de tuin
•	 Moderne keuken met inductie kookplaat, oven, magnetron, vaatwasser en koel-vriescombinatie
•	 Badkamer met inloopdouche, toilet en wastafel, strak betegeld
•	 Perfecte ligging nabij Station Holland Spoor, Haagse Hogeschool en Haagse binnenstad
•	 Fietsen naar parken en sportclubs in Rijswijk binnen enkele minuten

WONEN MET RUIMTE EN SFEER
Zodra je de brede voortuin inloopt en de originele voordeur opent, voel je meteen de huiselijke sfeer. De centrale hal geeft toegang tot alle vertrekken. De woonkamer is een heerlijke, lichte ruimte waar je dankzij de grote raampartijen voor én achter de hele dag zonlicht binnen ziet vallen. Aan de achterzijde nodigt de schuifpui je uit naar de ruime tuin – een groene oase midden in de stad waar je kunt barbecueën, relaxen of een kop koffie drinken in de ochtendzon.
De moderne en recente keuken is slim ingedeeld en praktisch ingericht. Denk aan een strakke inductie kookplaat, ingebouwde oven en magnetron, vaatwasser en een royale koel-vriescombinatie. Vanuit hier heb je toegang tot de uitbouw én de cv-installatie. De huidige bewoners gebruiken deze uitbouw als slaapkamer. Ideaal voor iedereen die houdt van koken zonder concessies te doen aan opbergruimte.
De woning beschikt over twee slaapkamers. De eerste, aan de achterzijde, heeft een vaste kast en openslaande deuren naar de tuin – heerlijk om ’s ochtends direct frisse lucht binnen te laten. De tweede slaapkamer ligt aan de voorzijde en kijkt uit over de rustige straat en de voortuin. Beide kamers voelen licht en uitnodigend aan. En natuurlijk de uitbouw bij de keuken, deze bergruimte is nu in gebruik als slaapkamer.
De badkamer is compact maar modern: wit betegeld, voorzien van een inloopdouche, toilet en wastafel. Alles bij de hand en netjes afgewerkt.
En dan die tuin! Of beter gezegd: tuinen. Zowel aan de voor- als achterzijde beschik je over veel buitenruimte. De voortuin geeft een welkom gevoel bij binnenkomst, terwijl de achtertuin – met ruime berging en buitenkraan – een ideale plek is voor ontspanning, speelruimte of je groene vingers.

CENTRAAL EN TOCH RUSTIG
De Burgersdijkstraat ligt in een stukje Laak dat rust en karakter uitstraalt. Boodschappen doe je zo op het Lorentzplein, Hildebrandtplein of bij de gezellige speciaalzaken van Oud Rijswijk. Met de tram of fiets sta je binnen no time in hartje Den Haag, en wie met de auto reist, bereikt eenvoudig de snelwegen richting Rotterdam, Amsterdam of Utrecht. Parkeren voor de deur? Geen probleem, met een bewonersvergunning (ca. € 97,- per jaar) is dat zo geregeld. Naast een eigen parkeervergunning  is het ook mogelijk om parkeeruren voor bezoekers ( € 36 per jaar)  te kopen. Hierdoor hoeven bezoekers geen parkeergeld te betalen als ze met de auto komen.

DIT IS JOUW KANS
Stel je voor: een zonnige ochtend in de voortuin met een kop koffie, een avondbarbecue in de achtertuin met vrienden, en tussendoor de stadse levendigheid van Den Haag binnen handbereik. Dit parterre-appartement combineert het beste van twee werelden: ruimte, rust en sfeer – mét de stad letterlijk om de hoek.
Benieuwd geworden? Plan snel een bezichtiging en ervaar zelf de charme van deze benedenwoning aan de Burgersdijkstraat 90. Wie weet is dit straks jouw nieuwe thuis.


Bijzonderheden: 
- Bouwjaar 1937 
- Woonoppervlakte ca 70 m2 
- Woning is gelegen op Eigen Grond 
- VvE maandbijdrage bedraagt € 125,00  p/m 
- Volledig dubbel glas
- Moderne groepenkast 
- Centrale verwarming en warm water middels eigen CV ketel 
- Parkeren kan voor de deur, een bewonersvergunning a EUR 97p/j is mogelijk 
- Zonnige achtertuin over de volle breedte van ca 9.60 meter 
- Oplevering in overleg
- Energielabel C

*** english text ***

ENCHANTING LIVING IN THE LAAKKWARTIER
Looking for a wonderful place where urban vibrancy and tranquility meet? This charming 3-room ground floor apartment (approx. 70 m²) with no fewer than two gardens is located on a wide, quiet street in the popular Laakkwartier district. Ideal for first-time buyers or young families who want comfortable living with everything within easy reach: shops, public transport, schools, and The Hague city center just a stone's throw away. THE HIGHLIGHTS AT A GLANCE
•  Located on a quiet, wide street with trees and a protected cityscape
•  Two gardens: a spacious front garden and a sunny back garden with a shed
• ✨ Spacious and bright living room with sliding doors to the garden
•  Modern kitchen with induction cooktop, oven, microwave, dishwasher, and fridge-freezer
•  Bathroom with walk-in shower, toilet, and sink, neatly tiled
•  Perfect location near Holland Spoor Station, The Hague University of Applied Sciences, and The Hague city center
•  Cycling to parks and sports clubs in Rijswijk within minutes

LIVING WITH SPACE AND ATMOSPHERE
As soon as you enter the wide front garden and open the original front door, you immediately feel the homely atmosphere. The central hall provides access to all rooms. The living room is a wonderfully bright space where, thanks to the large windows at the front and back, you can enjoy sunlight all day long. At the rear, sliding doors invite you into the spacious garden – a green oasis in the heart of the city where you can barbecue, relax, or enjoy a cup of coffee in the morning sun.
The modern, recently renovated kitchen is cleverly laid out and practically equipped. Think sleek induction cooktop, built-in oven and microwave, dishwasher, and a spacious fridge-freezer. From here, you have access to the extension and the central heating system. The current owners use this extension as a bedroom. Ideal for anyone who enjoys cooking without compromising on storage space.
The house has two bedrooms. The first, at the rear, has a built-in wardrobe and French doors leading to the garden – wonderful for letting in fresh air first thing in the morning. The second bedroom is at the front and overlooks the quiet street and the front garden. Both rooms feel bright and inviting. And of course, the kitchen extension, this storage space, is currently used as a bedroom.
The bathroom is compact yet modern: tiled in white, equipped with a walk-in shower, toilet, and sink. Everything is within easy reach and neatly finished. And then there's the garden! Or rather, gardens. Both the front and back offer ample outdoor space. The front garden provides a welcoming atmosphere upon entering, while the back garden—with a spacious storage shed and outdoor tap—is an ideal spot for relaxation, play, or cultivating your green thumb.

CENTRAL YET PEACEFUL
Burgersdijkstraat is located in a part of Laak that exudes tranquility and character. You can easily do your shopping at Lorentzplein, Hildebrandtplein, or the charming specialty shops of Oud Rijswijk. You can reach the heart of The Hague in no time by tram or bike, and those traveling by car can easily reach the highways to Rotterdam, Amsterdam, or Utrecht. Parking right outside? No problem! With a resident's permit (approx. €97 per year), it's easily arranged. In addition to your own parking permit, it's also possible to purchase parking hours for visitors (€36 per year). This means visitors don't have to pay parking fees if they come by car.

THIS IS YOUR CHANCE
Imagine: a sunny morning in the front garden with a cup of coffee, an evening barbecue in the back garden with friends, and in between, the vibrant city of The Hague at your fingertips. This ground floor apartment combines the best of both worlds: space, tranquility, and ambiance – with the city literally around the corner.
Curious? Schedule a viewing now and experience the charm of this ground floor apartment at Burgersdijkstraat 90 for yourself. Who knows, this could soon be your new home. Details:
- Built in 1937
- Living area approximately 70 m²
- Property is located on freehold land
- Homeowners' Association monthly fee is €125.00 per month
- Fully double-glazed
- Modern fuse box
- Central heating and hot water via a private central heating boiler
- Parking is available in front of the door; a resident's permit is available for €97 per year
- Sunny back garden spanning the entire width of approximately 9.60 meters
- Delivery upon agreement
- Energy label C

Kenmerken