Beschrijving

NIEUW IN DE VERKOOP!
De verkoop start met een LIVE VIDEO bezichtiging op dinsdag 25 november om 14.00 uur u kunt zich hiervoor aanmelden via de website. Daarnaast is het mogelijk om de woning op basis van INDIVIDUELE afspraken te bezichtigen. Reageer via de website of bel voor een afspraak! KOM DUS NIET NAAR DE WONING ZONDER AFSPRAAK!

STARTERS EN/OF SENIOEREN OPGELET! BETAALBAAR 2-KAMERAPPARTEMENT OP DE 1E ETAGE MET BALKON EN RUIME SLAAPKAMER – IDEAAL GELEGEN NABIJ OPENBAAR VERVOER EN UITVALSWEGEN.
Bent u op zoek naar een comfortabel 2-kamerappartement op een centrale locatie? Dan hoeft u niet verder te zoeken! Dit appartement is gunstig gelegen tussen het Zuiderpark en Park Overvoorde, op korte afstand van winkelcentrum In de Bogaard in Rijswijk én met snelle verbindingen naar de A4, A12 en A13. Openbaar vervoer is uitstekend geregeld: tram 16 (richting Wateringen en het Statenkwartier) en bus 51 (richting Rijswijk en Delft) stoppen voor de deur.

COMFORTABEL WONEN VOOR STARTERS ÉN SENIOREN
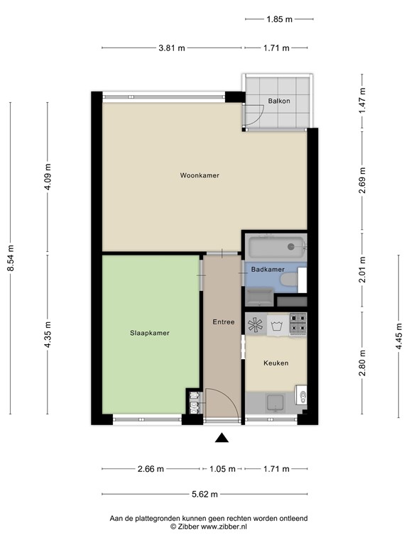
Dit appartement is niet alleen ideaal voor starters die hun eerste woning zoeken, maar ook zeer geschikt voor senioren die comfortabel en gelijkvloers willen wonen. De praktische indeling biedt een ruime slaapkamer, een lichte woonkamer en voldoende bergruimte doormiddel van een berging van 2,70m² die ook van buitenaf bereikbaar is.

Het appartement is volledig gelijkvloers en bereikbaar met enkele traptreden, wat het extra gebruiksvriendelijk maakt. Dankzij de centrale ligging bevinden winkels, openbaar vervoer en gezellige eetgelegenheden zich op loopafstand. Alles is binnen handbereik om hier prettig en zorgeloos te wonen. Kortom: een fijne, toegankelijke plek voor iedere levensfase.

NETTE BADKAMER EN PRAKTISCH INGEDEELDE KEUKEN
Dit appartement biedt een uitstekende basis om helemaal naar uw eigen smaak in te richten. De badkamer verkeert in keurige staat en is uitgerust met een ligbad met daarboven een moderne kolomdouche voorzien van jets en handdouche. Een heerlijke plek om te ontspannen na een lange dag. De ruime keuken biedt volop mogelijkheden voor een eigentijdse indeling, en op het balkon, gelegen op het noordwesten, geniet u van de middag- en avondzon.
Kortom: een prettig appartement met veel potentie én een verzorgde badkamer als extra pluspunt.

NEEM VANDAAG NOG CONTACT OP
Nieuwsgierig geworden? Maak dan vandaag nog een afspraak om dit fijne appartement aan het Erasmusplein te bezichtigen. Dit is een kans die u niet wilt missen!

Bijzonderheden:
•	Gebouwd in 1965;	
•	Erfpacht eeuwigdurend canon € 122,28,- per halfjaar achteraf excl. € 16,50 beheerkosten Grondwaarde € 7.411,00 en huidige geldende canonpercentage is 3,3%; 
•	Gebruiksoppervlakte woonruimte 46,2M2;
•	Energielabel F, geldig tot 06-11-2035; 
•   Afgesloten entree met bellentableau en intercom; 
•   Lift aanwezig;
•	Balkon op het noordwesten;
•	Volledig voorzien van kunststof kozijnen met dubbel glas; 
•	45L Boiler merk: Ariston, installatiedatum: 2022; 
•	Actieve VvE 1/65ste aandeel, bijdrage € 210,- per maand excl. ca. €33,- voorschot stookkosten, opgebouwde reserve per 31-12-2024 € 254.771,63;
•   Blokverwarming; 
•   Verbruik verwarming maandelijks inzichtelijk via Isla-app;
•   Centraal gelegen nabij diverse uitvalswegen;  
•  Overdag gratis parkeren in de straat, 18.00 tot 24.00 uur betaald parkeren;
•  Mogelijkheid om te parkeren op achtergelegen terrein in overleg met VvE (wachtlijst);
•  Op loopafstand van het openbaar vervoer; 
•  Afgesloten berging en gezamenlijke fietsenberging welke gemakkelijk te betreden aan de zijkant van het gebouw.

Verkoopcondities:
•	Biedingen verlopen via divamakelaars.nl/eerlijkbieden 
•	Deze woning is beschikbaar voor verkoop met een aantrekkelijke minimum biedprijs;
•	Oplevering in overleg; 
•	Notaris keuze aan koper mits gelegen in Den Haag;
•	Ongeacht het bouwjaar en de staat van onderhoud zal een ouderdomsclausule worden opgenomen.

KAN IK DIT BETALEN?
Als extra service maken wij graag GRATIS EN VRIJBLIJVEND een hypotheek berekening door een van onze samenwerkende onafhankelijk hypotheekadviseurs. Wij kennen geen lange wachttijden waardoor vaak nog dezelfde dag een afspraak ingepland kan worden. Uiteindelijk kunnen wij indien gewenst de gehele financieringsaanvraag verzorgen.  

Wij hebben deze informatie, zoals u van ons mag verwachten, met veel zorg samengesteld. Toch komt het in uitzonderlijke gevallen voor dat blijkt dat de informatie niet volledig is. Daarom aanvaarden wij, als verkopend makelaar, geen aansprakelijkheid voor de juistheid en/of volledigheid ervan. Wat betekent dat er geen rechten ontleend kunnen worden aan de vermelde gegevens. We verstrekken u deze informatie om u uit te nodigen voor het plannen van een bezichtiging en het doen van een bod onder voorbehoud en gunning.

Toelichtingsclausule branche brede meetinstructie
De meetinstructie is gebaseerd op de BBMI.  De Meetinstructie is bedoeld om meer eenduidige manier van meten toe te passen voor het geven van een indicatie van de gebruiksoppervlakte. De meetinstructie sluit verschillen in meetuitkomsten niet volledig uit, door bijvoorbeeld interpretatieverschillen, afrondingen of beperkingen bij het uitvoeren van de meting

Kenmerken