Beschrijving
NIEUW IN DE VERKOOP!
De verkoop start met een LIVE VIDEO bezichtiging op donderdag 16 oktober om 14.00 uur u kunt zich hiervoor aanmelden via de website. Daarnaast is het mogelijk om de woning op basis van INDIVIDUELE afspraken te bezichtigen. Reageer via de website of bel voor een afspraak! KOM DUS NIET NAAR DE WONING ZONDER AFSPRAAK!
RUIM DUBBEL BOVENHUIS (76,4m2) MET OPEN KEUKEN, TWEE SLAAPKAMERS EN EEN VLIERING MET VLOEROPPERVLAK VAN 15,8M2 – MOGELIJKHEID TOT EXTRA WOONLAAG!
Stap binnen in deze unieke woning met eindeloze mogelijkheden en creëer hier uw droomhuis! Met tweekamers, een woningbreed balkon en een gunstige ligging biedt deze bovenwoning alles wat u zoekt. Neem snel contact op en plan een bezichtiging!
EEN WONING VOL MOGELIJKHEDEN
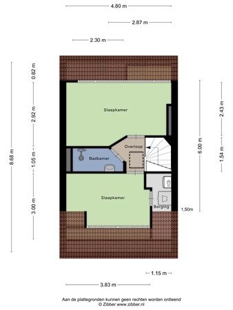
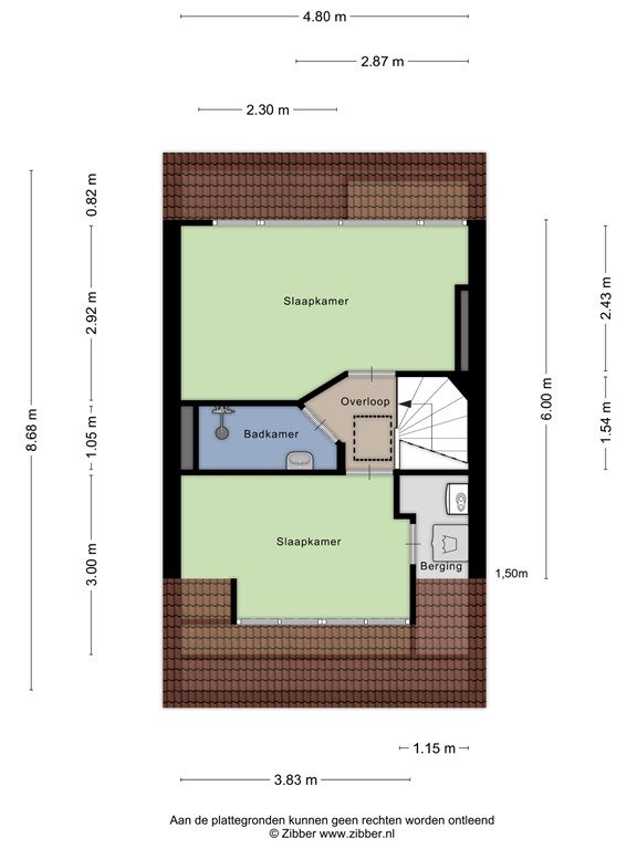
Deze dubbel bovenwoning biedt een ruime woonkamer die naadloos doorloopt naar het eetgedeelte. De open keuken is voorzien van diverse inbouwapparatuur en geeft toegang tot het woningbrede balkon, waar u heerlijk kunt genieten van de buitenruimte. Op de tweede woonlaag vindt u twee comfortabele slaapkamers en een praktisch ingerichte badkamer. Via het luik bereikt u de vliering welke een vloeroppervlak heeft van 15,8m². Ideaal om seizoensspullen netjes op te bergen. Met het plaatsen van een vaste trap en een dakkapel kunt u deze ruimte bovendien omtoveren tot bijvoorbeeld een extra slaapkamer of werkplek. Houd er rekening mee dat voor het realiseren van een dakkapel mogelijk een vergunning vereist is en dit altijd in overleg met de VvE dient te gebeuren.
RUSTIG WONEN IN LAAKKWARTIER
De woning is gelegen in het Laakkwartier, een wijk met karakter en een ideale mix van rust en levendigheid. Dankzij de centrale ligging zijn alle voorzieningen binnen handbereik. Op korte afstand vindt u diverse supermarkten, gezellige buurtwinkels en scholen. Voor ontspanning en recreatie kunt u terecht in het nabijgelegen Rijswijkse Bos. Daarnaast bent u binnen enkele minuten bij de Haagse Markt, het centrum van Den Haag en het sfeervolle oude centrum van Rijswijk.
De bereikbaarheid van deze locatie is uitstekend. Openbaar vervoer, zoals trams en bussen, is op loopafstand en brengt u in no-time naar het centrum van Den Haag, station Hollands Spoor of Den Haag Centraal. Met de auto zit u zo op de uitvalswegen richting Rotterdam, Utrecht of Amsterdam. Kortom: wonen in Laakkwartier betekent wonen in een wijk met alles wat u nodig heeft dichtbij!
PLAN UW BEZICHTIGING
Laat u inspireren door de mogelijkheden van deze woning. Neem vandaag nog contact met ons op voor een bezichtiging en ontdek hoe u deze woning naar uw wensen kunt transformeren!
Bijzonderheden:
• Gebouwd in 1934;
• Gelegen op eigen grond;
• Gebruiksoppervlakte woonruimte 76,4M2;
• Energielabel in aanvraag;
• Balkon van 4,10m2 gelegen op het noordoosten;
• Vliering met vloeroppervlak van 15,8m2;
• Volledig voorzien van kunststof kozijnen met dubbelglas;
• Cv-ketel merk: Remeha, installatiedatum 2022;
• Actieve VvE 1/3e aandeel, bijdrage € 50,- per maand, reserve per 30-09-2025 € 7857,41;
• Parkeren: Maandag tot en met zondag van 18.00 tot 24.00 uur betaald parkeren;
• Gelegen op loopafstand van het openbaar vervoer;
• Op fietsafstand van het centrum van Den Haag;
Verkoopcondities:
• Biedingen verlopen via divamakelaars.nl/eerlijkbieden
• Deze woning is beschikbaar voor verkoop met een aantrekkelijke minimum biedprijs;
• Oplevering in overleg;
• Notaris keuze aan koper mits gelegen in Den Haag;
• Ongeacht het bouwjaar en de staat van onderhoud zal een ouderdomsclausule worden opgenomen.
Enthousiast over deze woning, maar uw eigen woning nog niet verkocht? Neem contact op met ons kantoor voor een gratis waardebepaling. Wij plannen dan direct een afspraak met de makelaar en heeft u op korte termijn beter inzicht in uw mogelijkheden.
KAN IK DIT BETALEN?
Als extra service maken wij graag GRATIS EN VRIJBLIJVEND een hypotheek berekening door een van onze samenwerkende onafhankelijk hypotheekadviseurs. Wij kennen geen lange wachttijden waardoor vaak nog dezelfde dag een afspraak ingepland kan worden. Uiteindelijk kunnen wij indien gewenst de gehele financieringsaanvraag verzorgen.
Wij hebben deze informatie, zoals u van ons mag verwachten, met veel zorg samengesteld. Toch komt het in uitzonderlijke gevallen voor dat blijkt dat de informatie niet volledig is. Daarom aanvaarden wij, als verkopend makelaar, geen aansprakelijkheid voor de juistheid en/of volledigheid ervan. Wat betekent dat er geen rechten ontleend kunnen worden aan de vermelde gegevens. We verstrekken u deze informatie om u uit te nodigen voor het plannen van een bezichtiging en het doen van een bod onder voorbehoud en gunning.
Toelichtingsclausule meetinstructie
De Meetinstructie is gebaseerd op de BBMI. De Meetinstructie is bedoeld om meer eenduidige manier van meten toe te passen voor het geven van een indicatie van de gebruiksoppervlakte. De meetinstructie sluit verschillen in meetuitkomsten niet volledig uit, door bijvoorbeeld interpretatieverschillen, afrondingen of beperkingen bij het uitvoeren van de meting
Plattegronden
177613174_1580836_johan_begane_grond_first_design_20251003_301d86.jpg
177613174_1580836_johan_eerste_verdiepi_first_design_20251003_9dd42b.jpg
177613174_1580836_johan_tweede_verdiepi_first_design_20251003_5a6c5e.jpg
177613174_1580836_johan_zolder_first_design_20251003_e7b6a5.jpg