Beschrijving

Moderne en instapklare tussenwoning (2010) met energielabel A+ en diepe tuin op het noordwesten
Bent u op zoek naar een energiezuinige, moderne en instapklare woning met een ruime tuin? Dan is deze prachtige tussenwoning uit 2010 precies wat u zoekt! De woning is volledig onderhouden, in 2022 voorzien van een nieuwe keuken en badkamer, en compleet opnieuw geverfd. Met drie slaapkamers (waarvan één met een walk-in closet), een diepe tuin van 12 meter op het noordwesten en een energielabel A+ biedt deze woning alles wat u nodig heeft.

Indeling

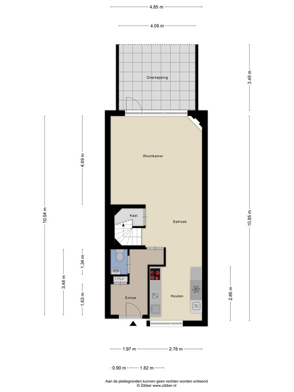
Bij binnenkomst stapt u in de ruime hal met toegang tot het toilet, de trapopgang en de woonkamer.
De woonkamer voelt direct licht en ruim aan, mede dankzij de grote raampartijen en de convectorputten in plaats van radiatoren – hierdoor heeft u geen verwarmingselementen die in de weg staan en geniet u van een strak geheel. De stijlvolle pvc-vloer in visgraatmotief maakt het plaatje compleet.
Aan de voorzijde bevindt zich de moderne open keuken, die in 2022 volledig is vernieuwd en voorzien van alle denkbare inbouwapparatuur. Dankzij de praktische indeling is er voldoende ruimte voor een gezellige eethoek. Vanuit de woonkamer heeft u toegang tot de diepe achtertuin.

Eerste verdieping

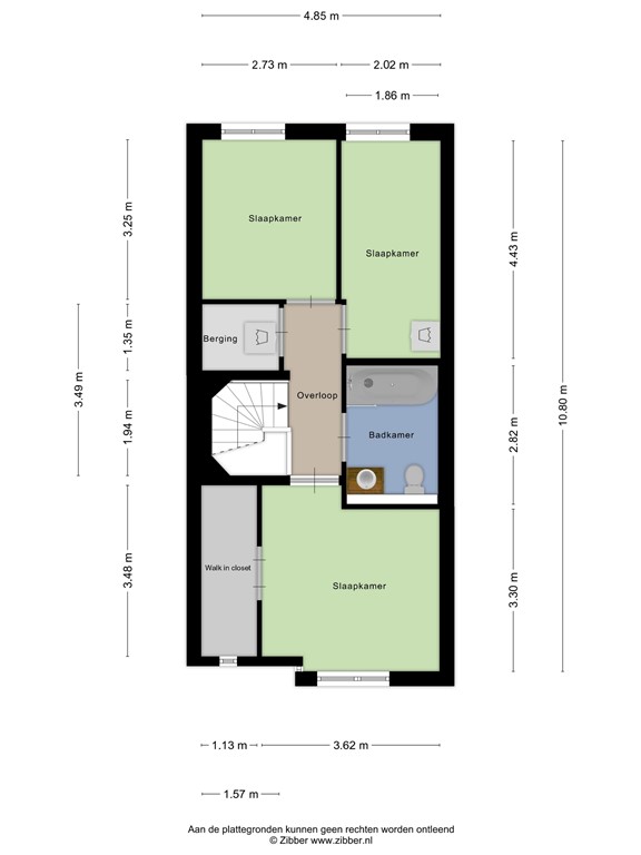
Op de eerste verdieping bevinden zich drie slaapkamers. De grootste slaapkamer is uitgerust met een walk-in closet, ideaal voor extra luxe en bergruimte. De overige slaapkamers zijn goed in te delen als slaap-, werk- of hobbykamer.
De badkamer is in 2022 geheel vernieuwd en beschikt over een ligbad, douche, modern wastafelmeubel en toilet. Deze verdieping is afgewerkt met een nette laminaatvloer.

Tuin

De woning beschikt over een diepe achtertuin van ca. 12 meter lang, met een fraaie overkapping van ca. 12 m². De tuin ligt op het noordwesten, waardoor u heerlijk kunt genieten van de middag- en avondzon. Een ideale plek om te ontspannen, te barbecueën of gezellig met vrienden en familie samen te zijn. De tuin is onderhoudsvriendelijk ingericht en biedt volop ruimte voor speel- en zitgelegenheden.

In de achtertuin bevindt zich een vrijstaande berging van ca. 6 m², perfect voor fietsen, tuingereedschap en extra opslag.

Bijzonderheden

Bouwjaar 2010
Woonoppervlakte ca. 103 m²
Perceeloppervlakte ca. 139 m²
Eeuwig durende erfpacht
Energielabel A+
Keuken vernieuwd in 2022
Badkamer vernieuwd in 2022
Gehele woning geverfd in 2022
Convectorputten (geen radiatoren die in de weg staan)
Moderne keuken met alle inbouwapparatuur
3 slaapkamers, waarvan 1 met walk-in closet
Diepe achtertuin van ca. 12 meter lang met overkapping (ca. 12 m²), gelegen op het noordwesten (middag- en avondzon)
Vrijstaande berging (ca. 6 m²)
Goede isolatie en lage stookkosten
Instapklare en moderne afwerking

Kenmerken