Beschrijving

HAAST GEBODEN!
Afgelopen week is de verkoop gestart met een live video bezichtiging die u nu op de website van DIVA Makelaars kunt terugkijken. De agenda voor individuele bezichtigingen is helaas vol, maar mocht u met enthousiasme de video en alle informatie hebben bekeken dan is het mogelijk om op basis van deze informatie een bod uit te brengen. Mocht de woning u worden gegund dan nodigen wij u uiteraard alsnog uit voor een individuele bezichtiging. 

Biedingen verlopen via divamakelaars.nl/eerlijkbieden en dienen uiterlijk woensdag 15 oktober om 12.00 uur door de makelaar te zijn ontvangen.

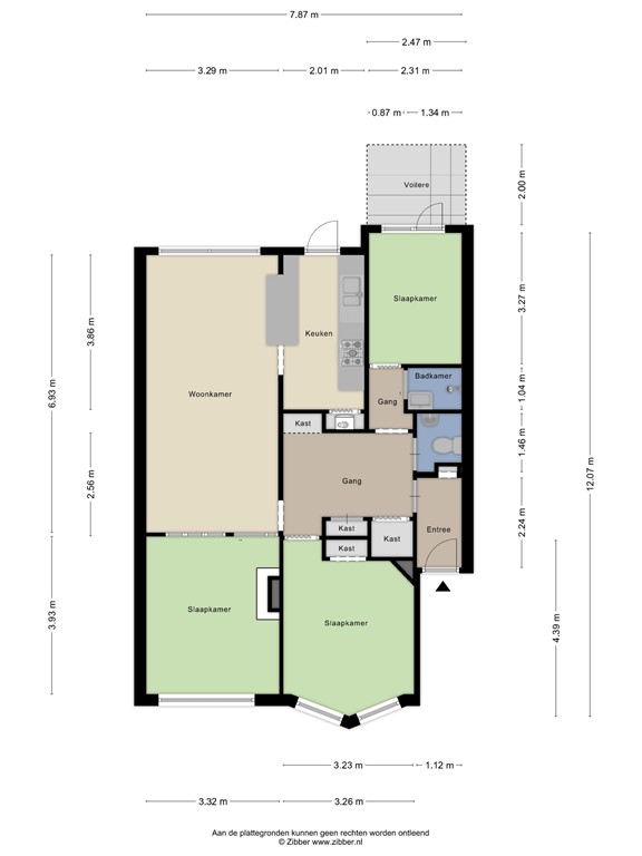
KLUSSERS OPGELET! UNIEKE BENEDENWONING (84,5 M2) MET DRIE SLAAPKAMERS EN RIANTE ACHTERTIUN VAN MAAR LIEFST CA. 107M2 GELEGEN OP HET WESTEN IN DE GELIEFDE HEESTERBUURT.
Bent u op zoek naar een woning met ruimte én mogelijkheden? Dan is deze benedenwoning echt uniek in zijn soort en biedt hij u de kans om er helemaal uw eigen thuis van te maken. 

UNIEKE BENEDENWONING - VOLOP POTENTIE
De woning beschikt over drie ruime slaapkamers, ideaal voor bijvoorbeeld een gezin, een thuiskantoor of een logeerkamer. De royale woon-eetkamer staat in directe verbinding met de open keuken, waardoor er een fijne en lichte leefruimte ontstaat.

Hoewel de woning modernisering vraagt, ligt hier juist de kracht: u kunt alles volledig naar uw smaak en woonwensen inrichten. Daarmee is dit een geweldige kans om een benedenwoning met veel ruimte en potentie te transformeren tot uw droomhuis.

ACHTERTUIN OP HET WESTEN
U beschikt hier over een riante achtertuin, gunstig gelegen op het westen. In de zomermaanden geniet u gedurende de dag steeds meer van de zon, terwijl de aanwezige bomen ook voor voldoende schaduw zorgen. Met een beetje liefde tovert u deze tuin in no-time om tot een groene oase van rust, waar u heerlijk kunt ontspannen. Bovendien is dit de ideale plek om lange zomeravonden door te brengen en gezellig met vrienden en familie te barbecueën.

HEERLIJK WONEN IN DE HEESTERBUURT 
In de sfeervolle Heesterbuurt woont u rustig, maar toch dicht bij alles wat Den Haag zo aantrekkelijk maakt. De wijk grenst direct aan het populaire Valkenboskwartier en biedt gezellige winkelstraten, leuke cafés en restaurants, allemaal op loopafstand. In deze tijd van het jaar zorgen de bloesembomen in de straat voor een prachtig en bijna sprookjesachtig straatbeeld. Dankzij de uitstekende openbaarvervoerverbindingen bent u snel in het stadscentrum of op het centraal station van Den Haag. En met de fiets staat u binnen 15 minuten op het strand van Kijkduin.

Neem vandaag nog contact met ons op om een bezichtiging te plannen en uw reis naar het verwezenlijken van uw droomwoning te beginnen.

Bijzonderheden:
•	Gebouwd in 1923;
•	Erfpacht eeuwigdurend, canon en beheerkosten eeuwigdurend afgekocht;
•	Gebruiksoppervlakte woonruimte  84,5M2;
•	Energielabel E, geldig tot 25-09-2035;
•	Zonnige en riante achtertuin gelegen op het westen van ca. 107m2; 
•   Drie slaapkamers; 
•	Deels voorzien van kunststof kozijnen met dubbelglas en deels houten kozijnen met dubbelglas; 
•	Elektra: 5 groepen + 1 aardlekschakelaar; 
•	Cv-ketel merk: Junkers; 
•	Actieve VvE 1/6e  aandeel, bijdrage €140,- per maand, opgebouwde reserve per €2.246,94;
•	Betaald parkeren van 18.00 tot 24.00 uur. Bewoners- en bezoekersvergunning mogelijk; 
•	Gunstig gelegen t.o.v. openbaar vervoer, diverse winkels, strand en duinen.

Verkoopcondities:
•	Biedingen verlopen via divamakelaars.nl/eerlijkbieden 
•	Deze woning is beschikbaar voor verkoop met een aantrekkelijke minimum biedprijs;
•	Oplevering korte termijn mogelijk;
•	Notaris keuze aan koper mits gelegen in Den Haag;
•	Ongeacht het bouwjaar en de staat van onderhoud zal een ouderdomsclausule worden opgenomen.

Enthousiast over deze woning, maar uw eigen woning nog niet verkocht? Neem contact op met ons kantoor voor een gratis waardebepaling. Wij plannen dan direct een afspraak met de makelaar en heeft u op korte termijn beter inzicht in uw mogelijkheden.

KAN IK DIT BETALEN?
Als extra service maken wij graag GRATIS EN VRIJBLIJVEND een hypotheek berekening door een van onze samenwerkende onafhankelijk hypotheekadviseurs. Wij kennen geen lange wachttijden waardoor vaak nog dezelfde dag een afspraak ingepland kan worden. Uiteindelijk kunnen wij indien gewenst de gehele financieringsaanvraag verzorgen.  

Wij hebben deze informatie, zoals u van ons mag verwachten, met veel zorg samengesteld. Toch komt het in uitzonderlijke gevallen voor dat blijkt dat de informatie niet volledig is. Daarom aanvaarden wij, als verkopend makelaar, geen aansprakelijkheid voor de juistheid en/of volledigheid ervan. Wat betekent dat er geen rechten ontleend kunnen worden aan de vermelde gegevens. We verstrekken u deze informatie om u uit te nodigen voor het plannen van een bezichtiging en het doen van een bod onder voorbehoud en gunning.

Toelichtingsclausule meetinstructie 
De Meetinstructie is gebaseerd op de BBMI. De Meetinstructie is bedoeld om meer eenduidige manier van meten toe te passen voor het geven van een indicatie van de gebruiksoppervlakte. De meetinstructie sluit verschillen in meetuitkomsten niet volledig uit, door bijvoorbeeld interpretatieverschillen, afrondingen of beperkingen bij het uitvoeren van de meting

Kenmerken