Beschrijving
NIEUW IN DE VERKOOP!
De verkoop start met een LIVE VIDEO bezichtiging op dinsdag 4 november om 14.00 uur u kunt zich hiervoor aanmelden via de website. Daarnaast is het mogelijk om de woning op basis van INDIVIDUELE afspraken te bezichtigen. Reageer via de website of bel voor een afspraak! KOM DUS NIET NAAR DE WONING ZONDER AFSPRAAK!
SFEERVOLLE BENEDENWONING MET 3 SLAAPKAMERS, ROYALE TUIN EN BERGING GELEGEN AAN DE SOESTDIJKSEKADE
Ben jij op zoek naar een fijn thuis met karakter, waar je je eigen stempel op kunt drukken? Plan dan snel een bezichtiging, want dit is een kans die je niet wilt missen!
KENMERKEN
* Benedenwoning met drie slaapkamers
* Ruime tuin met grote berging
* Gelegen aan de karakteristieke Soestdijksekade
* Achterslaapkamer met rolluik voorzijde volledig voorzien van screens
* Centraal gelegen nabij winkels, scholen en openbaar vervoer
* Woning met potentie – een kans om er echt jouw thuis van te maken
CENTRAAL GELEGEN NABIJ WINKELS EN OPENBAAR VERVOER
In de gezellige wijk Rustenburg-Oostbroek, aan de sfeervolle Soestdijksekade, tref je deze benedenwoning met drie slaapkamers, een ruime tuin en een grote berging. De ligging is ideaal: op korte afstand van winkels, scholen, openbaar vervoer en uitvalswegen. De levendige kade met haar kenmerkende woonarken en het kabbelende water geven de omgeving een karakteristieke en rustige uitstraling.
EEN WONING MET POTENTIE
De woning biedt een solide basis met volop mogelijkheden om er een heerlijk thuis van te maken. Met wat liefde en aandacht kan dit appartement uitgroeien tot een woning die volledig aansluit bij jouw woonwensen. Dankzij de drie slaapkamers is er voldoende ruimte voor een gezin, thuiswerkplek of logeerkamer — ook starters vinden hier een perfecte balans tussen ruimte en betaalbaarheid.
COMFORT EN PRAKTISCHE RUIMTE
Aan de achterzijde bevindt zich een slaapkamer met rolluik, ideaal voor wie graag rustig en donker slaapt. De voorzijde is voorzien van donkerkleurige screens, wat zorgt voor extra privacy en een aangenaam binnenklimaat. De ruime tuin is een groot pluspunt: een fijne plek om te ontspannen, met bovendien een grote berging die zich uitstekend leent als opbergruimte of werkplaats.
Ben jij klaar om van deze benedenwoning jouw eigen plek te maken? Neem vandaag nog contact met ons op voor een bezichtiging!
Bijzonderheden:
• Gebouwd in.1927;
• Erfpacht eeuwigdurend afgekocht;
• Gebruiksoppervlakte woonruimte ca 76m2;
• Energielabel E, geldig tot 10-10-2035 -Energielabel C bij vervangen CV-ketel met HR-107 ketel;
• Royale achtertuin op het oosten;
• Ruime berging 11,2 m2;
• Kunststof kozijnen met dubbel glas, gedeeltelijk HR++
• Elektra: ALS + 6 groepen;
• Cv-ketel merk Bosch, installatiedatum 2009;
• Actieve VvE 1/3e aandeel, bijdrage € 100,- per maand, opgebouwde reserve € 6.865,07 dd 31-12-2024;
• Parkeren gratis tot 18.00 uur, daarna middels bewoners- en bezoekerspas via Gemeente Den Haag;
• Centrale ligging t.o.v. openbaar vervoer, winkels, scholen.
Verkoopcondities:
• Biedingen verlopen via divamakelaars.nl/eerlijkbieden
• Deze woning is beschikbaar voor verkoop met een aantrekkelijke minimum biedprijs;
• Oplevering in overleg;
• Notaris keuze aan koper mits gelegen in Den Haag;
• Ongeacht het bouwjaar en de staat van onderhoud zal een ouderdomsclausule worden opgenomen.
KAN IK DIT BETALEN?
Als extra service maken wij graag GRATIS EN VRIJBLIJVEND een hypotheek berekening door een van onze samenwerkende onafhankelijk hypotheekadviseurs. Wij kennen geen lange wachttijden waardoor vaak nog dezelfde dag een afspraak ingepland kan worden. Uiteindelijk kunnen wij indien gewenst de gehele financieringsaanvraag verzorgen.
Wij hebben deze informatie, zoals u van ons mag verwachten, met veel zorg samengesteld. Toch komt het in uitzonderlijke gevallen voor dat blijkt dat de informatie niet volledig is. Daarom aanvaarden wij, als verkopend makelaar, geen aansprakelijkheid voor de juistheid en/of volledigheid ervan. Wat betekent dat er geen rechten ontleend kunnen worden aan de vermelde gegevens. We verstrekken u deze informatie om u uit te nodigen voor het plannen van een bezichtiging en het doen van een bod onder voorbehoud en gunning.
Toelichtingsclausule meetinstructie
De Meetinstructie is gebaseerd op de BBMI. De Meetinstructie is bedoeld om meer eenduidige manier van meten toe te passen voor het geven van een indicatie van de gebruiksoppervlakte. De meetinstructie sluit verschillen in meetuitkomsten niet volledig uit, door bijvoorbeeld interpretatieverschillen, afrondingen of beperkingen bij het uitvoeren van de meting
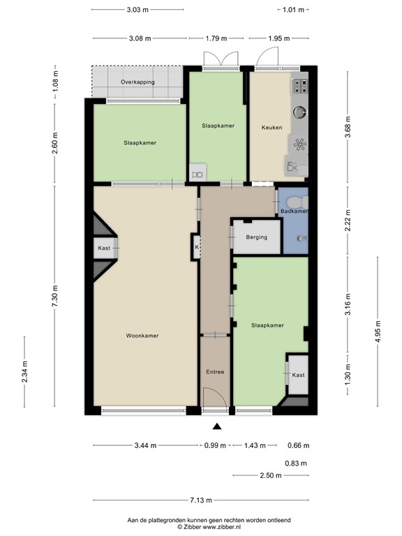
Plattegronden
178393948_1583758_soest_appartement_tui_first_design_20251027_32de79.jpg
178393948_1583758_soest_appartement_first_design_20251027_9e0e13.jpg
178393948_1583758_soest_berging_first_design_20251023_cd0e95.jpg
178393948-289928425-se-141730060-1761200833107.png