Beschrijving

Ben je die starter die droomt van een instapklaar appartement op een fijne plek in de stad? Dan is dit een unieke kans! Dit recent gerenoveerde topappartement op de tweede verdieping is een heerlijke plek om te wonen, met drie slaapkamers, een actieve VvE en alle stedelijke voorzieningen dichtbij.
DE HOOGTEPUNTEN VAN JOUW NIEUWE THUIS
•	RECENT GERENOVEERD: Verzorgd en eigentijds afgewerkt; je kunt er zo in.
•	TOPAPPARTEMENT: Geen bovenburen en een vrij wijds uitzicht.
•	ENERGIELABEL E: HR++ raamkozijnen aan de voorzijde en dubbel glas aan de achterzijde.
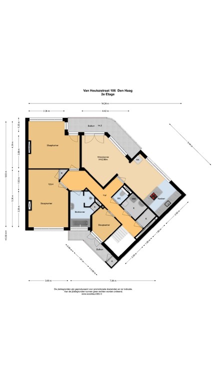
•	3 SLAAPKAMERS: Ruimte voor slapen, werken of logeren.
•	ACTIEVE EN HECHTE VvE: Goed georganiseerd en betrokken.
•	TWEE BALKONS: Geniet van zon op verschillende momenten van de dag en de skyline van Den Haag.
•	HOOGWAARDIGE EIKENHOUTEN VLOER: Door de gehele woning.
Je komt binnen via je eigen entree op de eerste verdieping en merkt direct dat dit een appartement is dat met aandacht en zorg is bewoond. De trap brengt je naar de tweede woonlaag, waar een lichte overloop toegang geeft tot de verschillende ruimtes.
De keuken is strak en praktisch ingericht, voorzien van een stenen werkblad en moderne inbouwapparatuur. Een fijne, lichte ruimte die uitnodigt om te koken en prettig in verbinding staat met de woonkamer.
De sfeer is hier direct goed, met een mix van modern comfort en karakteristieke details zoals charmante sierschouwen en glas-in-loodramen. De woonkamer zelf is een heerlijke, lichte doorzonruimte met grote ramen die zorgen voor een prettige lichtinval en een vrij, uitgestrekt uitzicht over de skyline van Den Haag en Voorburg. 
Aan het einde van de dag is het hier extra genieten wanneer de zon ondergaat boven de stad. De hoogwaardige eikenhouten vloer, die je door het hele appartement vindt, geeft de ruimte een warme en rijke uitstraling.
Vanuit de woonkamer stap je zo het ruime balkon op het zuidwesten op: een fijne plek om na een werkdag nog even te genieten van de laatste zonnestralen en het vrije uitzicht over de buurt. Daarnaast is er een tweede, kleiner balkon, ideaal voor een rustige ochtendkoffie. 
De hoofdslaapkamer is rustig gelegen en biedt voldoende ruimte voor een groot bed en kastruimte. De twee overige kamers zijn flexibel in te richten als werk-, logeer- of hobbykamer. De badkamer is modern en fris, met een ruime inloopdouche waar de dagelijkse stress zo van je afspoelt en een heerlijk ligbad voor de zondagse ontspanning.
De Vereniging van Eigenaren is actief en financieel gezond. De maandelijkse bijdrage bedraagt € 175,76 en is bedoeld voor onderhoud, verzekering en reservering voor de toekomst.
PARKEREN: ALTIJD EEN PLEK VOOR JE AUTO 
Vergeet parkeerstress. In de Van Heutszstraat en de directe omgeving parkeer je eenvoudig met een bewonersvergunning. De kosten hiervoor zijn in Den Haag zeer aantrekkelijk: voor je eerste auto betaal je slechts € 97,05 per jaar. Zo staat je auto altijd veilig en dichtbij, zonder dat je de hoofdprijs betaalt aan de parkeermeter.
DE STAD AAN JE VOETEN, DE SNELWEG OM DE HOEK 
De ligging is wat we bij FASTGOED een 'triple-A locatie' noemen. Je woont in het gewilde Bezuidenhout, wat betekent dat je het beste van twee werelden hebt:
•	DE STAD: Binnen 10 minuten fietsen sta je midden op het Plein of de Grote Markt. De Theresiastraat, met al haar hippe lunchrooms en speciaalzaken, ligt letterlijk op loopafstand voor je dagelijkse verswaren.
•	DE SNELWEG: Moet je de stad uit voor werk? Binnen 3 tot 5 minuten rijd je op de A12 of A4. Of je nu naar Rotterdam, Amsterdam of Utrecht moet; je bent de file in de stad altijd een stap voor.
•	OV-HUB: Ook zonder auto ben je 'fast'. Station Laan van NOI en Den Haag Centraal zijn om de hoek, waardoor je binnen no-time overal in Nederland bent.
LAAT DEZE KANS NIET KOUD WORDEN!
Ben je klaar om te schakelen? Een appartement met deze vierkante meters, drie slaapkamers, een groot balkon op het zuidwesten en een instapklaar afwerkingsniveau voor deze prijs is zeldzaam. Bij FASTGOED Makelaars houden we niet van afwachten, maar van aanpakken.
MAIL ONS DIREKT VOOR EEN BEZICHTIGING. 
Want je weet het: wie het eerst komt, wie het eerst maalt. We zien je graag aan de Van Heutszstraat 106!

Kenmerken