Beschrijving

NIEUW IN DE VERKOOP!
De verkoop start met een LIVE VIDEO bezichtiging op woensdag 7 januari om 14.00 uur u kunt zich hiervoor aanmelden via de website. Daarnaast is het mogelijk om de woning op basis van INDIVIDUELE afspraken te bezichtigen. Reageer via de website of bel voor een afspraak! KOM DUS NIET NAAR DE WONING ZONDER AFSPRAAK!

STARTERS EN/OF STELLEN OPGELET! 3-KAMER APPARTEMENT OP DE 1E ETAGE MET TWEE SLAAPKAMERS, BALKON OP HET NOORDOOSTEN EN SEPARATE FIETSENBERGING, GELEGEN IN RUSTIGE STRAAT NABIJ WINKELS EN OPENBAAR VERVOER. 
Dit 3-kamer appartement op de 1ste etage biedt volop mogelijkheden om helemaal naar eigen smaak in te richten! Ideaal voor jonge stellen en starters, die op zoek zijn naar een fijne plek om thuis te komen.

IDEAAL VOOR STARTERS/ STELLEN
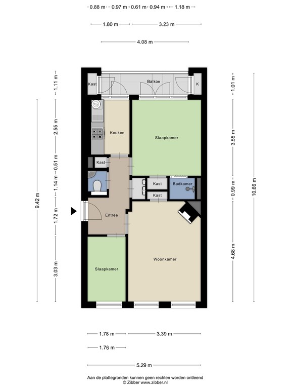
Dit appartement beschikt over twee slaapkamers. De ruime achterslaapkamer heeft openslaande deuren naar het balkon en is daardoor prettig licht. De kamer biedt voldoende ruimte voor een tweepersoonsbed en een kledingkast. Aangrenzend bevindt zich de douche en daarnaast is er een vaste kast aanwezig voor extra bergruimte.

De keuken is praktisch ingericht en beschikt over voldoende opbergruimte en diverse apparatuur. Daarnaast is er in de keuken ruimte om een wasmachine te plaatsen. 

WELKOM IN DE WIJK LEYENBURG 
Dit fijne appartement is gelegen in de wijk Leyenburg, bekend om zijn groene omgeving, goede voorzieningen en uitstekende bereikbaarheid. Voor uw dagelijkse boodschappen kunt u terecht bij de vele winkels aan het Monnickendamplein, die op slechts enkele minuten afstand liggen. Met uitstekende verbindingen naar het openbaar vervoer en de nabijheid van belangrijke uitvalswegen is Leyenburg bovendien zeer centraal gelegen.

PLANNEN VOOR DE TOEKOMST
Bent u op zoek naar een fijn appartement met twee slaapkamers met een centrale ligging? Dan wilt u dit appartement zeker bezichtigen! Maak een afspraak voor een bezichtiging en de makelaar leidt u met veel plezier rond. Natuurlijk kunt u ook meer informatie aanvragen via ons kantoor.

Bijzonderheden:
•	Gebouwd in 1952;
•	Gelegen op eigen grond;
•	Gebruiksoppervlakte woonruimte 48,90 M2;
•	Energielabel F, geldig tot 18-12-2035;
•	Balkon van 4,50 m2 gelegen op het noordoosten met twee balkonkasten;  
•	Berging toegankelijk via de nieuwediepstraat van 3,20m2;
•	Voorzijde voorzien van kunststof kozijnen met dubbelglas, achterzijde houten kozijnen met enkelglas; 
•	Elektra: 3 groepen + 1 aardlekschakelaar; 
•	Huurboiler Eneco, € 18,97 per maand, Merk: Inventum Aquasafe; 
•	Actieve VvE 109/732ste aandeel, bijdrage € 95,68 per maand, opgebouwde reserve per 17-12-2025  € 29.026,58; 
•  Betaald parkeren: Maandag tot en met zondag van 18.00 tot 24.00 uur. Bewonersvergunning mogelijk;
•  Gelegen op loopafstand van diverse scholen, sportverenigingen en de vele winkels aan het Monnickendamplein;
•  Goed bereikbaar via het openbaar vervoer en de uitvalswegen.

Verkoopcondities:
•	Biedingen verlopen via divamakelaars.nl/eerlijkbieden 
•	Deze woning is beschikbaar voor verkoop met een aantrekkelijke minimum biedprijs;
•	Oplevering korte termijn mogelijk;
•	Notaris keuze aan koper mits gelegen in Den Haag;
•	Ongeacht het bouwjaar en de staat van onderhoud zal een ouderdomsclausule worden opgenomen.

Enthousiast over deze woning, maar uw eigen woning nog niet verkocht? Neem contact op met ons kantoor voor een gratis waardebepaling. Wij plannen dan direct een afspraak met de makelaar en heeft u op korte termijn beter inzicht in uw mogelijkheden.

KAN IK DIT BETALEN?
Als extra service maken wij graag GRATIS EN VRIJBLIJVEND een hypotheek berekening door een van onze samenwerkende onafhankelijk hypotheekadviseurs. Wij kennen geen lange wachttijden waardoor vaak nog dezelfde dag een afspraak ingepland kan worden. Uiteindelijk kunnen wij indien gewenst de gehele financieringsaanvraag verzorgen.  

Wij hebben deze informatie, zoals u van ons mag verwachten, met veel zorg samengesteld. Toch komt het in uitzonderlijke gevallen voor dat blijkt dat de informatie niet volledig is. Daarom aanvaarden wij, als verkopend makelaar, geen aansprakelijkheid voor de juistheid en/of volledigheid ervan. Wat betekent dat er geen rechten ontleend kunnen worden aan de vermelde gegevens. We verstrekken u deze informatie om u uit te nodigen voor het plannen van een bezichtiging en het doen van een bod onder voorbehoud en gunning.

Toelichtingsclausule meetinstructie 
De Meetinstructie is gebaseerd op de BBMI. De Meetinstructie is bedoeld om meer eenduidige manier van meten toe te passen voor het geven van een indicatie van de gebruiksoppervlakte. De meetinstructie sluit verschillen in meetuitkomsten niet volledig uit, door bijvoorbeeld interpretatieverschillen, afrondingen of beperkingen bij het uitvoeren van de meting

Kenmerken