| Prijs | € 112.500,- k.k. |
| Type object | Woonhuis, stacaravan, vrijstaande woning |
| Recreatie object | |
| Perceeloppervlakte | 245 m² |
| Woonoppervlakte | 40 m² |
| Aanvaarding | In overleg |
| Status | Nieuw in verkoop |
Vrijstaand, verzorgd en licht chalet (eigen grond) gelegen op Landgoed ’t Wildryck, direct grenzend aan het Nationaal Park Drents-Friese Wold. Een fijne uitvalsbasis voor wie wil ontspannen in het groen en waar u nog kunt genieten van rust & ruimte te midden van de prachtige natuur. Omschrijving Op een rustige en groene locatie op Landgoed ’t Wildryck bevindt zich deze verzorgde recreatiewoning aan de Groningerweg 13-275, met tegelijkertijd een comfortabele en praktische indeling. Het chalet beschikt over een ruim en licht woongedeelte, waar de raampartijen zorgen voor het prettige lichtinval en een open sfeer. Hierdoor voelt het geheel direct aangenaam en uitnodigend aan. Het woongedeelte biedt voldoende ruimte voor een gezellige zit- en eethoek, ideaal om te ontspannen of samen te komen. Aan de zij- en voorgevel ligt een tuin, waar u kunt genieten van het buitenleven. Of het nu gaat om een zonnige ochtend, een ontspannen middag of een lange zomeravond – hier vindt u altijd een fijne plek om te zitten. Daarnaast is er een vrijstaand schuurtje/berging aanwezig, uitgevoerd in dezelfde stijl als de recreatiewoning. Praktisch voor het opbergen van fietsen, tuingereedschap of andere spullen en ook passend in het geheel. Omgeving De recreatiewoning is gelegen op het geliefde Landgoed ’t Wildryck, een kleinschalig en groen park waar rust en natuur centraal staan. Vanuit het park wandelt of fietst u zó de natuur in van het Nationaal Park Drents-Friese Wold, één van de grootste aaneengesloten natuurgebieden van Nederland. Hier vindt u uitgestrekte bossen, zandverstuivingen en talloze wandel- en fietsroutes. Ook de sfeervolle brinkdorpen Diever en Dwingeloo liggen in de nabijheid, met diverse voorzieningen, gezellige horeca en is Diever onder andere bekend om het SHAKESPEARE openluchttheater. Een ideale combinatie van natuur, rust en voorzieningen binnen handbereik. Bijzonderheden: • Ruim en licht vrijstaand chalet op EIGEN grond; • 2 slaapkamers; • Vrijstaand schuurtje in dezelfde stijl; • Gelegen op het Landgoed ’t Wildryck; • Direct grenzend aan het Drents-Friese Wold; • Ideaal voor recreatief gebruik; Benieuwd naar de sfeer en mogelijkheden van deze recreatiewoning? Neem gerust contact met ons op voor het plannen van een bezichtiging.
| Referentienummer | 05594 |
| Vraagprijs | € 112.500,- k.k. |
| Inrichting | Ja |
| Inrichting | Gemeubileerd |
| Status | Nieuw in verkoop |
| Aanvaarding | In overleg |
| Type object | Woonhuis, stacaravan, vrijstaande woning |
| Soort bouw | Bestaande bouw |
| Bouwperiode | 1997 |
| Dakbedekking | Metaal |
| Type dak | Zadeldak |
| Isolatievormen | Dakisolatie Dubbel glas HR-glas Muurisolatie Spouwmuren Volledig geïsoleerd |
| Perceeloppervlakte | 245 m² |
| Woonoppervlakte | 40 m² |
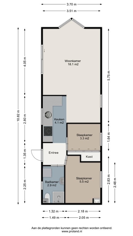
| Woonkameroppervlakte | 18,1 m² |
| Keukenoppervlakte | 4,1 m² |
| Inhoud | 83 m³ |
| Oppervlakte externe bergruimte | 6,56 m² |
| Aantal bouwlagen | 1 |
| Aantal kamers | 3 (waarvan 2 slaapkamers) |
| Aantal badkamers | 1 |
| Ligging | Aan park Aan rustige weg Buiten bebouwde kom Dichtbij openbaar vervoer In bosrijke omgeving |
| Type | Zijtuin |
| Hoofdtuin | Ja |
| Oriëntering | Zuidoost |
| Staat | Normaal |
| CV ketel | Intergas Kombi Kompakt HRE 28-24A |
| Warmtebron | Gas |
| Bouwjaar | 2021 |
| Combiketel | Ja |
| Eigendom | Eigendom |
| Aantal parkeerplaatsen | 1 |
| Warm water | CV-ketel |
| Verwarmingssysteem | Centrale verwarming |
| Ventilatie methode | Natuurlijke ventilatie |
| Badkamervoorzieningen | Douche Toilet Wasmachineaansluiting Wastafel |
| Tuin aanwezig | Ja |
| Heeft schuur/berging | Ja |
| Kadastrale aanduiding | Diever B 3998 |
| Perceeloppervlakte | 245 m² |
| Omvang | Geheel perceel |
| Eigendomsituatie | Eigen grond |