Beschrijving
Vanwege de grote belangstelling voor dit huis, kunnen we geen bezichtigingen meer plannen. Als je wilt, kunnen we jouw gegevens op de reservelijst zetten zodat we je kunnen bellen als een plekje vrijkomt. Stuur ons dan een berichtje via de website.
Op een mooie plek in Dinteloord, in een ruim opgezette en kindvriendelijke wijk, staat deze goed onderhouden 2-onder-1 kapwoning. Direct voor de deur is een speelveld — ideaal voor jonge kinderen — en de rustige, groene omgeving maakt dit een fijne plek om thuis te komen.
Het huis is aan de achterkant uitgebouwd en biedt verrassend veel leefruimte, met onder andere een royale leefkeuken, een gezellige tuin en maar liefst vijf slaapkamers. Het is bovendien goed geïsoleerd en uitgerust met 17 zonnepanelen, wat bijdraagt aan het energielabel A — klaar voor de toekomst!
Kortom: een instapklaar huis met ruimte, comfort en sfeer, op een mooie plek in Dinteloord.
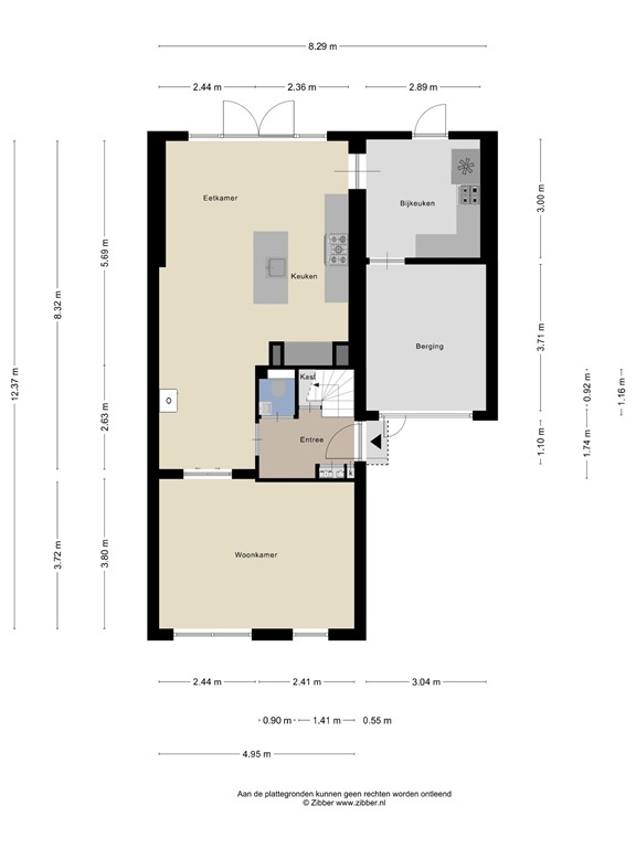
Indeling
Bij binnenkomst valt direct op hoe goed de ruimte in dit huis wordt benut. De hal is voorzien van een praktische bergkast, meterkast en trapopgang naar de eerste verdieping.
De toiletruimte is modern uitgevoerd met een zwevend toilet en een fonteintje.
De woonkamer is heerlijk licht, met een sfeervolle zithoek aan de voorkant van het huis. Deze ruimte is afsluitbaar met stijlvolle industriële schuifdeuren, waardoor je gemakkelijk een knusse of open sfeer creëert. Centraal in de woonkamer staat een gezellige houtkachel die de hele begane grond kan verwarmen. Voor extra comfort is er in de zithoek ook een airco-unit aanwezig die zowel kan koelen als verwarmen — ideaal voor elk seizoen.
Aan de achterzijde is het huis uitgebouwd, wat heeft geresulteerd in een royale en open leefkeuken. De keuken is slim ingedeeld met aan de ene zijde een wandopstelling met een 5-pits gasfornuis en afzuigkap, aan de andere zijde een spoeleiland voorzien van een heetwaterkraan, ingebouwde vaatwasser en extra kastruimte. Daarnaast is er nog een ingebouwde kastenwand met koelkast en extra bergruimte — alles is tot in de puntjes afgewerkt.
De eetkamer sluit direct aan op de achtertuin via dubbele tuindeuren, waardoor je binnen en buiten moeiteloos met elkaar verbindt.
De voormalige garage is opgedeeld in een handige bijkeuken en een ruime berging. De bijkeuken is voorzien van een keukenblok in hoekopstelling met spoelbak en afzuigkap en biedt ruimte voor bijvoorbeeld een extra koelkast of vriezer. De berging is groot genoeg voor meerdere fietsen of zelfs een motor.
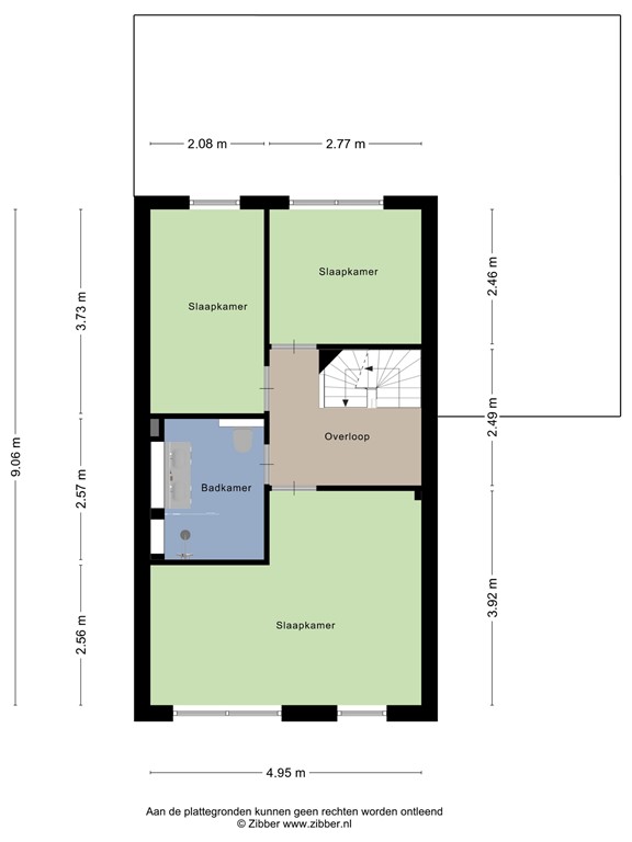
Eerste verdieping
De eerste verdieping is ingedeeld met een overloop, drie slaapkamers en een nette badkamer. Alle slaapkamers én de overloop zijn voorzien van een frisse, lichte laminaatvloer die zorgt voor een moderne en rustige uitstraling.
De grootste slaapkamer — met royale afmetingen van ca. 3,90m x 4,95m — is ideaal als masterbedroom en biedt voldoende ruimte voor een groot bed, kledingkast en eventueel een werk- of zithoek.
Slaapkamer twee (ca. 2,45 x 2,80 meter) is compact maar praktisch ingedeeld en uitstekend te gebruiken als kinderkamer, werkkamer of hobbyruimte.
Slaapkamer drie (ca. 3,75 x 2,10 meter) is eveneens veelzijdig en licht en leent zich goed als extra slaapkamer of thuiskantoor.
De badkamer is volledig betegeld en modern ingericht met een inloopdouche, een wastafelmeubel en een tweede toilet.
Op de overloop is een airco-unit die zorgt voor een aangenaam binnenklimaat, ideaal tijdens warme zomerdagen.
Tweede verdieping
Ook de tweede verdieping is een schoolvoorbeeld van efficiënt indelen. Via de voorzolder — waar zich de aansluitingen voor wasmachine en droger bevinden — is er toegang tot twee extra kamers. Ook is hier de cv-ketel opgesteld (Intergas, bouwjaar 2022 /geplaatst in 2023). De gehele verdieping is, net als de andere etages, afgewerkt met een licht laminaat dat zorgt voor een frisse en uniforme uitstraling.
De eerste kamer op deze verdieping (ca. 3,05m x 2,90 m) is een fijne slaap- of werkkamer met voldoende daglicht. Vanuit deze ruimte is er toegang tot een tweede kamer van ca. (3,05m x 2,15m). Deze kamer kan uitstekend dienst doen als extra slaapkamer, maar is ook ideaal te gebruiken als werkkamer, inloopkast of hobbyruimte.
Tuin
Vakantiegevoel in je eigen achtertuin! Deze heerlijk sfeervolle tuin is met zorg en gevoel voor sfeer aangelegd en biedt het hele jaar door een fijne plek om te ontspannen. De combinatie van sierbestrating en veel groen zorgt voor een mooie balans tussen onderhoudsvriendelijkheid en natuurlijke uitstraling.
Verspreid over de tuin vind je meerdere zitjes en gezellige hoekjes, met als centraal punt een robuuste stamtafel — dé plek voor lange zomeravonden met familie en vrienden. Een overkapping met bladerdak van druiven en hedera biedt verkoelende schaduw en een bijna mediterraan gevoel. Strategisch geplaatste boompjes zorgen niet alleen voor sfeer, maar ook voor extra schaduw op warme dagen.
Een hoge, op maat gemaakte kast doet dienst als houtopslag en biedt tegelijkertijd privacy. Achter in de tuin staat een tuinhuis, ingericht met knusse zithoek. Een fijne plek waar kinderen zich kunnen terugtrekken of waar je zelf even tot rust kunt komen met een goed boek of een glas wijn.
Plattegronden
175079203_1564231_de_vl_begane_grond_first_design_20250722_1acdc2.jpg
175079203_1564231_de_vl_eerste_verdiepi_first_design_20250722_d98e5e.jpg
175079203_1564231_de_vl_tweede_verdiepi_untitled_20250722_de1a18.jpg
175079203_1564231_de_vl_tuinhuis_first_design_20250722_653199.jpg