Beschrijving
In het centrum van Dinteloord, met een schilderachtig kreek voor de deur, staat dit prachtige halfvrijstaande huis.
Het huis is ingedeeld met op de begane grond onder andere een lichte, ruime woonkamer en een gezellige leefkeuken die samen het hart van het huis vormen.
Op de bovenverdieping zijn onder andere een moderne, complete badkamer en drie slaapkamers.
Hier ervaar je de perfecte balans tussen comfort, ruimte en de voordelen van wonen in het centrum, met alles binnen handbereik.
Achter het huis is een heerlijk grote tuin met een ruime schuur, die je natuurlijk voor heel veel verschillende doeleinden kunt gebruiken: wordt dit de plek om een auto te stallen of ga je het gebruiken voor een bedrijf aan huis of als hobbyruimte? We zijn benieuwd!
Indeling
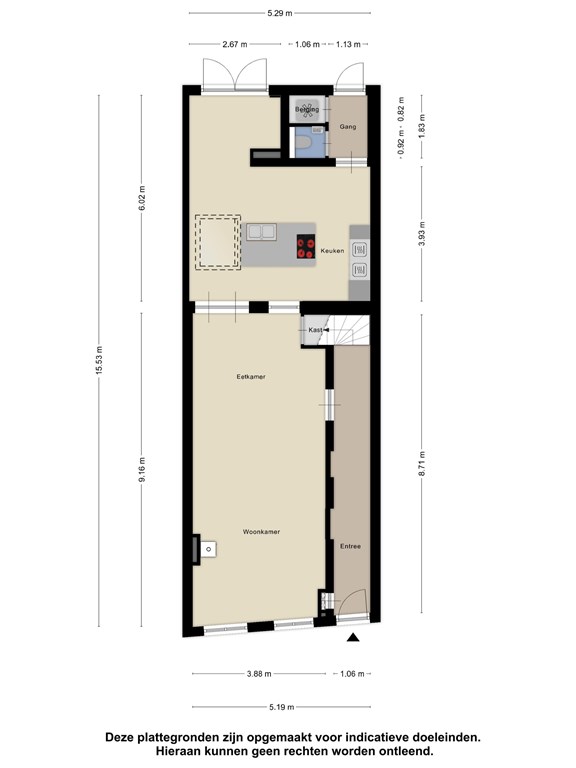
Meteen bij binnenkomst zie en voel je de authentieke sfeer van het huis. Je wordt verwelkomd in een lange hal, voorzien van een karakteristieke tegelvloer, lambrisering en een hoog plafond met sierlijsten.
Aan het einde van de hal is de trapopgang naar de eerste verdieping, maar eerst nemen we je mee naar de woonkamer. Deze is aan de voorkant van het huis en biedt ruimte voor een gezellige zithoek voorzien van een houtkachel, perfect voor de koudere maanden.
Grenzend aan de woonkamer - aan de achterkant van het huis - is de moderne leefkeuken. Het middelpunt van deze keuken is het kookeiland, uitgerust met een inductiekookplaat en Bora downdraft afzuiging, wat zowel praktisch als stijlvol is. De keuken is verder uitgerust met een warmwaterkraan, vaatwasser, spoelbak en voldoende kastruimte voor al je kookbenodigdheden. In een wandopstelling is een combi-oven, een oven, warmhoudlade en een koelkast.
De toiletruimte op de begane grond is ingericht met een hangend toilet en een fonteintje en is afgewerkt met marmerlook wanden, die de ruimte een luxe uitstraling geven.
Eerste verdieping
De eerste verdieping begint met een ruime en lichte overloop die veel mogelijkheden biedt. De huidige eigenaar heeft er een grote (kleding)kast geplaatst, maar je kunt hier natuurlijk ook gemakkelijk een fijne werkruimte creëren, afhankelijk van je wensen.
De badkamer is een ware oase van rust, voorzien van een heerlijk vrijstaand bad, een ruime inloopdouche, dubbele wastafel en een toilet.
De afwerking is een mooie combinatie van deels betegelde en deels gestucte wanden.
Verder zijn op deze verdieping twee slaapkamers.
De masterbedroom - gelegen aan de voorkant van het huis - is een ruime en lichte kamer met een praktische inloopkast: ideaal voor het opbergen van heel veel kleding en schoenen.
De tweede slaapkamer is aan de achterkant van het huis en groot genoeg om in te richten met bijvoorbeeld bed, bureau en kledingkast.
Beide slaapkamers zijn voorzien van airconditioning.
Tweede verdieping
De tweede verdieping is ingedeeld met een voorzolder en een zolderkamer.
De voorzolder is voor de praktische dingen: aansluitpunt voor de wasmachine, de omvormer van de zonnepanelen en de opstelplaats voor de CV ketel (Remeha Avanta 2010).
Daarnaast een leuke zolderkamer voor ieder die graag een fijne eigen plek wil.
Tuin
De tuin van dit huis biedt echt voor ieder wat wils: gelegen op het oosten en ingedeeld met terrassen, gazon, sierborders en een moestuin.
Halverwege de tuin is een overkapping met een buitenkeukenblok: perfect voor het organiseren van gezellige barbecues of het bereiden van de lekkerste gerechten..
De ingrediënten zou je natuurlijk zo uit eigen tuin kunnen halen! Door de diepte van de tuin, kan je heel de dag de zon of juist de schaduw opzoeken.
De tuin wordt compleet gemaakt door een praktische schuur / garage achterin, die extra opbergruimte biedt of gebruikt kan worden als bedrijfs- of hobbyruimte.
Achter de garage is een kleine binnenplaats en een poort die toegang geeft tot de achtergelegen straat. Deze garage is ook voorzien van een grote bergzolder.
Plattegronden
169220437_1535022_oostv_begane_grond_first_design_20250219_e8158b.jpg
169220437_1535022_oostv_eerste_verdiepi_first_design_20250219_17ac5e.jpg
169220437_1535022_oostv_tweede_verdiepi_first_design_20250219_201609.jpg
169220437_1535022_oostv_garage_first_design_20250219_f2c1bd.jpg
169220437_1535022_oostv_zolder_first_design_20250219_036e5b.jpg
169220437_1535022_oostv_overkapping_first_design_20250219_79d435.jpg
169220437_1535022_oostv_begane_grond_tu_first_design_20250219_32fbaf.jpg