Beschrijving
Relatief jonge tussenwoning gelegen op populaire locatie te Duiven.
De woning bestaat uit 3 volwaardige woonlagen en is voorzien van een gunstig energielabel A.
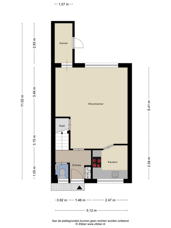
De begane grond is voorzien van een aanbouw / hal of bijkeuken.
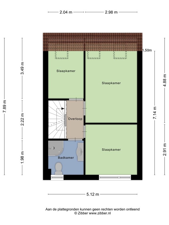
De verdieping telt 3 fijne slaapkamers en een complete badkamer
De tweede verdieping is multi functioneel, uiteraard kan er een slaapkamer worden gerealiseerd.
Voor de indeling verwijs ik het best naar de bijgaande plattegronden.
De dichte keuken kan eenvoudig worden aangepast naar een open variant.
Algemeen:
Ruime tussenwoning uit bouwjaar 1992
Gunstige ligging nabij centrum, openbaar vervoer en andere voorzienignen.
3 volwaardige woonlagen
Veel berruimte op de 2e verdieping
Warm water en verwarming middels stadsverwarming
Zonnige achtertuin met stalen berging
Er is een praktische achterom beschikbaar
De woning is eenvoudig afgewerkt
Verkoper heeft de woning nooit zelf bewoond
Plattegronden
176984551_1579654_mars_begane_grond_first_design_20250917_03cce1.jpg
176984551_1579654_mars_berging_first_design_20250917_14d35a.jpg
176984551_1579654_mars_eerste_verdiepi_first_design_20250917_708c4a.jpg
176984551_1579654_mars_tweede_verdiepi_first_design_20250917_a9d960.jpg