Beschrijving
Hoekwoning met garage, carport en grote dakkapel
*** Let op: Vraagprijs is een richtprijs! ***
Inleiding
Ben je op zoek naar een betaalbare koopwoning waar je nog helemaal je eigen draai aan kunt geven? Dan is deze hoekwoning aan de Nasakonstraat 24 in Emmeloord zeker het bekijken waard. De woning beschikt over een ruime woonkamer, serre, vier slaapkamers en een zolderverdieping met een grote dakkapel over de volledige diepte van het huis. Een ideale basis voor starters en handige klussers die graag hun eigen woonideeën realiseren.
Emmeloord
Emmeloord is het centrale hart van de Noordoostpolder en beschikt over een uitgebreid aanbod aan winkels, horeca, scholen en sportfaciliteiten. Ook voor ontspanning zit je hier goed: binnen enkele minuten fiets je naar het Emmelerbos of ontdek je de natuur in de omgeving, zoals bij het bijzondere werelderfgoed Schokland, natuurpark Netl of recreatiegebied Wellerwaard.
De plaats ligt bovendien gunstig ten opzichte van de A6 en N50. Steden als Amsterdam, Utrecht, Leeuwarden en Groningen zijn binnen ongeveer een uur met de auto bereikbaar. Zwolle, Kampen en Lelystad liggen op circa een half uur rijden en Almere op ongeveer 45 minuten. In het centrum van Emmeloord bevindt zich daarnaast een busstation met verbindingen in alle richtingen.
De woning
Dankzij de hoekligging en de grote raampartijen is de woonkamer opvallend licht. Aan de achterzijde bevindt zich de open keuken. Vanuit de keuken loop je door naar de serre met schuifpui. Dit is een fijne extra leefruimte, waar binnen en buiten mooi in elkaar overlopen en waar je veel lichtinval ervaart.
Op de eerste verdieping bevinden zich drie slaapkamers en een badkamer. De badkamer is gedateerd en biedt de mogelijkheid om deze geheel naar eigen smaak te vernieuwen.
Via een vaste trap bereik je de tweede verdieping. Hier bevindt zich de zolderruimte met een grote dakkapel over de volledige diepte van de woning, geplaatst in 2021. Deze ruimte biedt volop mogelijkheden voor bijvoorbeeld een extra slaapkamer, werkruimte of hobbykamer.
Buitenruimtes
De voortuin ligt op het noordoosten, terwijl de achtertuin gunstig is gelegen op het zuidwesten. Dankzij deze ligging kun je hier tot in de avond van de zon genieten. In de achtertuin staat een garage die via de achterom bereikbaar is en ideaal is voor opslag, hobbyruimte of het stallen van fietsen en gereedschap.
Daarnaast beschikt de woning over een carport in de zijtuin, wat zorgt voor een overdekte parkeerplaats op eigen terrein.
Aan de overkant van de woning is een speeltuin. Deze is zichtbaar vanuit de woning. Achter de speeltuin bevindt zich ook een voetbalveldje.
Indeling
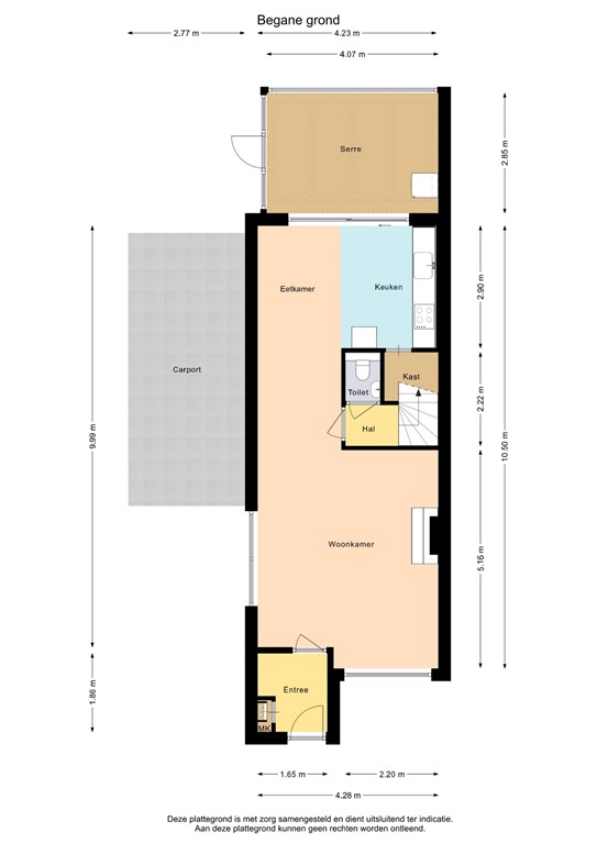
Begane grond
- Entree met meterkast
- L-vormige woonkamer
- Open keuken met eethoek, voorzien van inductiekookplaat, oven, vaatwasser en provisiekast
- Serre met schuifpui naar de tuin
- Hal met toilet en trapopgang
Eerste verdieping
- Overloop met trap naar tweede verdieping
- Slaapkamer aan de achterzijde (grootste kamer)
- Badkamer met douche, toilet, wastafel en aansluitingen voor een bad
- Twee slaapkamers aan de voorzijde, waarvan één met balkon op het noordoosten
Tweede verdieping
- Zolderruimte met grote dakkapel (voorzien van rolluiken)
- Cv-installatie (Vaillant 2021) en mechanische ventilatie-unit
- Mogelijkheid tot het realiseren van een extra slaapkamer
Pluspunten / kenmerken van de woning
- Hoekwoning met extra privacy
- Achtertuin op het zuidwesten
- Garage en achterom
- Carport op eigen terrein
- Grote dakkapel over de volledige diepte van de woning (2021)
- Kunststof kozijnen
- Cv-installatie Vaillant uit 2021
- Dak- en muurisolatie aanwezig
- Vier slaapkamers mogelijk
- Veel potentie voor modernisering naar eigen smaak
- Energielabel D
De woning wordt verkocht in de huidige staat. In de koopovereenkomst zal een as-is-where-is clausule worden opgenomen.
Zie jij de mogelijkheden van deze woning en ben je niet bang om de handen uit de mouwen te steken? Dan kan Nasakonstraat 24 zomaar jouw nieuwe thuis worden. Benieuwd naar de mogelijkheden? Neem contact met ons op voor een bezichtiging – we laten je deze woning graag persoonlijk zien.
Plattegronden
Nasakonstraat 24 Emmeloord 1.jpg
Nasakonstraat 24 Emmeloord 1 3D.jpg
Nasakonstraat 24 Emmeloord 2.jpg
Nasakonstraat 24 Emmeloord 2 3D.jpg
Nasakonstraat 24 Emmeloord 3.jpg
Nasakonstraat 24 Emmeloord 3 3D.jpg
Nasakonstraat 24 Emmeloord 4.jpg
Nasakonstraat 24 Emmeloord 4 3D.jpg