Beschrijving

Zeer ruime tussenwoning met garage en royale achtertuin in een fijne woonomgeving

Aan de Kwikstaartstraat in Eygelshoven staat deze bijzonder ruime tussenwoning met garage, een woning die in alle opzichten verrast. Niet alleen door de royale indeling en de moderne voorzieningen, maar vooral door de uitzonderlijk grote achtertuin die u hier vindt. Waar men doorgaans bij een tussenwoning een beperkte buitenruimte verwacht, biedt dit huis een tuin die doet denken aan een park: groen, verzorgd, privacyvol en vooral enorm ruim. Het geheel maakt deze woning tot een ideale plek voor gezinnen die veel ruimte zoeken, maar ook voor iedereen die houdt van comfort, energiezuinig wonen en een fijne, rustige omgeving. 

De woning beschikt over een energielabel C en is voorzien van maar liefst tien zonnepanelen en drie airco’s (2023) die zowel koelen als verwarmen. Verder zijn er grotendeels kunststof en deels hardhouten kozijnen aanwezig, allemaal met HR++ glas, en zorgen rolluiken voor extra comfort. Binnen treft u op de begane grond een lichte woonkamer met veel daglicht, een praktische bijkeuken en een ruime leefkeuken in de uitbouw met plek voor een grote eettafel en een mooi uitzicht over de tuin. De eerste verdieping telt drie slaapkamers en een moderne badkamer, terwijl de zolder met
enkele aanpassingen kan worden omgebouwd tot een vierde kamer. Aan de achterzijde van de tuin bevindt zich bovendien de toegang tot een ruime garage met bergzolder, voorzien van elektra en een elektrische kantelpoort.

De ligging is bovendien uitstekend. Op slechts vijf minuten fietsen bereikt u het winkelcentrum van Schaesberg, waar u terecht kunt voor de dagelijkse boodschappen en meer. Een middelbare school ligt op zo’n tien minuten fietsen en ook diverse basisscholen en sportvoorzieningen zijn in de directe nabijheid te vinden. Daarbij bent u met de fiets of auto zo in het centrum van Heerlen, en via de N299 en A76 rijdt u vlot richting Maastricht, Aken of de rest van Zuid-Limburg. Alle voorzieningen binnen handbereik, en toch in een rustige, kindvriendelijke straat: een ideale combinatie.

Indeling

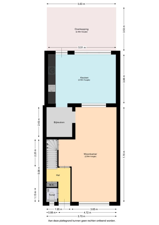
Bij aankomst valt meteen de nette en verzorgde voortuin op, die de woning een uitnodigende uitstraling geeft. Vanuit hier betreedt u de hal, waar een tegelvloer ligt en ruimte is voor een garderobe. De hal biedt verder toegang tot de meterkast en een modern toilet, volledig betegeld en voorzien van een zwevend closet en fonteintje.
De woonkamer profiteert van veel daglicht dankzij het grote raam aan de voorzijde. De tegelvloer uit de hal loopt door in de woonkamer en geeft het geheel een rustige basis. Aan de voorzijde is een rolluik geplaatst en de ruimte beschikt over een airco (2023) die kan verwarmen en koelen. Een praktische bergruimte onder de trap biedt extra opbergmogelijkheden.
Aansluitend bevindt zich een tussenportaal dat dienstdoet als bijkeuken, ideaal voor voorraad of huishoudelijke spullen. Vanuit hier loopt u door naar de royale leefkeuken, die is ontstaan door een flinke uitbouw aan de achterzijde van de woning. Deze keuken vormt zonder twijfel het hart van het huis: een lichte en gezellige ruimte waar een grote eettafel perfect tot zijn recht komt. De keuken is voorzien van veel kastruimte en diverse inbouwapparatuur, zoals een keramische kookplaat, afzuiging, heteluchtoven, koelkast, vriezer en een warmwaterboiler. Grote raampartijen zorgen voor veel lichtinval en een prachtig uitzicht op de tuin. Voor extra comfort beschikt de keuken over rolluiken en een tweede airco (2023). Vanuit de keuken loopt u zo het overdekte terras op, waardoor binnen en buiten moeiteloos in elkaar overlopen.

Eerste verdieping

De trap naar de eerste verdieping is bekleed met laminaat en leidt naar een overloop met pvc-vloer. Vanaf hier zijn drie slaapkamers en de badkamer bereikbaar. De slaapkamers zijn netjes afgewerkt met laminaatvloeren en beschikken over veel daglicht. Rolluiken zorgen voor comfort en verduistering, deels elektrisch bedienbaar. De kamer aan de achterzijde is bovendien voorzien van een eigen airco (2023), die de temperatuur het hele jaar door aangenaam houdt. De derde, kleinere kamer is ideaal in te richten als werkkamer of logeerkamer. De badkamer is in 2019 vernieuwd. Hier vindt u een ruime inloopdouche, een zwevend toilet, een badkamermeubel met wastafel en spiegel met verlichting. Ook zijn de aansluitingen voor wasmachine en droger hier aanwezig. Voor privacy en comfort is de badkamer eveneens voorzien van een rolluik.

Tweede verdieping

Via een vlizotrap bereikt u de zolderverdieping. Deze ruimte biedt plaats aan de cv-installatie en extra bergruimte. Met enkele aanpassingen, zoals het plaatsen van een vaste trap en een dakraam of dakkapel, kan deze verdieping eenvoudig worden omgebouwd tot een vierde slaapkamer of een ruime hobbykamer.

Tuin

De tuin is zonder twijfel het pronkstuk van deze woning. Direct achter de woning bevindt zich een groot, overdekt terras met verlichting, waardoor u hier het hele jaar door kunt genieten van het buitenleven. Wanneer u verder de tuin inloopt, wordt u verrast door de enorme ruimte die zich voor u uitstrekt. Een groot, verzorgd gazon, omzoomd door borders en volwassen beplanting, geeft de tuin een parkachtige uitstraling. De hoge hagen en het omliggende groen zorgen bovendien voor volledige privacy. De tuin is perfect onderhouden en biedt ruimte voor ontspanning, spelende kinderen, tuinliefhebbers of zelfs een moestuin. Aan de achterzijde van de tuin bevindt zich de garage, die zowel vanuit de tuin als vanuit de straat bereikbaar is. De garage is ruim opgezet, voorzien van elektra en een bergzolder. Dankzij de elektrische kantelpoort met afstandsbediening is deze bovendien zeer praktisch in gebruik.

Bijzonderheden

•	Energielabel C
•	10 zonnepanelen
•	3 airco’s (allen uit 2023, verwarmen én koelen)
•	Zeer ruime tussenwoning met uitbouw en grote achtertuin
•	Grotendeels kunststof kozijnen, deels hardhouten kozijnen, allemaal met HR++ glas
•	Rolluiken aanwezig (deels elektrisch)
•	Zolder met uitbreidingsmogelijkheden
•	Garage met bergzolder, 
•	Rustige ligging, winkelcentrum Schaesberg op 5 minuten en middelbaar onderwijs op 10 min fietsen. 

*** Opgegeven tuinmaten, zijn circa maten ***

Kenmerken