Beschrijving

Hoekwoning met aanbouw, drie slaapkamers, zolder en garage

In een rustige woonwijk in Eygelshoven, op korte afstand van winkels, scholen, het treinstation en diverse uitvalswegen, staat deze verzorgde hoekwoning met garage. Hier woont u prettig centraal, maar toch in een kindvriendelijke omgeving waar u de dagelijkse voorzieningen binnen enkele minuten bereikt.

Deze woning biedt verrassend veel ruimte. Op de begane grond beschikt u over een ruime woonkamer met open keuken, aangevuld met een multifunctionele aanbouw die gebruikt kan worden als eetkamer, werkkamer of speelhoek. De eerste verdieping telt drie slaapkamers en een modern afgewerkte badkamer. De tweede verdieping is groot genoeg om een vierde slaapkamer te realiseren. 

De kunststof kozijnen met HR++ glas, de rolluiken aan de achterzijde, mechanische ventilatie en energielabel C dragen bij aan een prettig en energiezuinig woonklimaat. De achtertuin is onderhoudsvriendelijk aangelegd en heeft een zij-ingang én toegang tot de lagergelegen garage met elektra, ideaal voor (elektrische) fietsen, een hobbyruimte of het parkeren van uw auto.

Of u nu starter bent of juist toe bent aan een volgende stap met meer ruimte — deze fijne hoekwoning heeft alles in huis om heerlijk te wonen.

Indeling

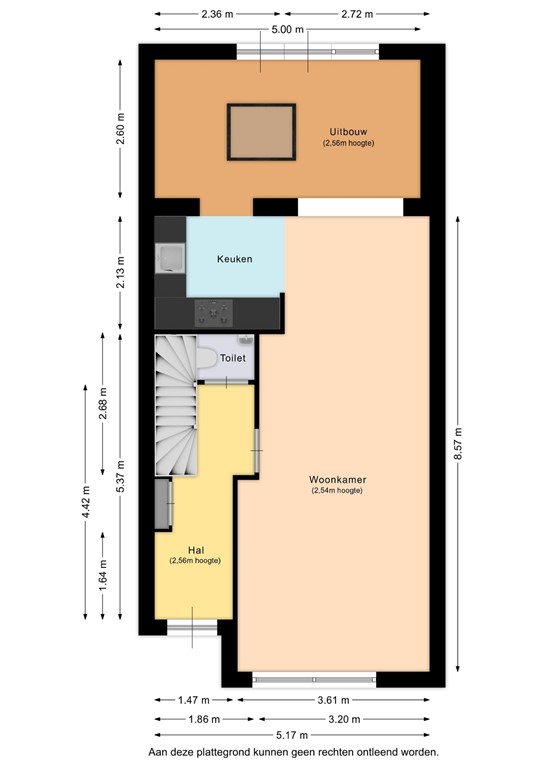
Via de verzorgde voortuin bereikt u de overdekte entree. U komt binnen in de ontvangsthal met tegelvloer, garderoberuimte, meterkast en een modern, zwevend toilet met fonteintje.

De doorzonwoonkamer is ruim opgezet en geniet van veel daglicht dankzij de grote raampartijen aan voor- en achterzijde. De tegelvloer zorgt voor een frisse en praktische basis, waardoor de ruimte direct prettig aanvoelt. De keuken staat in open verbinding met de woonkamer en beschikt over een hoekopstelling met voldoende kastruimte. Hier kunt u uitstekend uit de voeten met een gasfornuis voorzien van een wokbrander, een afzuigkap, heteluchtoven en een losstaande vaatwasser die achterblijft. Aangrenzend aan de keuken bevindt zich de aanbouw, die door de open verbinding met de woonkamer een volwaardige uitbreiding van de leefruimte is. De kamer is ideaal als eetkamer, thuiswerkplek of speelkamer. Dankzij de aanwezige ramen en openslaande deuren is er volop daglicht en directe toegang tot de achtertuin. Rolluiken zorgen voor extra privacy en comfort.

Eerste verdieping

De eerste verdieping beschikt over drie slaapkamers en een badkamer. De twee slaapkamers aan de achterzijde zijn voorzien van rolluiken en zorgen, net als de kamer aan de voorzijde, voor een fijne lichtinval. Zowel de overloop als de slaapkamers zijn afgewerkt met een laminaatvloer. De derde, compactere kamer leent zich uitstekend als kinder-, werk- of logeerkamer.

De badkamer is keurig afgewerkt en volledig betegeld in een tijdloze stijl. U beschikt hier over een comfortabele inloopdouche, een modern badkamermeubel met lades, een brede wastafel en een bijpassende spiegel. De designradiator zorgt voor een aangename warmte en maakt de ruimte compleet. Een fijne plek om de dag fris te beginnen én ontspannen af te sluiten.

Tweede verdieping

Een vaste trap brengt u naar de ruime tweede verdieping. De twee dakramen (2025, HR++ glas) zorgen voor een goede lichtinval. Tevens bevinden zich hier de witgoedaansluitingen en de CV-installatie (huur). Deze verdieping is groot genoeg om een vierde slaapkamer, hobbyruimte of werkruimte te creëren.

Tuin

De achtertuin is verzorgd aangelegd en volledig bestraat. Er is voldoende ruimte om met plantenbakken of potten eenvoudig extra groen toe te voegen. Dankzij de praktische indeling is er plek voor een gezellige zit- of eethoek, waar u op mooie dagen heerlijk buiten kunt ontspannen. De tuin is bereikbaar via de aanbouw én beschikt over een zij-ingang en een achterom.

Aan de achterzijde ligt de garage, iets lager ten opzichte van het perceel en bereikbaar via een trap. De garage is voorzien van elektra en een kantelpoort — ideaal voor het stallen van een auto, (elektrische) fietsen of het opbergen van gereedschap en hobbymateriaal.

Bijzonderheden

Hoekwoning met extra leefruimte door aanbouw
Garage met elektra, bereikbaar via achterzijde
Kunststof kozijnen met HR++ glas
Energielabel C
Rolluiken aan achterzijde woning
Mechanische ventilatie
Vierde slaapkamer mogelijk op zolder
Fijne ligging nabij winkels, scholen, station en uitvalswegen
Huurovereenkomst cv-installatie dient mee overgenomen te worden

De informatie is met de nodige zorgvuldigheid door ons samengesteld. Er kunnen geen rechten worden ontleend aan deze advertentie en brochure en aanvaarden wij geen enkele aansprakelijkheid voor enige onvolledigheid, onjuistheid of anderszins, dan wel de gevolgen daarvan. Maatvoeringen en oppervlakten zijn indicatief.

Kenmerken