Beschrijving

Aan de Tripsstraat in Eygelshoven ligt deze goed onderhouden tussenwoning met aanbouw, diepe achtertuin en een vrijstaande garage met oprit. De woning beschikt over een ruime indeling, drie slaapkamers, een zolderverdieping met mogelijkheden voor een extra kamer en een verzorgde tuin met meerdere terrassen. Dankzij de uitbouw aan de achterzijde is de begane grond opvallend ruim opgezet en vormt de leefkeuken een centraal punt in de woning.

De woning is voorzien van kunststof kozijnen met HR++ beglazing en rolluiken (met uitzondering van het toiletraam). Het hoofddak is in 2023 vernieuwd en geïsoleerd. Daarnaast zijn er twee airco’s aanwezig die zowel kunnen koelen als verwarmen. Met energielabel C biedt deze woning een aangename basis voor comfortabel wonen.

De woning is gelegen in een rustige woonstraat in Eygelshoven. In de directe omgeving bevinden zich winkels, scholen, openbaar vervoer en diverse dagelijkse voorzieningen. Ook uitvalswegen richting Kerkrade, Landgraaf en Heerlen zijn snel bereikbaar.

Indeling

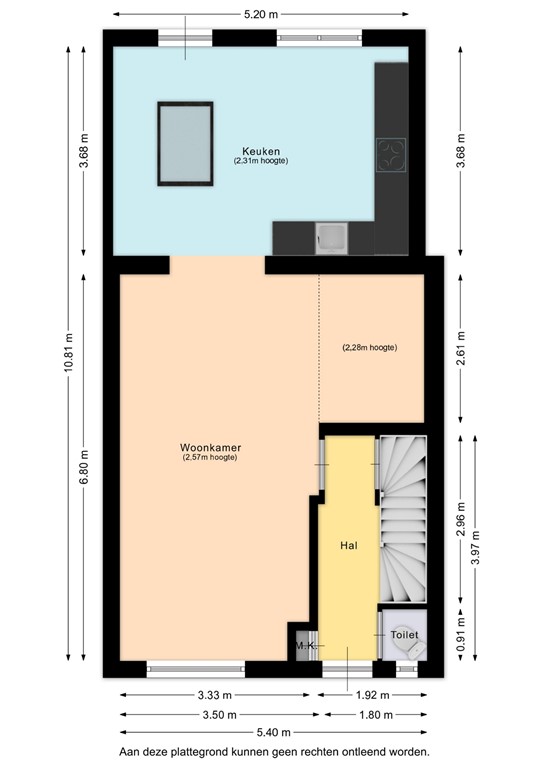
Via de entree kom je in de ontvangsthal van de woning. Deze ruimte is afgewerkt met een grindvloer en beschikt over een garderobe, meterkast en een toiletruimte. Vanuit de hal is tevens de provisiekelder bereikbaar waar de witgoedaansluitingen zijn gesitueerd. Vanuit hier is er toegang tot de woonkamer en de trap naar de eerste verdieping.

De woonkamer is ruim van opzet en afgewerkt met een grindvloer. Grote raampartijen zorgen voor een prettige hoeveelheid daglicht in de ruimte. Aan de voorzijde van de woning is een rolluik aanwezig. Door de lengte van de woonkamer ontstaat een fijne indeling met voldoende ruimte voor zowel een zitgedeelte als een eetgedeelte. Vanuit de woonkamer is er een open verbinding met de keuken aan de achterzijde van de woning.

Aan de achterzijde bevindt zich de uitgebouwde leefkeuken. Door deze aanbouw is een royale leefruimte. De grindvloer loopt door vanuit de woonkamer, waardoor het geheel een rustige en samenhangende uitstraling heeft. 

De keuken is uitgevoerd in een hoekopstelling en biedt veel werkblad en kastruimte. De keuken is voorzien van diverse inbouwapparatuur, waaronder een keramische kookplaat, afzuigkap, koelkast en vaatwasser. Een lichtkoepel zorgt voor extra daglicht in de ruimte. Daarnaast is hier een elektrische boiler geplaatst en een airco aanwezig die zowel kan koelen als verwarmen. Vanuit de keuken is er directe toegang tot de achtertuin en ook hier zijn rolluiken aanwezig. Dankzij de uitbouw is de begane grond merkbaar groter geworden en biedt deze volop leefruimte.

Eerste verdieping

Via de trap in de hal bereik je de eerste verdieping. De overloop is afgewerkt met een tegelvloer en geeft toegang tot drie slaapkamers en de badkamer. Op de overloop bevindt zich tevens een airco die zowel kan koelen als verwarmen. De drie slaapkamers beschikken allemaal over prettig daglicht en zijn voorzien van rolluiken. Twee slaapkamers zijn afgewerkt met een laminaatvloer en beschikken over een muurkast. De derde kamer is voorzien van tapijt en kan uitstekend worden gebruikt als werk- of studeerkamer.
De badkamer is uitgerust met een ligbad met douche en een wastafel met meubel en spiegel. Een raam zorgt voor daglicht en ventilatie en is eveneens voorzien van een rolluik.

Tweede verdieping

Via een vaste trap is de tweede verdieping bereikbaar. Deze verdieping wordt momenteel gebruikt als bergzolder en hier bevindt zich ook de cv-installatie. De ruimte biedt mogelijkheden om een extra kamer te realiseren, bijvoorbeeld een vierde slaapkamer, hobbyruimte of werkkamer.

Tuin

De achtertuin is verzorgd aangelegd en biedt verschillende plekken om buiten te zitten. Direct achter de woning bevindt zich een terras dat aansluit op de keuken en is voorzien van een lamellen overkapping. Via enkele trappen bereik je het hoger gelegen gedeelte van de tuin. Hier ligt een tweede terras met een overkapping, waardoor er een fijne plek ontstaat om beschut buiten te zitten.

De tuin is voorzien van borders met beplanting en verlichting. Achter in de tuin bevindt zich een poort die toegang geeft tot de oprit en de garage. 

De garage is bereikbaar via de oprit aan de achterzijde van het perceel. Voor de garage is ruimte om een extra auto op eigen terrein te parkeren. De garage is voorzien van een kantelpoort en elektra en biedt voldoende ruimte voor het stallen van een auto, fietsen of het opbergen van gereedschap.

Bijzonderheden

- Energielabel C
- Hoofddak vernieuwd in 2023
- Dakisolatie
- Kunststof kozijnen met HR++ beglazing
- Rolluiken aanwezig (m.u.v. toiletraam)
- Twee airco’s voor koelen en verwarmen
- Uitgebouwde leefkeuken met lichtkoepel
- Verzorgde achtertuin met meerdere terrassen
- Vrijstaande garage met elektra
- Oprit met parkeergelegenheid voor extra auto
- Huurovereenkomsten dienen mee overgenomen te worden (€ 35.95 p.m.)

De informatie is met de nodige zorgvuldigheid door ons samengesteld. Er kunnen geen rechten worden ontleend aan deze advertentie en brochure en aanvaarden wij geen enkele aansprakelijkheid voor enige onvolledigheid, onjuistheid of anderszins, dan wel de gevolgen daarvan. Maatvoeringen en oppervlakten zijn indicatief.

Kenmerken