Beschrijving

Fijne half vrijstaande en zo goed als instapklare gezinswoning met veelzijdige zolderverdieping

Aan een rustige straat in Geleen staat deze goed onderhouden hoekwoning met eigen oprit, drie slaapkamers en een nette achtertuin met overkapping. De woning is instapklaar en biedt een fijne basis voor wie zonder grote verbouwingen wil verhuizen. Dankzij de hoekligging profiteert de woning van een ruimere perceelindeling.

De woning is voorzien van kunststof kozijnen met dubbel glas (met uitzondering van het toilet en de voordeur. Deze zijn van hout) en beschikt over energielabel C. In de woonkamer is een LG airconditioning geplaatst, wat zorgt voor extra comfort. De ligging is gunstig ten opzichte van winkels, scholen, openbaar vervoer en uitvalswegen. Een woonomgeving waar je rustig woont, maar toch dichtbij alle voorzieningen bent.

Indeling

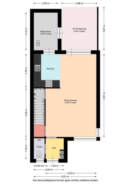
Via de verzorgde voortuin bereik je de entree van de woning. Op eigen terrein is er plaats voor het parkeren van één auto. De hal is afgewerkt met een laminaatvloer die doorloopt naar de woonkamer en keuken. Hier bevinden zich de garderobe en de meterkast. Het toilet is deels betegeld en voorzien van een staand closet en een fonteintje.

De woonkamer is licht door de grote raampartijen aan de voor- en achterzijde. De ruimte biedt voldoende plek voor een zit- en eethoek. Onder de trap bevindt zich een trapkast voor extra bergruimte. De aanwezige LG airconditioning zorgt niet alleen voor verkoeling in de zomer, maar kan tevens verwarmen in koudere periodes. Vanuit de woonkamer is er direct toegang tot het overdekte terras in de achtertuin. Via een tussenportaal bereik je de trap naar de eerste verdieping.

De open keuken staat in verbinding met de woonkamer en beschikt over voldoende kast- en werkruimte. De keuken is uitgerust met een gasfornuis, afzuigkap, combi heteluchtoven, koelkast en vaatwasser. Aansluitend ligt de bijkeuken met witgoedaansluitingen en extra ruimte voor opslag. Zowel vanuit de keuken als vanuit de bijkeuken is het terras in de achtertuin bereikbaar.

Eerste verdieping

De overloop geeft toegang tot drie slaapkamers en de badkamer. Alle slaapkamers zijn voorzien van een laminaatvloer en hebben een prettige lichtinval. De kamers hebben goede afmetingen en zijn flexibel in gebruik. De kleinste kamer is geschikt als werkkamer, maar kan ook als slaapkamer worden ingericht.

De badkamer is in 2020 vernieuwd en volledig betegeld in lichte tinten. De ruimte is voorzien van een inloopdouche met regendouche, een badkamermeubel met waskom en spiegel en een zwevend closet. De afwerking is netjes en modern.

Tweede verdieping

De zolder is bereikbaar via een vlizotrap. Hier bevindt zich de cv-installatie. De ruimte wordt momenteel gebruikt als bergzolder. Met het plaatsen van een vaste trap en het realiseren van extra daglicht kan hier eventueel een extra slaapkamer of hobbyruimte worden gemaakt.

Tuin

De achtertuin is voorzien van een terras met overkapping en verlichting. Hierdoor ontstaat een prettige plek om buiten te zitten, ook wanneer het weer wat minder is.
De tuin is overzichtelijk ingericht en biedt voldoende ruimte voor diverse indelingsmogelijkheden. De huidige opzet vormt een goede basis en kan verder naar eigen smaak worden ingevuld of aangepast.
Aan de zijkant van de woning bevindt zich de berging, geschikt voor het stallen van fietsen en het opbergen van tuinspullen. Daarnaast is er een achterom aanwezig, wat extra gemak biedt.

Bijzonderheden

Hoekwoning
Gelegen aan een rustige straat in Geleen
Eigen oprit met plaats voor één auto
Kunststof kozijnen met dubbel glas (m.u.v. toilet en voordeur, hout)
Energielabel C
LG airconditioning in de woonkamer
Drie slaapkamers
Badkamer vernieuwd in 2020
Zolder met uitbreidingsmogelijkheden
Overkapping met verlichting

De informatie is met de nodige zorgvuldigheid door ons samengesteld. Er kunnen geen rechten worden ontleend aan deze advertentie en brochure en aanvaarden wij geen enkele aansprakelijkheid voor enige onvolledigheid, onjuistheid of anderszins, dan wel de gevolgen daarvan. Maatvoeringen en oppervlakten zijn indicatief.

Kenmerken