Beschrijving

Aan IJssellaan 117 te Gouda gelegen tussenwoning voor kopers die een woning willen kopen en de woning (volledig) naar eigen smaak/wensen willen aanpassen. 

Deze karakteristieke woning is gelegen op een leuke, centrale plek in Gouda op loopafstand van de binnenstad. 
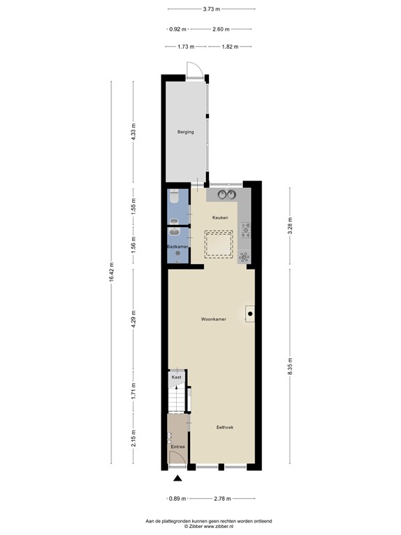
Het betreft een tweelaagse tussenwoning waarvan de begane grond is uitgebouwd. 

Hierdoor is er op de begane grond de ruime woonkamer / eetkamer en half open keuken te vinden. 
Op de begane grond treft u ook aan de badkamer en het toilet.

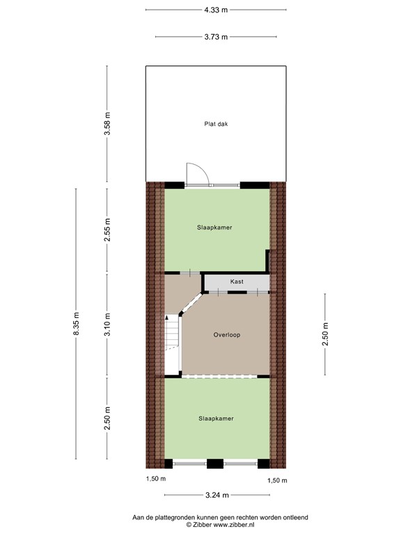
Vervolgens is op de eerste verdieping een open ruimte, waar u meerdere slaap/werkkamers kunt realiseren. 

De tuin is diep, circa 30 meter (inclusief de berging) Op iedere plek in de tuin kunt u van de zon genieten.

De woning is gelegen in de woonwijk Kort Haarlem, op vijf minuten loopafstand van de gezellige historische binnenstad van Gouda, waar zich tal van restaurants, terrassen en winkels bevinden. Het NS-station van Gouda is in slechts enkele minuten met de fiets te bereiken. Ook scholen, sportaccommodaties en zorgvoorzieningen bevinden zich in de directe nabijheid. I

Indeling

(voor schematische indeling en afmetingen bekijkt u de plattegronden)

Begane grond: 
Entree/hal met meterkast en toegang tot de woonkamer. 

Door de uitbouw op de begane grond is er bijzonder veel ruimte in de woonkamer ontstaan, 

De keuken is voorzien van een lichtkoepel voor extra lichtinval.
In de keuken is aanwezig het 4-pits kooktoestel, de koelkast en de afzuigkap.

Op deze verdieping treft u ook het toilet en de badkamer aan.

Achter de keuken, aan de tuinzijde, bevindt zich de berging. 

De achtertuin ligt op het oosten. 
Door de diepte is er overdag en ’s avonds altijd een plekje in de zon of schaduw te vinden.

Eerste verdieping

Een open ruimte, vrij in te delen voor meerdere slaap/werkkamers, zeker 3 kamers is mogelijk.

Vanuit de eerste verdieping kunt u op het dakterras stappen.

Tuin

De achtertuin is diep, circa 30 meter (inclusief de berging) Op iedere plek in de tuin kunt u van de zon genieten.

Ook is een achterom aanwezig.

Bijzonderheden

De woning is klaar voor kopers die een verbouwing willen (laten) aanpakken. 

- Bouwjaar: ca. 1903 
- Perceeloppervlakte 159 m2
- Woonoppervlak: ca. 71 m2
- Overige inpandige ruimte: 7,5 m2 
- Inhoud 279 m3

- Gelegen op eigen grond
 - Diepe tuin op het oosten 
- Zeer ruime berging 
- Energielabel G 
- Uitgebouwd op de begane grond 
- Op vijf minuten loopafstand van de Goudse binnenstad 
- Oplevering in overleg / kan snel. 

Gebruiksoppervlakte woningen: 
De Meetinstructie is gebaseerd op de NEN2580. De Meetinstructie is bedoeld om een meer eenduidige manier van meten toe te passen voor het geven van een indicatie van de gebruiksoppervlakte. De Meetinstructie sluit verschillen in meetuitkomsten niet volledig uit, door bijvoorbeeld interpretatieverschillen, afrondingen of beperkingen bij het uitvoeren van de meting. 

Alle verstrekte informatie moet beschouwd worden als een uitnodiging tot het doen van een bod of om in onderhandeling te treden. Er kunnen geen rechten worden ontleend aan deze woninginformatie.
In de koopakte wordt de ouderdomsclausule en de niet-bewonersclausule opgenomen.

Kenmerken