Beschrijving
Karakteristieke jaren `30 hoekwoning met vrij uitzicht over de groene Voorwillenseweg.
Flinke woonkamer met uitgebouwde (woon) keuken, 2 lichtkoepels in de keuken.
2 slaapkamers op de eerste verdieping.
Op de tweede verdieping de derde slaap/werkkamer, met dakkapel en bergruimte.
Een riante overkapping/veranda aan zijzijde en aan de achterzijde van de woning.
Diepe en brede achtertuin, meerdere schuren en veel privacy.
Het perceel grenst aan water, aan de voorzijde en aan de zijzijde.
Parkeren op eigen terrein, meerdere auto’s mogelijk.
Kenmerken:
Bouwjaar: circa 1934
Perceel oppervlakte: 582 m2
Gebruiksoppervlakte wonen: 105 m2
Overige inpandige ruimte (zolder): 5,7 m2
Vrijstaande houten berging(en) in totaal : 44 m2
Indeling
(voor schematische indeling en afmetingen verwijzen wij u naar de uitgebreide plattegronden).
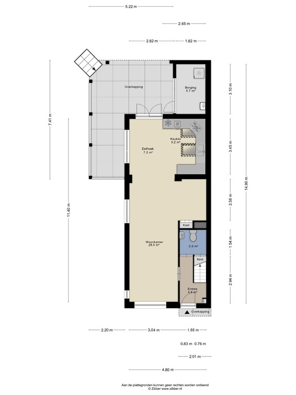
Begane grond:
U betreedt het perceel via de brug (eigendom). De brug is ook voor auto’s toegankelijk.
Via de entree komt u in de hal met meterkast, trapopgang naar 1e verdieping, toilet en toegang tot de living, die bestaat uit de woonkamer en open woonkeuken met inbouwapparatuur zoals een koelkast, vaatwasser, gasfornuis, oven en magnetron.
De vloer van de begane grond is belegd met parket.
Via de openslaande deuren aan de achterzijde betreedt u de veranda. Ook is de bijkeuken bereikbaar. In de bijkeuken treft u aan de opstelplaats voor de CV uit 2015 en de aansluiting voor o.a. wasmachine.
De riante overkapping/veranda geeft u de mogelijkheid om in alle rust van het uitzicht over uw tuin te genieten.
Als u de entree aan de voorzijde niet wilt gebruiken, loopt u langs de woning en via de overkapping/veranda heeft u toegang tot de woning.
Eerste verdieping
Overloop, slaapkamer voorzijde en slaapkamer achterzijde, met toegang tot plat/terras.
Eenvoudige badkamer, betegeld, met douchecabine, wastafel, toilet.
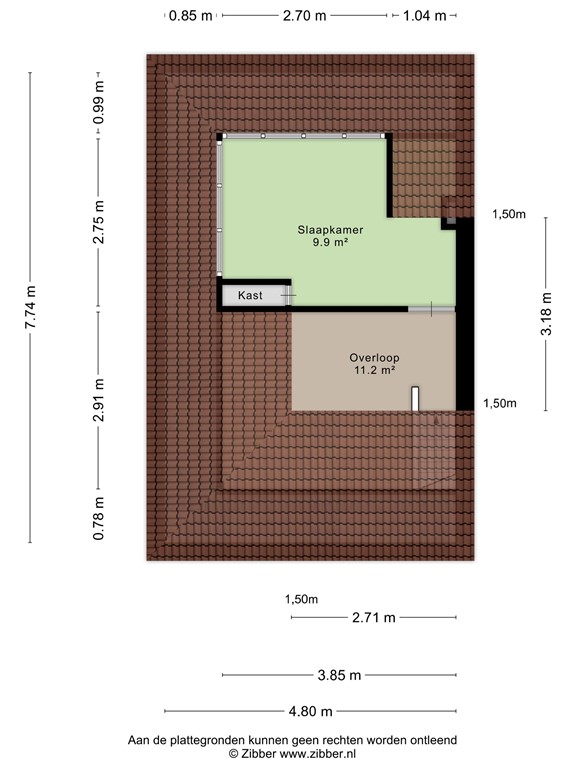
Tweede verdieping
Bereikbaar vanuit de slaapkamer voorzijde en voorzien van een open zolder alsmede een slaap/werkkamer met hoekdakkapel.
Tuin
Voortuin met toegang tot de woning.
Zijtuin voor onder andere parkeerplaats(en) en de zijtuin dient ook als doorgang naar toegang aan achterzijde.
Achtertuin met op dit moment meerdere houten bergingen, kruidentuin en visvijver.
In de achtertuin kunt u, met name door de diepte (circa 35m), op ieder moment genieten van zon en schaduw.
Bijzonderheden
De woning is gelegen aan een rustige openbare weg. Op loop en fietsafstand van historisch centrum van Gouda, NS station, supermarkten en recreatiemogelijkheden zoals Reeuwijks plassen en wandelgebieden.
Een airco die verwarmt en koelt op de begane grond en slaapkamers op eerste verdieping.
Een vierde airco aansluiting is mogelijk.
Woning deels dubbel glas, deels enkel glas.
CV ketel en aansluitingen wasmachine in berging op begane grond.
Aan zijzijde en aan achterzijde, brede overkapping/veranda.
Gebruiksoppervlakte woningen: De Meetinstructie is gebaseerd op de NEN2580. De Meetinstructie is bedoeld om een meer eenduidige manier van meten toe te passen voor het geven van een indicatie van de gebruiksoppervlakte. De Meetinstructie sluit verschillen in meetuitkomsten niet volledig uit, door bijvoorbeeld interpretatieverschillen, afrondingen of beperkingen bij het uitvoeren van de meting.
Alle verstrekte informatie moet beschouwd worden als een uitnodiging tot het doen van een bod of om in onderhandeling te treden. Er kunnen geen rechten worden ontleend aan deze woninginformatie.
Plattegronden
1a 181787227_1602675_voorw_begane_grond_first_design_20260203_54c613.jpg
1b 181787227_1602675_voorw_eerste_verdiepi_first_design_20260203_8f0df2.jpg
1c 181787227_1602675_voorw_tweede_verdiepi_first_design_20260203_b961ab.jpg
181787227_1602675_voorw_begane_grond_tu_first_design_20260203_558b28.jpg
181787227-295798576-se-148464955-1770124337440.png
181787227-295679362-se-148464955-1770124337440.png