Beschrijving
Burg. G. Van Barneveldstraat 12 in Hoogkerk, Groningen – een heerlijke hoekwoning uit 1961 met GARAGE, en alle ruimte en mogelijkheden die je zoekt!
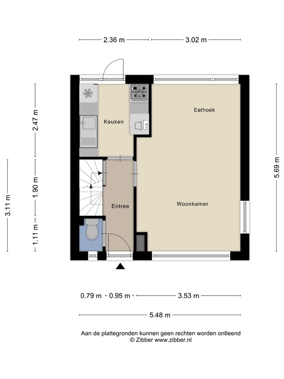
Deze knusse, lichte woning van 63 m² staat op een royaal perceel van 152 m² en biedt maar liefst 3 slaapkamers, ideaal voor starters of gezinnen die op zoek zijn naar een eigen plekje. De woonkamer is heerlijk licht dankzij het zijraam en biedt ruimte voor zowel een gezellige zithoek als een eethoek. De gesloten keuken is basic maar ruim, met plek voor de cv-ketel en wasmachine. Op de eerste verdieping vind je drie praktische slaapkamers met grote ramen en veel lichtinval, waarbij de grootste slaapkamer is voorzien van airconditioning. De badkamer is eenvoudig, maar functioneel met douche en wastafel. Buiten geniet je van een ruime, zonnige tuin met achterom en toegang tot de eigen garage (15 m²). Daarnaast is er ook nog eens een extra berging (6,5 m²), die zich achter de garage bevindt, bereikbaar via de achterom.
Deze woning heeft veel potentie om verder te verduurzamen, bijvoorbeeld met vloer-, dak- en spouwmuurisolatie, een warmtepomp of extra zonnepanelen – er liggen er nu al 7! Met diverse subsidiemogelijkheden, zoals het Nijbegun, kun je deze woning naar eigen smaak moderniseren en toekomstbestendig maken. Straks staat hier een super leuke, energiezuinige woning die helemaal bij jou past!
De locatie is perfect: Hoogkerk is een levendige wijk met veel voorzieningen en eigen winkelcentrum, vlakbij de stad Groningen. Je woont hier rustig, maar bent zo in het centrum dankzij goede busverbindingen en de nabijgelegen P+R Hoogkerk. In de straat is voldoende parkeergelegenheid, en met de A7 en N372 om de hoek ben je snel op weg. Kortom, een fijne plek om te wonen, met alle voorzieningen binnen handbereik!
BIJZONDERHEDEN
- Leuke hoekwoning met 3 slaapkamers, ideaal voor starters;
- Ruime tuin met achterom;
- Eigen garage én berging;
- 7 zonnepanelen en airconditioning aanwezig;
- Veel potentie voor verduurzaming i.c.m. subsidiemogelijkheden;
- Aanvaarding in overleg; De woning is op korte termijn beschikbaar.
Plattegronden
182033788_1626740_burg_begane_grond_first_design_20260209_cbd320.jpg
182033788_1626740_burg_kelder_first_design_20260209_589b3e.jpg
182033788_1626740_burg_eerste_verdiepi_first_design_20260209_5d7b5c.jpg
182033788_1626740_burg_garage_first_design_20260209_dcd04e.jpg
182033788_1626740_burg_berging_first_design_20260209_147a67.jpg