Beschrijving

Op zoek naar een mooie en duurzame tussenwoning in De Held met drie slaapkamers? Dan is dit de woning die je zoekt!

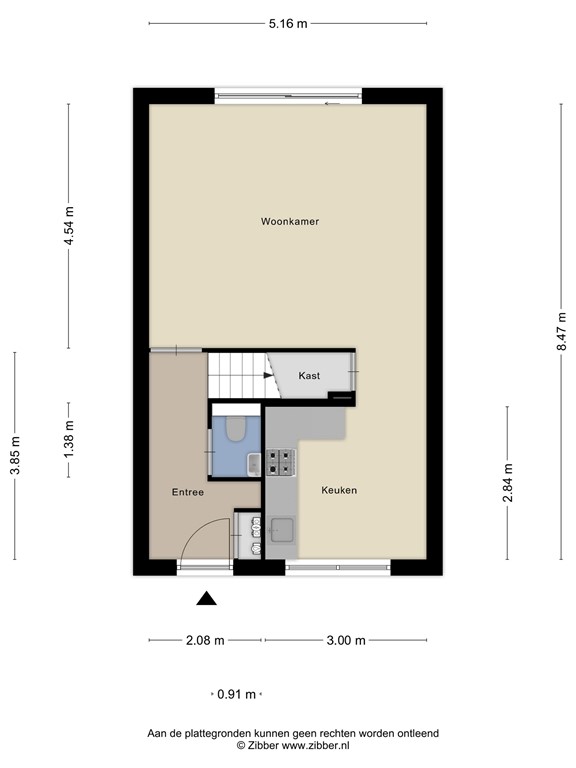
Bij binnenkomst kom je in de hal met ruimte voor een garderobe. Hier bevinden zich het gerenoveerde toilet, de meterkast, de trap naar boven en de toegang tot de woonkamer met halfopen keuken.

De lichte woonkamer met halfopen keuken is maar liefst 33 m² groot en profiteert van veel daglicht dankzij de glazen schuifpui. De woonkamer is voorzien van een airco die zowel kan koelen als verwarmen. Aan de achterzijde is volop ruimte voor een gezellige zithoek met uitzicht op de tuin. De keuken ligt aan de voorzijde van de woning en is uitgerust met een gaskookplaat, afzuigkap, vaatwasser en een koel-vriescombinatie.

Via de schuifpui bereik je de zonnige achtertuin op het zuiden. Deze is deels betegeld en deels voorzien van gras, waardoor er een fijne combinatie is van terras en groen. De tuin beschikt daarnaast over een achterom en een praktische berging met ruimte voor meerdere fietsen en tuingereedschap.

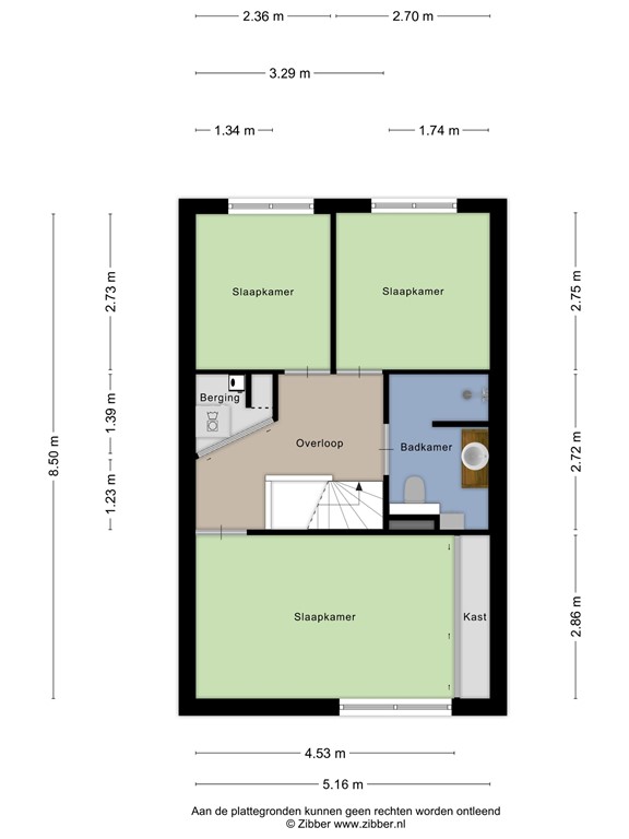
Op de eerste verdieping bevinden zich drie slaapkamers van circa 13 m², 7,5 m² en 6,5 m². De grootste slaapkamer ligt aan de voorzijde en is eveneens voorzien van een airco met koel- en verwarmingsfunctie. De moderne badkamer van circa 4,5 m² is in 2023 volledig gerenoveerd en beschikt over een douche, tweede toilet, wastafelmeubel en handdoekradiator. Op de overloop zijn tevens de aansluitingen voor de wasmachine en droger aanwezig.

De woning bevindt zich in de wijk De Held, een groene en ruim opgezette woonomgeving aan de westzijde van de stad. De straat is rustig en overzichtelijk, met voornamelijk bestemmingsverkeer. In de directe omgeving zijn voorzieningen zoals scholen, sportfaciliteiten en winkels goed bereikbaar. Voor ontspanning liggen natuur- en recreatiegebieden zoals Het Roege Bos en het Westpark dichtbij. Met zowel de binnenstad als de ringweg op korte afstand is de bereikbaarheid uitstekend. Parkeren kan vrij voor de deur.

Belangrijke kenmerken:
- Comfortabele gezinswoning met 3 slaapkamers;
- Moderne badkamer en toilet uit 2023; 
- Zonnige tuin op het zuiden;
- Energielabel A+, volledig geïsoleerd;
- 11 zonnepanelen aanwezig;
- Airconditioning (koelen én verwarmen) in woonkamer en slaapkamer;
- Aanvaarding in overleg.

Kenmerken