Beschrijving

Instapklaar en energiezuinig appartement in De Wijert
Ben je op zoek naar een uitstekend onderhouden en instapklaar appartement op een fijne locatie in Groningen? Dan is dit jouw kans. Dit energiezuinige appartement met energielabel A beschikt over twee balkons, een moderne afwerking en een verrassend ruime indeling. Hier combineer je comfort, licht en duurzaamheid met een groene woonomgeving nabij de binnenstad.
________________________________________
Wonen met comfort en kwaliteit
Het appartement is met zorg onderhouden en modern afgewerkt. De nette keuken, moderne badkamer en toilet zorgen ervoor dat je hier zonder klussen kunt intrekken.
Dankzij de grote raampartijen aan beide zijden van de woning geniet je hier de hele dag van veel natuurlijk daglicht. Bovendien beschikt het appartement over twee balkons; een balkon op het oosten voor de ochtendzon, een balkon op het westen voor de middag- en avondzon. Zo is er altijd een fijne plek om buiten te zitten.
________________________________________
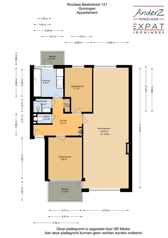
Indeling
Begane grond:
Entree met intercominstallatie en toegang tot een inpandige fietsenberging van circa 8 m². Via het trappenhuis bereik je de woonverdieping gelegen op de tweede etage.
Woonverdieping:
Je komt binnen in een ruime hal die toegang geeft tot vrijwel alle vertrekken. Een net en modern toilet, moderne badkamer voorzien van wastafelmeubel, regendouche, designradiator en mechanische ventilatie. Een ruime en modern uitgeruste keuken met koelkast, vriezer, vaatwasser, 4-pits gasfornuis, afzuigkap, combi magnetron en ruimte voor een wasmachine. Vanuit de keuken heb je toegang tot het balkon op het westen. 
De ruime en lichte woonkamer biedt toegang tot het tweede balkon op het oosten.
Het appartement beschikt over twee slaapkamers (voorheen drie). De grootste slaapkamer bevindt zich aan de voorzijde van de woning, de tweede slaapkamer aan de achterzijde. Dit biedt flexibiliteit in gebruik, bijvoorbeeld als hoofdslaapkamer, werkkamer of hobbyruimte.
________________________________________
Wonen in De Wijert – Helpman
De woning is gelegen in de buurt De Wijert in de wijk Helpman, in het zuiden van Groningen. Dit is een groene en kindvriendelijke woonomgeving met alle dagelijkse voorzieningen binnen handbereik. Ook de natuur van het Paterswoldsemeer en recreatie aan het Hoornsemeer zijn dichtbij.
In de directe omgeving vind je onder andere; winkelcentra (van Lenneplaan en Overwinningsplein), diverse supermarkten, horecagelegenheden, scholen, sportvoorzieningen en een wijkcentrum.
Met de fiets bereik je het centrum van Groningen binnen 10 tot 15 minuten. Met de auto zit je binnen enkele minuten op de ringweg, met snelle verbindingen naar de A7 en A28. Met bushaltes op loopafstand is de toegang tot het openbaar vervoer ook zeer goed. De bereikbaarheid is dan ook uitstekend te noemen.
In De Wijert woon je rustig en groen, met de levendigheid van de stad altijd dichtbij.
________________________________________
Interesse?
Ben jij op zoek naar een prachtig, energiezuinig en volledig instapklaar appartement zonder onderhoud, mét energielabel A?
Plan dan snel een bezichtiging en ervaar zelf het wooncomfort van deze fijne woning.
________________________________________
BELANGRIJKSTE KENMERKEN OP EEN RIJ
•	Energielabel A ;  HR++ beglazing, HR CV ketel (2022, eigendom)
•	Nette en modern uitgeruste keuken
•	Moderne badkamer en toilet
•	Grote en lichte woonkamer
•	Twee ruime slaapkamers
•	Twee balkons voor zowel ochtend- als middag/avond zon
•	Ruime inpandige berging
•	Actieve VvE
•	Uitstekende ligging en voorzieningen in de omgeving
•	Zeer goede bereikbaarheid

Kenmerken