| Prijs | € 476.000,- k.k. |
| Type object | Woonhuis, eengezinswoning, hoekwoning |
| Perceeloppervlakte | 179 m² |
| Woonoppervlakte | 117 m² |
| Aanvaarding | In overleg |
| Status | Verkocht |
Royaal wonen in een prachtige woonomgeving In een jonge woonwijk aan een prachtige brede straat met groenzone en watergang staat deze royale hoekwoning met bijgebouw en tuin. Een huis waar je niet alleen woont, maar écht thuiskomt. De uitgebouwde, extra royale living vormt samen met de designvolle keuken het hart van het huis – licht, sfeervol en uitnodigend. Drie royale slaapkamers, modern sanitair, veel daglicht en mooie zichtlijnen maken het plaatje compleet. De begane grond is voorzien van vloerverwarming én een sfeervolle houtkachel, wat bijdraagt aan een aangenaam woonklimaat. De onderhoudsvriendelijke achtertuin biedt volop privacy en nodigt uit tot ontspannen. Het charmante bijgebouw combineert praktische bergruimte met een gezellige veranda, ideaal om optimaal van je tuin te genieten – ongeacht het seizoen. Ook de locatie laat niets te wensen over. Er is ruimschoots parkeergelegenheid voor de deur of op het parkeerplein direct achter de woning. Dankzij de ruimtelijke opzet van de woonomgeving heb je geen directe voor- of achterburen, waardoor je veel privacy ervaart. En met een nieuwe speeltuin op loopafstand is dit bovendien een heerlijke plek voor gezinnen. Groot-Ammers is een prachtig dorp in de Alblasserwaard, midden in het groen en omgeven door uitgestrekte weilanden en brede watergangen. Het dorp combineert landelijke rust met het gemak van goede voorzieningen. Je vindt er onder meer een supermarkt, basisscholen, sportverenigingen, een huisartsenpraktijk en diverse lokale winkels. Voor wie wat meer reuring zoekt, liggen grotere plaatsen als Schoonhoven, Gorinchem en Nieuw-Lekkerland op korte afstand. Via de N216 en N214 is de aansluiting op de A15 uitstekend, waardoor steden als Rotterdam, Dordrecht en Utrecht vlot bereikbaar zijn. Daarnaast zijn er goede openbaar vervoer verbindingen, waaronder een busverbinding richting Gorinchem en Rotterdam. Groot-Ammers is daarmee een aantrekkelijke woonplek voor wie de rust van het dorp zoekt, zonder het contact met de stad te verliezen.
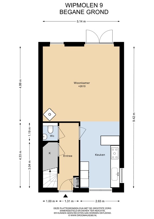
Bij binnenkomst ervaar je direct de aangename woonsfeer. De gehele begane grond is voorzien van eiken vloerdelen, die niet alleen voor een stijlvolle uitstraling zorgen, maar ook geschikt zijn voor de aanwezige vloerverwarming. De glad gestucte wanden en strak afgewerkte plafonds geven het interieur een moderne, rustige uitstraling. In de hal vind je de meterkast, trapopgang, praktische trapkast én een toiletruimte met wandcloset, fontein en mechanische ventilatie. De living ligt aan de tuinzijde en ademt rust. Dankzij de uitbouw van ruim 2 meter is hier veel extra leefruimte gecreëerd. De "Barbas” houtkachel is naast een uitstekende warmtebron een sfeermaker van de eerste orde. Het grote raam en de openslaande deuren zorgen voor een heldere lichtinval en een heerlijke verbondenheid met de tuin. De kamerhoge gordijnen zijn inclusief. De keuken staat in dynamische open verbinding met de living en bestaat uit een kookopstelling met eetbar en een kastenwand. Je beschikt over alle gewenste apparatuur, waaronder een vijfpits gaskookplaat, afzuigschouw, combimagnetron, heteluchtoven, vaatwasmachine en een koel-/vriescombinatie. De eetbar met twee zitplaatsen maakt dit een gezellige plek om aan te schuiven. Dankzij de twee ramen is de keuken opvallend licht en geniet je van een leuk uitzicht op de straat en het naast de woning gelegen burenpad. De rolgordijnen en de zonwerende screens zorgen voor controle over licht en privacy.
Vanuit de hal brengt de trapopgang je naar de eerste verdieping. De overloop is verrassend licht dankzij het raam met zonwerende screen. Op de vloer ligt laminaat in een eikenlook, de wanden zijn strak gestuct en de plafonds hebben een spuitwerk finish. Aan de overloop grenzen twee royale slaapvertrekken, een moderne badkamer en een praktische inloopkast met schapruimten. De royale masterbedroom ligt aan de tuinzijde. De kamer biedt voldoende ruimte voor een royale boxspring én een flinke kastenwand. De twee draai-/kiepramen zorgen voor licht en bieden een ruim uitzicht over je woonomgeving. Doordat het perceel grenst aan een parkeerplein heb je geen directe achterburen, dus volop privacy. De tweede, eveneens ruim bemeten, slaapkamer ligt aan de voorzijde en wordt op dit moment gebruikt als kantoor. Ook hier profiteer je van veel licht dankzij de twee draai-/kiepramen, die bovendien zijn uitgevoerd met zonwerende screens. En laten we het ruime uitzicht op de prachtige woonomgeving niet vergeten. Beide slaapkamers zijn uitgerust met verduisterende rolgordijnen en insectenwerende horren. De moderne badkamer kenmerkt zich door comfort. Het ligbad met glazen douchescherm biedt gelegenheid om ontspannen te baden of een verkwikkende douche te nemen. Verfris jezelf aan het strak vormgegeven wastafelmeubel met spiegelkast, ledverlichting en stopcontact. Het wandcloset maakt de sanitaire uitrusting compleet. De vloerverwarming, de mechanische ventilatie en het draai-/kiepraam zorgen voor een aangename atmosfeer. De zwarte jaloezieën zijn inclusief.
Via de vaste trap bereik je de overloop van de 2de verdieping; hieraan grenzen de technische ruimte en de derde slaapkamer. De technische ruimte is uitgevoerd met de wasmachine/drogeraansluitingen, de “Intergas Kompakt HRE” combiketel en je vindt er bergruimte. De derde slaapkamer is opvallend royaal van afmeting. De kapvorm geeft een bijzonder effect aan de ruimte. Zowel in de voor- als de achtergevel bevindt zich een draai-/kiepraam met een plissé-gordijn en een hor, waardoor je goed kunt ventileren. Het raam in de voorgevel is bovendien uitgevoerd met een zonwerende screen. De losse garderobekast fungeert nu als roomdivider en mag achterblijven.
De voortuin is ingericht met sierbestrating en wordt stijlvol omzoomd door steenkorven, wat een moderne, verzorgde indruk geeft. De border met Annabelle hortensia’s geeft charme aan het geheel. Via de afsluitbare poort naast de woning bereik je de heerlijke achtertuin, die fraai is aangelegd met sierbestrating en diverse borders. Blikvanger is de meerstammige boom, die zorgt voor een weelderige entourage. Praktisch zijn de aanwezigheid van een buitenkraan en een gevellamp. Achterin de tuin geniet je van een beschutte zitplek onder de houten veranda met led-verlichting; perfect voor lange zomeravonden. Leuk en smakelijk detail is de blauwe druif, die tegen de voorzijde van de veranda groeit en je uitzicht omlijst. Aangrenzend ligt de houten berging, voorzien van betonnen vloer, dubbel glas, elektra en verlichting. Deze berging heeft bovendien een achterdeur, die directe toegang biedt tot het parkeerplein, dat achter dit perceel ligt. Dit parkeerplein is ook bereikbaar via het burenpad, dat langs dit perceel loopt. Dankzij dit parkeerplein én de parkeerhavens aan de voorzijde van de woning is parkeren altijd makkelijk én dichtbij.
Bijzonderheden Energielabel A. De berging en de veranda in de tuin zijn onderheid. De Pluspunten -Stijlvolle architectuur -Dynamische indeling met ruime leefruimtes -Royale, uitgebouwde living -Vloerverwarming en houtkachel op de begane grond -Drie flinke slaapkamers -Moderne keuken en sanitair -Heerlijke achtertuin met veranda en berging -Zonwerende screens aan voor- en zijgevel -Volop privacy door ligging zonder directe voor- of achterburen -Energielabel A
| Referentienummer | 00220 |
| Vraagprijs | € 476.000,- k.k. |
| Inrichting | Niet gestoffeerd |
| Inrichting | Niet gemeubileerd |
| Status | Verkocht |
| Aanvaarding | In overleg |
| Laatste wijziging | Donderdag 16 oktober 2025 |
| Type object | Woonhuis, eengezinswoning, hoekwoning |
| Soort bouw | Bestaande bouw |
| Bouwperiode | 2011 |
| Dakbedekking | Dakpannen |
| Type dak | Samengesteld |
| Keurmerken | Energie prestatie advies |
| Isolatievormen | Dakisolatie Dubbel glas HR-glas Muurisolatie Spouwmuren Vloerisolatie Volledig geïsoleerd |
| Perceeloppervlakte | 179 m² |
| Woonoppervlakte | 117 m² |
| Woonkameroppervlakte | 25,65 m² |
| Keukenoppervlakte | 11,65 m² |
| Inhoud | 425 m³ |
| Oppervlakte externe bergruimte | 11,5 m² |
| Aantal bouwlagen | 3 |
| Aantal kamers | 4 (waarvan 3 slaapkamers) |
| Aantal badkamers | 1 (en 1 apart toilet) |
| Ligging | Aan rustige weg Dichtbij openbaar vervoer In woonwijk Nabij school |
| Type | Achtertuin |
| Hoofdtuin | Ja |
| Oriëntering | Noord west |
| Heeft een achterom | Ja |
| Staat | Prachtig aangelegd |
| Energielabel | A |
| CV ketel | Intergas Kompakt HRE |
| Warmtebron | Gas |
| Bouwjaar | 2011 |
| Combiketel | Ja |
| Eigendom | Eigendom |
| Warm water | CV-ketel |
| Verwarmingssysteem | Centrale verwarming Houtkachel Vloerverwarming |
| Ventilatie methode | Mechanische ventilatie |
| Keukenvoorzieningen | Inbouwapparatuur |
| Badkamervoorzieningen | Ligbad Toilet Vloerverwarming Wastafelmeubel |
| Heeft een rookkanaal | Ja |
| Glasvezelaansluiting aanwezig | Ja |
| Tuin aanwezig | Ja |
| Beschikt over een internetverbinding | Ja |
| Heeft schuur/berging | Ja |
| Heeft zonwering | Ja |
| Heeft ventilatie | Ja |
| Kadastrale aanduiding | GROOT-AMMERS E 1364 |
| Perceeloppervlakte | 179 m² |
| Omvang | Geheel perceel |
| Eigendomsituatie | Eigen grond |