Beschrijving

* Veelzijdige woonopties - Riant wonen of combineren met praktijk kantoorruimte, B&B of Kangoeroewoning!
* Splitsbaar in twee wooneenheden - Royaal woonhuis + appartement op begane grond (vraag makelaar voor meer info).
* Ideaal voor gemengd gebruik - Geschikt voor grote gezinnen, mantelzorg met zelfstandige bewoning op begane grond.
* Duurzaam en energiezuinig - Hybride warmtepomp, 15 zonnepanelen en WTW-unit.
* Ruime en luxe afwerking - Moderne woonkeuken, meerdere badkamers, dakterras en patio.
* Centraal gelegen - In het hart van Harlingen met alle voorzieningen op loopafstand

Unieke woning met Praktijkruimte en Bed & Breakfast aan de Heiligeweg 12 en 12A  in het centrum van Harlingen. In het hart van het charmante Harlingen bieden wij deze ruime,  luxe afgewerkte woning aan, gelegen aan de Heiligeweg 12 en 12A.  Dit bijzondere pand combineert comfortabel wonen met de mogelijkheid om een eigen praktijkruimte en Bed & Breakfast te exploiteren. Dankzij de flexibele indeling is het pand bovendien geschikt als kangoeroewoning, ideaal voor mantelzorg of zelfstandige bewoning door een familielid, zoals een kind dat geen woning kan kopen of huren. Met een eigen ingang en volop privacy biedt dit huis veelzijdige woonopties. daarnaast kan het pand in zijn geheel als woonruimte worden gebruikt, wat het extra aantrekkelijk maakt voor grote gezinnen of samenwonende generaties.
Duurzaam en energiezuinig: De begane grond is voorzien van vloerverwarming en radiatoren, en naast de HR-combiketel beschikt het pand over een hybride warmtepomp. Er zijn 15 zonnepanelen geïnstalleerd, evenals een WTW-unit en een waterontharder, wat zorgt voor een duurzame en energiezuinige levensstijl
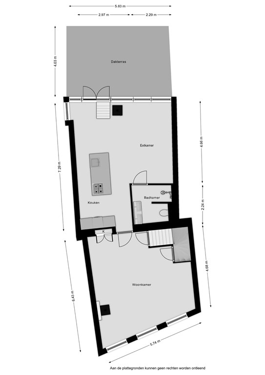
Indeling:
Begane grond: Entree, hal met meterkast, trapopgang, twee praktijkruimtes, witgoedruimte, toilet met fonteintje, slaapkamer, woonkamer (B&B) met openslaande deuren naar de tuin op het zuiden, standaard keuken, badkamer inloopdouche, wastafel met badkamermeubel, extra slaapruimte en een tweede toilet met fonteintje.
Eerste verdieping: Overloop, woonkamer met wand-inbouwkast en pelletkachel, luxe woonkeuken met kookeiland (2017) en diverse inbouwapparatuur, toegang tot het dakterras, badkamer met inloopdouche, dubbele wastafel en toilet.
Tweede verdieping: Overloop, toilet, twee slaapkamers, badkamer met douchecabine en separaat toilet.
Bijzonderheden:
- Unieke combinatie van woonruimte, praktijkruimte en Bed & Breakfast.
- Gelegen in het centrum van Harlingen met alle voorzieningen op loopafstand.
- Ideaal als kangoeroewoning voor mantelzorg of zelfstandige bewoning door een familielid
- Uitstekend geschikt voor gemengd gebruik of volledige bewoning.
- Zij-ingang met steeg en fietsenberging.
- Veel parkeergelegenheid aan zowel de voor- als achterzijde van het pand

Neem contact met ons op voor meer informatie of om een bezichtiging te plannen.

Kenmerken