Beschrijving
Op een rustige plek in de ruim opgezette woonwijk Broekpolder staat aan de Begijnenweide deze leuke tussenwoning met zonnige tuin. Deze uitermate geschikte eengezinswoning is in het geheel keurig afgewerkt en voorzien van een grote dakkapel op de 2e verdieping. Door het recente bouwjaar van de woning met de daarbij behorende isolerende voorzieningen beschikt de woning over een energielabel A!
De achtertuin op het zuidoosten is ruim bemeten en voorzien van een houten vrijstaande berging. De ligging in de geliefde wijk Broekpolder is ideaal met alle voorzieningen zoals scholen, supermarkt en het NS-station op loopafstand.
Wil jij wonen in deze fraai afgewerkte jonge woning? Bel met ons kantoor voor het inplannen van een bezichtiging.
Bouwjaar: 2007
Woonoppervlakte: ca. 116 m²
Externe bergruimte: ca. 4 m²
Inhoud: ca. 412 m³
Perceel: 136 m²
Indeling
Begane grond
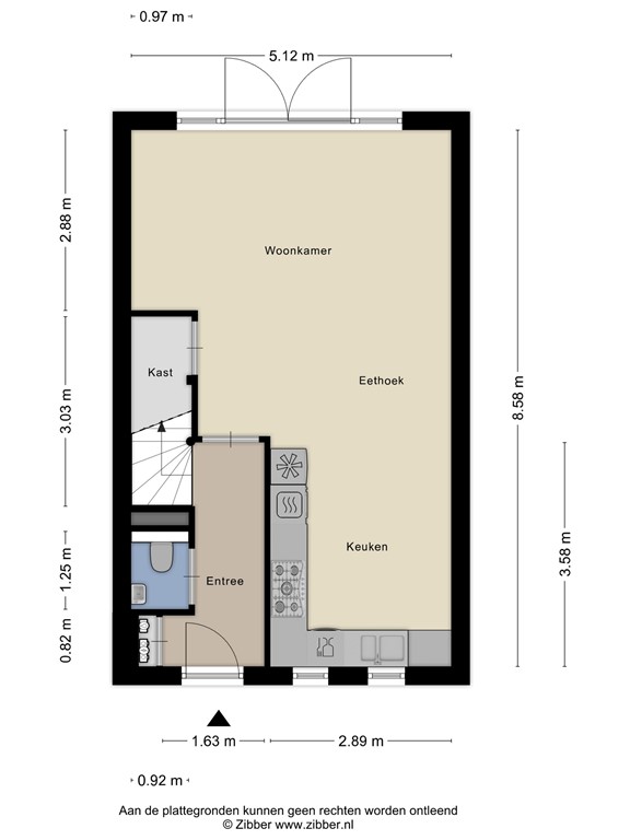
Entree, hal, meterkast (8 groepen en 2 aardlekschakelaars), zwevend toilet met fonteintje, tuingerichte woonkamer met trapkast en openslaande deuren, aan de voorzijde van woning bevindt zich de keuken met inbouwspotjes en diverse inbouwapparatuur, te weten: vaatwasser, koel-vriescombinatie, afzuigkap, 5-pitsgaskookplaat, oven en magnetron. De gehele begane grond is voorzien van een pvc vloer met vloerverwarming.
Eerste verdieping
Door middel van de vaste trap bereik je de eerste verdieping. Hier kom je op de overloop die toegang biedt tot alle vertrekken. Hier bevinden zich drie ruim bemeten slaapkamers met horren, twee aan de achterzijde en één aan de voorzijde van de woning. Tevens bevindt zich aan de voorzijde de badkamer, deze is volledig betegeld, heeft een strakke uitstraling en is voorzien van een douchecabine met regen- en handdouche, dubbele wastafelmeubel, spiegelkast, tweede toilet en vloerverwarming.
Tweede verdieping
Door middel van de vaste trap bereik je de tweede verdieping. Voorzolder met velux dakraam, CV-ketelopstelling en mechanische ventilatie-unit, bergruimte met de witgoedaansluiting. Vierde slaapkamer met knieschotten en dakkapel aan de achterzijde van de woning.
Tuin
De ligging op het zuidoosten zorgt voor een overvloed aan zon in de ochtend en vroege middag – perfect voor een zonnig ontbijt of een lichte, aangename woonruimte.
In de tuin vind je een elektrisch zonnescherm en een vrijstaande houten berging.
Bijzonderheden
2021: Nieuw schilderwerk buitenzijde en nieuwe vaatwasser;
2022: Nieuw toilet, nieuwe badkamer, nieuwe CV-ketel, Aquacell waterontharder en nieuwe mechanische ventilatie-unit.
- energielabel A;
- royale eengezinswoning;
- keurig onderhouden;
- 2e verdieping voorzien van grote dakkapel;
- zonnige achtertuin met achterom;
- 4 slaapkamers verdeeld over 2 verdiepingen;
- zonnescherm op de begane grond over de gehele breedte;
- gelegen in kindvriendelijke- en rustige buurt met voldoende speelvoorzieningen;
- gunstige ligging t.o.v. de uitvalswegen naar de A9 en A22 richting Amsterdam, Zaandam, Haarlem en Alkmaar;
- basisscholen, winkelcentrum, wijkpark “de Vlaskamp en het NS-station Heemskerk op loopafstand.
Plattegronden
177771484_1581132_begij_begane_grond_first_design_20251008_361a6d.jpg
177771484_1581132_begij_eerste_verdiepi_first_design_20251008_830c1e.jpg
177771484_1581132_begij_tweede_verdiepi_first_design_20251008_fcf5e1.jpg
177771484_1581132_begij_berging_first_design_20251008_d036a9.jpg