Beschrijving

NIEUW IN DE VERKOOP!
De verkoop start met een LIVE VIDEO bezichtiging op vrijdag 13 maart om 13.00 uur. U kunt zich hiervoor aanmelden via de website. Daarnaast is het mogelijk om de woning op basis van INDIVIDUELE afspraken te bezichtigen. Reageer via de website of bel voor een afspraak! 

RUIME EN LICHTE DUBBELE BOVENWONING MET ROYALE OPEN KEUKEN UIT 2021, INPANDIG BALKON, 3 SLAAPKAMERS, RIANTE BADKAMER EN ALS KERS OP DE TAART EEN INLOOPKAST!
De mooie erker aan de voorzijde zorgt voor extra veel natuurlijk licht in de woonkamer en het inpandig balkon geeft nog lekker wat extra ruimte, bijvoorbeeld als speel-, werk- of studeerkamer. Ideaal wonen op korte afstand van het strand en met de metro ben je zo in Rotterdam!

Indeling:
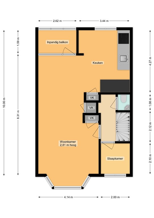
Via de trap vanaf de begane grond kom je op de overloop op de eerste verdieping waar zich ook het separate toilet bevindt. De ruime en lichte woonkamer is voorzien van een mooie erker aan de voorzijde en aan de achterzijde een moderne keuken die van alle gemakken voorzien is, zoals een oven, magnetron, inductie kookplaat, afzuigkap en vaatwasser. Het handige inpandige balkon kan gebruikt worden om te loungen, spelen, werken, hobbyen of leren. Op deze verdieping bevindt zich ook nog een kleine slaapkamer. Handig als bijvoorbeeld babykamer of werkkamer.

De overloop op de tweede verdieping biedt ruimte aan de CV-ketel, wasmachine en eventueel droger. Daarnaast bevinden zich hier 2 slaapkamers, met daartussenin de droom van elke vrouw: de inloopkast. Misschien het inpandige balkon dan maar als mancave invullen? De ruime en moderne badkamer is voorzien van een 2e toilet, douche, bad en dubbel wastafelmeubel. Je surfboard kan je hier ook nog makkelijk kwijt op de vliering.

Ben je nieuwsgierig geworden? Bel of mail dan zeker even voor een afspraak, wat wonen in de badplaats Hoek van Holland is zeker de moeite waard!

Bijzonderheden:
• Gebouwd in 1904;
• Gelegen op eigen grond;
• Gebruiksoppervlakte woonruimte ca. 109 m2;
• 3 slaapkamers; 
• Inloopkast; 
• Energielabel F, geldig tot 31-12-2030; 
• Inpandig balkon op het noordwesten; 
• Voorzien van kunststof kozijnen met HR++-glas en houten kozijnen met grotendeels dubbel glas; 
• Elektra: 7 groepen en 2 aardlekschakelaar; 
• Verwarming en warm water via CV-ketel Remeha uit 2017;
• Actieve VvE 2/3e aandeel, bijdrage € 125,-;
• Zeer gunstige ligging t.o.v. openbaar vervoer, winkels en scholen; 
• Strand op fietsafstand.

Verkoopcondities:
•	Biedingen verlopen via divamakelaars.nl/eerlijkbieden 
•	Deze woning is beschikbaar voor verkoop met een aantrekkelijke minimum biedprijs;
•	Oplevering in overleg;
•	Notaris keuze aan koper mits gelegen in de buurt van de woning;
•	Ongeacht het bouwjaar en de staat van onderhoud zal een ouderdomsclausule worden opgenomen.

Enthousiast over deze woning, maar uw eigen woning nog niet verkocht? Neem contact op met ons kantoor voor een gratis waardebepaling. Wij plannen dan direct een afspraak met de makelaar en heeft u op korte termijn beter inzicht in uw mogelijkheden.

KAN IK DIT BETALEN?
Als extra service maken wij graag GRATIS EN VRIJBLIJVEND een hypotheek berekening door een van onze samenwerkende onafhankelijk hypotheekadviseurs. Wij kennen geen lange wachttijden waardoor vaak nog dezelfde dag een afspraak ingepland kan worden. Uiteindelijk kunnen wij indien gewenst de gehele financieringsaanvraag verzorgen.  

Wij hebben deze informatie, zoals u van ons mag verwachten, met veel zorg samengesteld. Toch komt het in uitzonderlijke gevallen voor dat blijkt dat de informatie niet volledig is. Daarom aanvaarden wij, als verkopend makelaar, geen aansprakelijkheid voor de juistheid en/of volledigheid ervan. Wat betekent dat er geen rechten ontleend kunnen worden aan de vermelde gegevens. We verstrekken u deze informatie om u uit te nodigen voor het plannen van een bezichtiging en het doen van een bod onder voorbehoud en gunning.

Toelichtingsclausule meetinstructie 
De Meetinstructie is gebaseerd op de BBMI. De Meetinstructie is bedoeld om een meer eenduidige manier van meten toe te passen voor het geven van een indicatie van de gebruiksoppervlakte. De meetinstructie sluit verschillen in meetuitkomsten niet volledig uit, door bijvoorbeeld interpretatieverschillen, afrondingen of beperkingen bij het uitvoeren van de meting.

Kenmerken