Beschrijving

RUIM, LICHT EN HEERLIJK GEVESTIGD TUSSEN STADSE GEZELLIGHEID EN DAGELIJKS GEMAK
Ben je starter, een jong gezin of juist toe aan comfortabel gelijkvloers wonen met alles dichtbij? Dan voelt dit ruime appartement meteen als een logische volgende stap. Met twee slaapkamers, een balkon wat heel gunstig op de zon ligt en op loopafstand van de historische binnenstad van IJsselstein combineert deze woning rust, ruimte en levendigheid op een verrassend fijne manier.
DE HIGHLIGHTS OP EEN RIJTJE
•	Mooie, lichte en vooral ruime kamers
•	Nette badkamer en verzorgde afwerking
•	Energielabel B – comfortabel en efficiënt wonen
•	Gezonde en professioneel geleide VvE
•	Praktische berging op de begane grond met mogelijkheid om een zolder te creëren
•	Balkon op het zuidwesten voor heerlijke middag- en avondzon
EEN APPARTEMENT DAT RUIMTE GEEFT AAN JE DAG
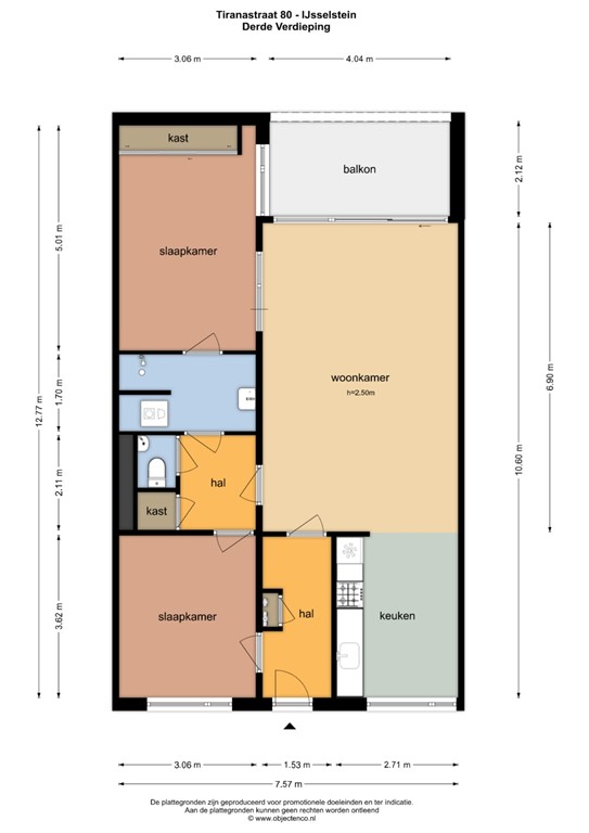
Sommige woningen voelen meteen goed zodra je binnenkomt. Niet overdreven groot, maar zeker ruim genoeg om te leven zoals je dat wilt. Dit appartement van circa 86 m² is zo’n plek.
De woonkamer is royaal en aangenaam licht. Grote ramen laten het daglicht diep de ruimte in vallen, waardoor het interieur bijna vanzelf tot leven komt. De indeling biedt volop mogelijkheden: een ruime zithoek, een eettafel waar je ’s ochtends rustig wakker wordt met koffie en een krant, en misschien zelfs een werkplek bij het raam.
Loop je naar het balkon, dan merk je hoe prettig de ligging is. Op het zuidwesten, dus precies goed voor die warme namiddagzon en lange zomeravonden. Hier hoor je het zachte geroezemoes van de buurt, voel je de zon langzaam zakken en ruik je misschien wel de eerste barbecue van de buren. Het soort plek waar je even stilzit en denkt: dit is fijn wonen.
KEUKEN EN BADKAMER: PRAKTISCH EN VERZORGD
De keuken is netjes en functioneel ingericht, met alles wat je nodig hebt om dagelijks comfortabel te koken. Of het nu een snelle maaltijd is na een drukke werkdag of een uitgebreid diner in het weekend — de ruimte werkt gewoon prettig.
Ook de badkamer is verzorgd en fris. Geen overbodige luxe, maar wel precies wat je nodig hebt om de dag ontspannen te beginnen of af te sluiten. Een plek waar je ’s ochtends de douche instapt terwijl het daglicht langzaam binnenvalt.
TWEE SLAAPKAMERS MET FLEXIBILITEIT
Met twee slaapkamers heb je net dat beetje extra ruimte dat het verschil maakt. De grootste kamer is ruim genoeg voor een comfortabel bed en een flinke kastenwand. De tweede kamer kan alle kanten op: kinderkamer, thuiskantoor, hobbyruimte of logeerkamer voor vrienden en familie.
Het appartement is bovendien voorzien van energielabel B, wat betekent dat het comfortabel en relatief energiezuinig wonen is. Fijn voor je maandlasten én voor de toekomst.
PRAKTISCHE EXTRA’S DIE HET LEVEN MAKKELIJK MAKEN
Op de begane grond krijg je een ruime berging. Handig voor fietsen, koffers en alles wat je niet dagelijks nodig hebt. En het leuke detail: hier is zelfs ruimte om een kleine zolder of extra opslag te creëren.
De VvE is professioneel georganiseerd en financieel gezond. Dat geeft rust en zekerheid, want onderhoud en beheer worden goed geregeld.
WONEN MET ALLES OM DE HOEK
De ligging is misschien wel het mooiste van alles. De woning ligt in een gezellige buurt waar alles binnen handbereik is. De tramhalte, supermarkt, gezondheidscentrum, kinderopvang en allerlei andere voorzieningen liggen letterlijk om de hoek.
Loop je een paar minuten de andere kant op, dan sta je in het hart van de historische binnenstad van IJsselstein. Denk aan sfeervolle straatjes, gezellige terrassen, goede restaurants, leuke winkels en zelfs het theater. Op een zonnige avond wandel je zo het centrum in voor een drankje of een hapje — zonder gedoe met parkeren.
Hier wonen betekent genieten van het beste van twee werelden: rust thuis, levendigheid om de hoek.
VOEL HET RITME VAN JE NIEUWE DAG
Stel je voor: je begint de ochtend met een kop koffie op het balkon terwijl de zon langzaam de wijk opwarmt. Je hoort een tram in de verte, kinderen die naar school gaan, het rustige ritme van een buurt die wakker wordt. Later op de dag wandel je naar de binnenstad voor een terrasje of een boodschap.
Dit appartement geeft je ruimte, comfort en vrijheid — precies wat je nodig hebt om van elke dag iets moois te maken.
KOM KIJKEN EN VOEL HET ZELF
Appartementen met deze combinatie van ruimte, licht, energielabel B en een ligging zo dicht bij het centrum zijn gewild. En eerlijk: zodra je binnenstapt, begrijp je meteen waarom.
Bel, mail of app Makelaardij IJsselstein en plan een bezichtiging. Loop door de kamers, stap het balkon op en laat het gevoel de rest doen. Misschien is dit wel precies de plek waar jouw volgende hoofdstuk begint.

Bijzonderheden

- Maandelijkse VvE kosten zijn: € 172,-
- Gewenste oplevering : 2e helft juni 2026

De informatie op deze website en in de brochure is uitsluitend bedoeld als algemene informatie. 
Er kunnen geen rechten aan ontleend worden. Makelaardij IJsselstein heeft de grootste zorgvuldigheid in acht genomen bij het samenstellen en onderhouden hier van. Toch kan zij niet garanderen dat de hier verstrekte informatie volledig, juist en actueel is.
Makelaardij IJsselstein wijst iedere aansprakelijkheid ten aanzien van de hier geboden informatie dan ook uitdrukkelijk van de hand.

Kenmerken